凤舞九天、舞动雄安——凤凰国际,荣耀面世!
扫描到手机,新闻随时看
扫一扫,用手机看文章
更加方便分享给朋友
你终于来了,等你好久了
为了感谢你的关注,每周推送较新活动,将为您带来秦皇岛楼市、城建等排名前列手资讯。参加看房团、置业咨询,敬请期待……



白沟位于京津保三角腹地,距北京、天津约120公里,靠近首都二机场,京石、大广、津保、廊涿等高速在白沟设有出入口。2015年,设有白沟站的保津高铁通车。按照规划,首都二机场的快轨将与保津高铁相连。


雄安新区的设立,让白沟更加靠近京津冀地区的发展重心。“目前白沟整个市场年交易额超过千亿元,雄安新区将为白沟带来人流量,同时也带来更多的商业发展机会。”张铁柱表示,政府正在打造白沟国际贸易港,目前已经有上百家外贸公司入驻白沟,白沟要打造全国著名的商贸城市,而且向高端发展,打造北方进出口商品集散地和世界商品集散地,向世界商贸中心发展。
“雄安新区规划出来后白沟定位也会随之调整,白沟将来不只是一个商贸中心。”张铁柱表示,白沟在区位上“零距离”背靠雄安新区,在大力发展商贸服务业的同时,还要根据雄安新区发展需求,服务雄安新区建设,未来也能享受雄安新区资源。

和深圳、浦东当年一样,雄安新区较大的优势是“现有开发程度较低”。深圳新区全部面积1900平方公里;上海浦东新区面积1200平方公里。而雄安新区起步区面积约100平方公里,远期控制区面积约2000平方公里。所以雄安新区的发展空间和潜力,远超深圳和浦东。

南有义乌,北有白沟。白沟便利的交通,极大的促进了白沟商业的发展,白沟商业已经达到400多万平米,目前已拥有箱包,服装,小商品为主品类的14个大型商贸集散地,成为“全国十大淘宝镇之一”。白沟拥有健全的物流,电商网络,拥有物流企业20余家,货运线路200多条,日均物流吞吐量超过50000吨,贸易范围覆盖全国,同时与世界130个国家和地区建立业务往来,经济实力在北方地区城镇级别中名列前茅。白沟年产箱包8亿只,占全国箱包总量的40%,素有“中国箱包之都”的美誉。从业人员150万人,日均接待客流量达30万人次。而且目前像大红门,天意,动批等大型批发市场,都已迁入白沟,被誉为"中国北方排名前列大购物天堂"。2016年交易额突破1160亿元。
2016年9月8日国家八部委联合批准白沟箱包市场成为第三批“市场采购贸易方式”试点之一,总投资5000多万建立了海关检验检疫监管站,经过短短两个多月的筹备,顺利通过了河北省政府验收组的联合验收。为市场采购贸易经营主体提供就地通关、报检、拼箱、查验等监管服务,退税前置,免去了退税相关繁锁手续及垫资成本。为商户提供了极大的便利,这也是一般城市无法比拟的。
从白沟城区内交通来看,城市主要线路呈四纵四横分布,四纵由西向东分别为富强大街、富民大街、京白大街、东一环;四横由北向南分别北一环、五一路、友谊路、津保路。依托雄安以及京津冀一体化规划,京白路即将升级为国家一级公路,届时随着北京良常路三期的竣工,全程68公里,车程仅需50分钟直达北京南六环。

全白沟不多五证齐70年住宅
【凤凰·国际】
项目位置:富强大街与友谊路交叉口
销售状态:顺销在售
总价:约40万—90万/套
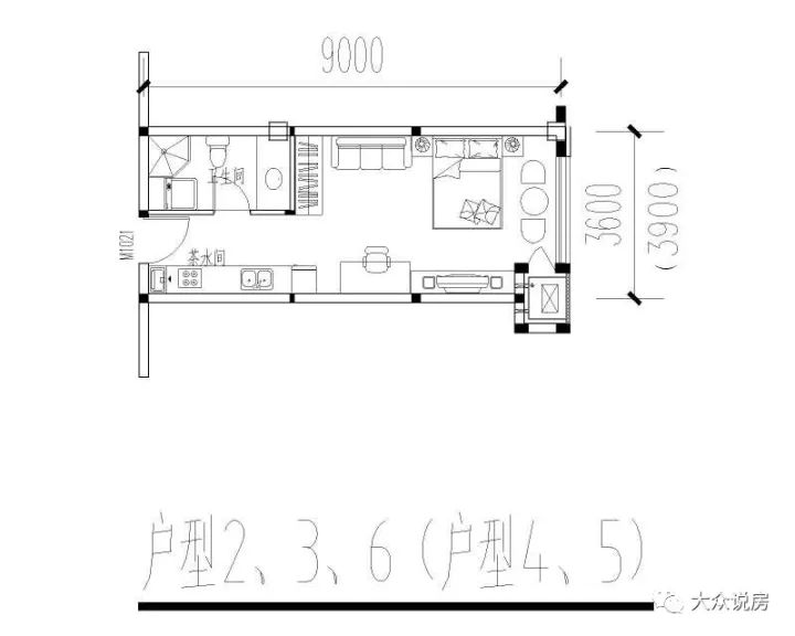
户型:约45㎡—58㎡开间,约95㎡两居,约100㎡—120㎡三居
产权:70年大产权、交房标准:毛坯
绿化率:35%、物业费:1.80元/平
总高:28层,1至5层大型商业、层高:3.1米
水电暖:民水,民电,市政集中供暖地暖
交房时间:1号楼现房2、3号楼19年8月31日
车位配比:1:0.4(600)
总户数:1500户
项目核心卖点
开发商:河北凤凰房地产开发有限公司
价格:均价11500/平,首付40%
交通:周边四条高速环绕:大广高速、京港澳高速、荣乌高速、廊涿高速。铁路:京石铁路、津保铁路、未来:固保城际铁路、京雄高铁等。道路:京白路目前连接北京雄安不多交通道路。
商圈:社区自带五万㎡大型商场
医疗:白沟中心医院、新城人民医院、保定京南医院、白沟国济医院等
环境:项目西侧紧邻白沟公园
发展:白沟本身以箱包 服装 物流产业出名、未来着重发展及国际贸易、国际会展、国际物流、国际电子商务的产业聚集平台。未来雄安新区二期建设将整体覆盖白沟。
少有:小户型为主小面积住宅

项目位于白沟较核心繁华的地段,友谊路与富强大街西南角。富强大街又称为政府街,一直往北即可到达北京,往南4公里即雄安新区。友谊路往东是京白路,也是北京连接雄安新区必经之路!西侧紧邻的是白沟不多的成熟公园。真正的观景房。公园里有修建特色鹅卵石的休闲跑道以及2000平米的人工湖,跑道围湖而成,广场、凉亭,桥廊让您会有小桥流水人家的感受。饭后您可以带着家人和孩子在草地广场上尽情地嬉戏,早晨起来围着湖水跑一跑,呼吸着健康的绿氧,在缓解您的工作压力同时也带给您一个健康的生活环境。
项目不仅紧邻公园,项目周边配套也非常完善,医疗、教育、餐饮、住宿、交通、商务等一应俱全,5分钟即可满足您衣食住行全部需求,又处于距离雄安新区较近的核心区,目前真正的价值洼地。












感谢您抽出 · 来阅读此文
更多精彩请点击【阅读原文】哦
↓↓↓
『 特别提示 』
【安居乐业】平台开通买房私人顾问专线,一对一为大家提供服务,需要的朋友,请关注公众号扫以下二维码。 在买房这件大事上,我们竭尽全力做好您的助理和参谋,也希望和您成为终身的朋友。

安居乐业房产网|全新自媒体矩阵平台

楼市焦点|精品楼盘|政策讲解|优惠活动
安居乐业房产资讯
- 房评互动 -
这里有座城,比邻雄安,未来无限!你想来么?
欢迎评论区留言~
声明:本文由入驻焦点开放平台的作者撰写,除焦点官方账号外,观点仅代表作者本人,不代表焦点立场。







