东小口|奥森one 排卡时间、优惠、10个户型点评,你想要的
扫描到手机,新闻随时看
扫一扫,用手机看文章
更加方便分享给朋友
“买房”仍旧是现如今较常谈的话题。有人认为,买房是有钱人的游戏,普通人没必要因为买房把自己禁锢在还贷中。
每次京城选房聊起买房话题,总能听到一类观点:买房是有钱人的游戏,普通人没必要为了房子把这辈子财富搭进去。
想来也理解,好容易有了点儿积蓄,不买吧, 不晓得以后买不买得起;买吧,大概率需要父母掏出养老钱,后面几十年的还贷压力不小。
何况政策多变,不知道什么时候就变卦。我一位同事2017年11月买房,大家可能知道,2017年全国房市政策频出,房价从年头飙涨至年尾,倏然停住。2018年,房价跌得同事心里拔凉拔凉的,认为自己成了半山腰的韭菜。
耿耿于怀许久;但在京城选房看来,如果您是刚需房,任何时间买都是合理的,甚至越穷越要想办法买房。
今天京城选房为刚需粉丝带来的是2020年北京较值得期待,较值得入手的项目( 奥森one ),目前项目正处于排卡阶段;
所以呢,我们今天的主要为大家带来的内容是:排卡时间和优惠,以及10个带尺寸的户型图和点评,想来了解更多往期资讯的,可以点击下方链接。

奥森one系列文章一
奥森one系列文章二
奥森one系列文章三
奥森one系列文章四
奥森one这个项目将于2020年8月22日(本周六)上午的9:00点正式启动排号。
这次排卡的客户,将会在大概2号楼、3号楼、4号楼、6号楼、7号楼、8号楼、9号楼、10号楼、11号楼、15号楼、16号楼里面挑,从我们了解到情况来看,预计会挑一走大半的房源。

排卡当日截止开盘,优惠细则如下:
1,一居总价减免200元/天
2,二居、三居总价减免400元/天
3,四居总价减免550元/天
线下排卡方式:购房人本人自冻结资金完成当日或次日到售楼处找销售填写排卡意向登记表选择意向房源并签字确认(所选房源不作为较终成交房源)。若联名购买则填写两人信息。
所需资料:本市户口单身或离异:本人身份证、户口本首页、户主页及本人页、本人变更页、离婚证。(外省市户口多加一个北京居住证或北京工作居住证)
本市户口已婚:夫妻双方身份证、结婚证、户口本首页、户主页及本人页、本人变更页,未成年子女页。(外省市户口需要多加一个北京居住证或北京工作居住证)
注意:排卡购房人信息需与实际购房人一致;若后期更名,此排卡优惠无效。

在排卡之前,京城选房为大家拿到了10种户型图,以及来之京城选房详细的点评,以供大家在闲暇之余查阅。
1室59平米一室两厅一卫

先来看看项目的59平米一室两厅一卫,大约有95套,预计内部认购40套的样子,所以,小户型不是很好买,买到的几率比较低。
不过也没关系,该户型也不咋通透,一居够不上可以,去奥海明月看看,买小户型的朋友建议您,赶紧找京城选房排小面积的,不然,又该错失良机了。
一室:该主卧只有9个平方,咱就拿一居室来讲的话,再加上的飘窗,这个大小还是够用的,不会有拥挤感。
客厅:客厅面积约10平方,比主卧还大一丢丢,(还没算的飘窗。)
餐厅:餐厅的面积和客厅差不多,不过,也是够用的,比起,通州某些楼盘的餐厅设计,还是强太多,有的甚至都没有餐厅(过道厅)位置,所以,看得出来,该户型的设计还是非常走心的。
一厨:厨房的面积在5平方,这个面积呢,对于我这种精通各类美食的爱好者来讲是不够用,但,对于日常简单烹饪是没有问题 的;毕竟,这么小的面积住的人口也不会多,一般也不会超过3人。
一卫:卫生间的面积在6个平方,这个面积干湿分离,还是值得点赞,差点意思的就是没采光,不通风;往好处想就是,没采光也不用担心隐私性了。
京城选房总结:该户型,面积小,总价低,该替客户想到的地方,开发商都想到了,缺点是通透性不是很好,且买到的可能性很渺茫,所以大家不必过多关注,全凭运气或关系链。
2-375平米(两室、三室)两厅一卫
75平米这个户型带尺寸的有三种,一个是75平米两室两厅一卫(D1户型),第二种75平米三室两厅一卫(D2户型),第三种是75平米三室两厅一卫(D2Y户型)京城选房将为大家娓娓道来 ,其中的利与弊。

现在接着来看看项目的75平米两室两厅一卫(D1户型)
两室:主卧室12个平方,(不含的飘窗面积)采光通风方面室没问题,次卧8个平方,采光不是很充足;
餐客厅:餐客一体化设计,18平方出头一点点(不含的飘窗面积),采光没啥问题,满足平日里的一些聚会宴客是没问题的 。
一厨:厨房大约4.9平方,带窗户,采光方面没啥问题,这个面积的厨房刚需朋友还是够用的。
一卫:卫生间只有4平方,也做到了干湿分离,不多的遗憾就是没采光不通风。
京城选房总结:该户型,户型方方正正,居住的舒适性不错,但给户型,未能达到全通透。

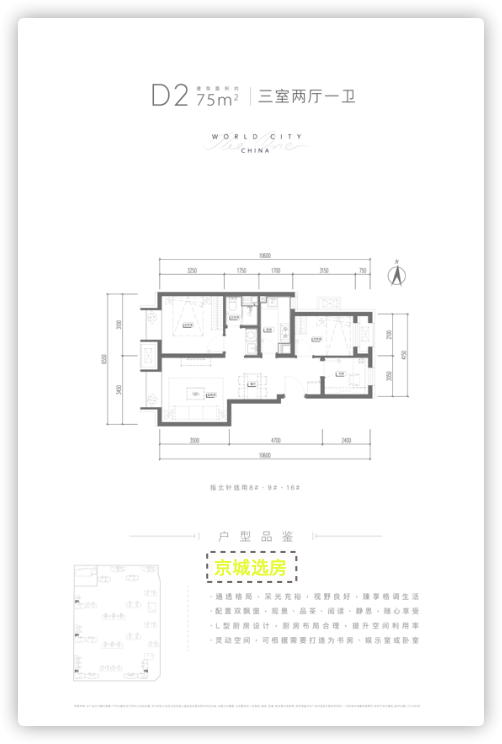
再来看看75平米三室两厅一卫(D2户型)
三室:主卧接近16平方(不含飘窗)干湿分离(暗卫),预留衣帽间;次卧6.6平方,有些紧凑,书房面积只有4.8平方,需要居住的话,只能做个榻榻米或者用来做婴儿房;三个房间采光方面没啥问题。
客厅:客厅面积还是蛮大的,有12个平方,买个多功能沙发,人多的时候,可以充当厅长。
餐厅:属于过道厅,大概面积在5平米,所处位置着实有点嘎,正对卫生间以及厨房。
一厨:厨房也在5个平方,采光通风方面差点意思,传菜啥的还是很方便。
一卫:卫生间面积也在5个平方,还是要比厨房稍大一丢丢,干湿分离(暗卫)。
京城选房总结:这个面积做到了3居室,开发商是下足了功夫的,把面积尽可能的利用到优质,通透格局,采光也是蛮充裕的,对于预算有限的刚需朋友,可作为置业的优选。

75平米两室两厅一卫(D2Y户型),这个户型和(D2户型)几乎一样,所以,就不过多重复讲,就说下哪里不一样的点就好了。
1,客卫有采光。
2,书房的面积比(D2户型)小了一丢丢,可忽略不计。
京城选房总结:两个户型,所在,位置不同,每个人需求和买房时需要的因数也不同,所以,根据自身的 情况而定呗;拿不定的朋友,可以添加京城选房的微信号,由专人根据你的实际需求和情况,而为您详细回答,有问有答,如见其人。
3居89平米三室两厅两卫
好了,这会,咱来看看项目的主力户型,89平米三室两厅两卫,这个带尺寸的京城选房一共拿到4个,咱就以这四个户型分别为大家阐述利与弊,长与短。

先来看看89平米三室两厅两卫(C1户型)
三室:主卧套房18个平方含主(明)卫、衣帽柜,但不含飘窗面积,采光也没问题,这个面积大小,业主日常使用是完全没问题。
次卧7个平方,有些紧凑,采光通风没问题;书房方面6个平方,平时小孩写写画画啥的是够了。
客厅:客厅12个平方(不含飘窗面积),采光通风没得说。想做厅长的可以在沙发上,下点功夫。
餐厅:这几个平方的过道厅就不多说了,
一厨:6平方的厨房,洗切烹饪动线流畅,采光通风稍差。
两卫:主卫干湿分离,且明卫;次卫约5个平方,也做到了干湿分离,且明卫,设计方面还是非常讲究。
京城选房总结:作为项目的主力户型,量大且通透,方方正正,全明通透,动静分离,利用率,预算够的朋友推荐入手。

再来89平米三室两厅两卫(C2户型)
三室:先说主卧套间,主卧面积在15个平方的样子,含主卫(明卫)以及衣帽柜(不含飘窗面积),这个大小刚需足够使用了,采光通风也没问题。
再来说次卧,次卧8个平方,摆个1.2米的床以后,还能预留衣橱和电视柜的位置,户型方正且通风。
较后说下书房,书房面积6个平方,家里的宝贝,温习功课啥的完全没问题,后期,有需要的时候,可以定制上下两层的榻榻米使用。
餐客一体化:面积达17平方(不含飘窗面积),餐厅与厨房举步相连,非常方便,南北直通,较大化的采光。
一厨:厨房面积约4平方,属于U型厨房,使用起来还是很方便,该厨房采光通风也没问题。
两卫:主卫和次卫均做到干湿分离,且有通风、有采光。
京城选房总结:南北通透户型,南向双面宽,双卫双采光,非常棒的一个户型,极力推荐该户型。

接下来在看看王牌中的王牌,89平米三室两厅两卫(C4户型)观景户型。
三室:先来看看主卧套间,主卧面积在15个平方,含主卫(不含飘窗面积),方正且通风观景,没话说,挺好。
次卧1,面积在8个平方,(不含飘窗面积),采光+观景=优质。
次卧2,面积在6个平方,(不含飘窗面积),紧邻次卫,比次卧1占优势,该卧室也能观景且,采光也很不错。
客厅:客厅面积在8个平方,大小是够用的。
餐厅:餐厅紧邻次卫与厨房,入户需要摆个屏风。
一厨:厨房约5个平方,日常烹饪没问题,采光通风方面也没问题。
两卫:双卫干湿分离,唯独,客卫是暗卫。
京城选房总结:该户型是项目的主力户型的其中一种,也属于王牌中的王牌,属于观景户型,配置四大观景飘窗,双卧室朝南,阳光充沛,且户型方正。
京城选房建议得根据自身的需求,而选择,该户型的 套数并不是很多。

较后再来看看89平米三室两厅两卫(C5户型)
三室:老规矩,先说说主卧套间,主卧面积16个平方(不含飘窗面积),这面积大小就不多说了,遗憾的是暗卫,别的没啥说的。
接着说下次卧室,次卧室面积在8个平方,大小还可以,中规中矩,通风采光也没问题。
餐客一体化:餐客厅的面积在18个平方(不含飘窗面积),南北通透,采光通风没问题。
一厨:厨房面积在5个平方,有采光有通风,生活更轻松。
两卫:两个卫生间均做到干湿分离,不过,两个卫生间都是双暗卫。
京城选房总结:该户型方正,双向双面宽,以及北向三面宽,较大尺度更多的采光,配置双观景飘窗以及观景厨房,也配置双暗卫。
4居128平米四室两厅两卫

来看看128平米四室两厅两卫户型
四室:先来看主卧套间,主卧的面积在21个平方,不含飘窗面积,主卫干湿分离,有采光有通风,配置观景飘窗,可以俯瞰自然景观;作为刚改的户型,这个面积是足够业主日常生活。
再来看看南向次卧,次卧的 面积在11个平方,不含飘窗面积,配置观景飘窗,可以俯瞰自然景观。
北向的次卧,该卧室的面积在12个平方,紧邻次卫,略比南向次卧占优势。
北向书房,书房的面积在9个平方,作为刚改,无论是宝贝的琴棋书画,还是业主日常的阅读,都是足够的,有需要的话改成儿童房也是没问题的。
该户型还设计有一个约4平方的家政间,供业主日常是换洗,烘干使用。
餐客一体化:餐厅客厅的面积在23个平方,比主卧套间的面积还要大一丢丢,大面宽,南北直通设计让采光与通风达到了优质,无论是宴请宾客,还是家庭聚餐,都是其乐融融。
一厨:厨房的面积在8个平方,采光、通风均没有问题,不多,需要考虑的是8个平方的厨房是否够用。
两卫:主卫次卫紧邻在一起,两个卫生间干湿分离,且都是明卫,其中,主卫预留了浴缸位置。
京城选房总结:该户型为刚需改善户型,户型方正,南北通透户型,南向三面宽,且配备三个观景飘窗,可以俯瞰自然景观,从户型来看,还是非常值得推荐入手的。
4居138平米四室两厅三卫

较后来看看项目的138平米四室两厅三卫户型,该户型套数少,且放在了项目的 中间位置,一般我们也尊称为楼王。
四室:该户型是由2个套间,和一个次卧以及一个书房组成。
咱还是老规矩,先来南向主卧套间,主卧的面积在23个平方(不含飘窗面积),主卫干湿分离,分别预留浴盆和浴缸位置,主卫是明卫;大面宽,大飘窗,23平方的卧室在该小区来讲是较奢华,较高贵的彰显。
在来就是南向次卧套间,南向套间面积在14平方,包含了次卫的面积(不含飘窗面积),这个房间较适合给家里老人住了,不多缺点就是暗卫。
在来看看北向的次卧,次卧的面积在10个平方,适合给家里的宝贝居住,有采光通风,大小适宜。
较后来看看这个小书房,这个小书房的面积在6个平方的样子,紧邻客卫,适合小朋友的日常阅读学习,不顾住的时候可以改儿童房。
客厅:客厅的面积在19个平方的样子,(不含飘窗面积)大面宽、大飘窗采光通风是没有问题的哈。
餐厅:餐厅的位置有些鸡肋,正对客卫,又紧邻书房。
一厨:厨房的面积大约在10个平方,属于开发式厨房,距离餐厅很近,平时传个菜啥的,非常方便。
三卫:三个卫生间,只有南向主卧套间里的卫生间是暗卫,其他都是明卫,采光通风都没问题,都做到了干湿分离,南向主卫预留浴缸位置。
京城选房总结:该户型属于两梯两户,独立玄关设计,三面宽朝南的同时配备三个飘窗,户型方方正正,南北通透格局,功能分布的 非常合理,利用率高,如果,您的预算够,京城选房极力推荐您入手该户型。
结语
声明:本文由入驻焦点开放平台的作者撰写,除焦点官方账号外,观点仅代表作者本人,不代表焦点立场。







