今起网申!首付约40万起,五环边近铁共产房来啦!最全户型速看!
扫描到手机,新闻随时看
扫一扫,用手机看文章
更加方便分享给朋友

哈喽大家好,我是血拼哥!
大兴瀛海目前最后一个共有产权房项目亦生共悦网申啦!
这次申购资格覆盖几乎京籍全北京!为啥说几乎呢?因为销售对象京籍中,除了城六区、经开区、大兴区外,还有在城六区和经开区工作的本市其他区户籍无房家庭。
此外,项目什么时候网申?有何注意事项?项目户型如何?一起来看!
01-
网申时间:2024年7月23日上午10:00至2024年8月7日下午17:00
网申地址:http://gycq.zjw.beijing.gov.cn/enroll/home.jsp
项目共计518套房源,本次配售套数共518套,其中,两居室11套,建筑面积约69平方米;三居室507套,建筑面积约89-119平方米。
房屋销售均价为29000元/平方米(根据具体楼层、朝向在±5%的范围内调整销售价格),全装修交房。
个人产权份额比例为70%。
此次房源销售对象分两类,第一类为本市户籍无房家庭;第二类为非本市户籍无房家庭,两类家庭具体分组如下:
(一)本市户籍无房家庭分为两组:
第一组为大兴区户籍、在大兴区工作的本市其他区户籍无房家庭和核心区危楼简易楼改造、重点文物腾退、申请式退租换租的腾退安置家庭。
第二组为本市城六区(东城区、西城区、朝阳区、海淀区、丰台区、石景山区)和北京经济技术开发区(以下简称城六区和经开区)户籍无房家庭、在城六区和经开区工作的本市其他区户籍无房家庭。
(二)非本市户籍无房家庭分为三组:
第一组为区委组织部认定的大兴区优秀青年人才,在区产促中心认定的大兴区重点企业、区科委认定的国家高新技术企业、大兴经济开发区(原新媒体产业园)、生物医药基地产业园、京南大学联盟、大兴国际机场驻场单位从业的人员。
申请人所在企业需具有独立法人资格,且在大兴区进行工商注册,纳税、入统,并不在拟腾退产业之内。申请人需本科及以上学历。
大兴区委组织部、大兴区产促中心、大兴区科委、大兴经济开发区(原新媒体产业园)、生物医药基地产业园、京南大学联盟、大兴区机场办等主管部门根据本公告申购条件,对非本市户籍申请家庭中第一组家庭情况进行审核。
注意📢,非本市户籍第一组申请家庭需于2024年8月7日下午17:00前向所在工作单位申报家庭信息。申请家庭工作单位需于2024年8月12日前向主管部门进行申报。主管部门需于2024年8月16日前将符合非京籍第一组认定条件的家庭名单提交至大兴区住房和城乡建设委员会。未在规定时间内进行申报的,不纳入非本市户籍申请家庭第一组范围。
第二组为在大兴区工作的非本市户籍无房家庭。
第三组为在城六区和经开区工作的非本市户籍无房家庭。
申购条件
(一)申购家庭应符合以下条件:
1.申请人应具有完全民事行为能力,申请家庭成员包括夫妻双方及未成年子女。单身家庭申请购买的,申请人应当年满30周岁(截至2024年8月7日)。
2.申请家庭应符合本市住房限购条件且家庭成员在本市均无住房。一个家庭只能购买一套共有产权住房。
(二)申购家庭符合上述条件,但有以下情形之一的,不得申请购买共有产权住房:
1.申请家庭已签订住房购买合同或征收(拆迁)安置房补偿协议的。
2.申请家庭在本市有住房转出记录的。
3.有住房家庭夫妻离异后单独提出申请,申请时点距离婚年限不满三年的。
4.申请家庭有违法建设行为,申请时未将违法建筑物、构筑物或设施等拆除的。
(三)申请家庭承租公共租赁住房、公有住房(含直管和自管公房等)后又购买共有产权住房的,应在购房合同网签前书面承诺腾退所租住房屋。
(四)销售对象中"本市户籍家庭"是指在开通网上申请当月(2024年7月)申请人已取得大兴区、城六区和经开区任一区户籍。
(五)“核心区危楼简易楼改造、重点文物腾退、申请式退租换租的腾退安置家庭”是指经东城区、西城区相关部门认定的符合上述腾退安置条件的家庭。(认定具体事宜详见文末左下角【阅读原文】,符合认定条件的申购家庭需在规定的时间内按要求报送材料)。
(六)销售对象中"在大兴区、城六区和经开区工作"是指本市户籍家庭和非本市户籍家庭在开通网上申请当月(2024年7月)申请人在北京市个人社保权益记录中所载明的缴费区为大兴区、东城区、西城区、朝阳区、海淀区、丰台区、石景山区、北京经济技术开发区任一区。
了解了哪些家庭可以买,那么这个项目具体情况如何?
02-
项目距离地铁8号线瀛海地铁站约1800米,周围还有昊海兴达站兴16路;团忠路站兴15路、兴26路。
商业:首航生活广场,国瑞6万平方米自营综合商街,中海寰宇坊6万平方米商业等。
医院:大兴区瀛海卫生院,大兴中西医结合医院,北京航天总医院,北京中医药大学东方医院南院区,同仁医院亦庄院区。
公园:南海子公园、南苑森林湿地公园、南中轴森林公园、瀛海足球主题公园、瀛海休闲公园等。
亦生共悦小区项目共有产权住房地上建筑面积约6.24万平方米,位于北京大兴区瀛海镇,共7栋住宅楼,楼号分别为25-1号楼、25-3号楼、25-5号楼、25-6号楼、25-8号楼、25-9号楼、25-10号楼。
A/A反户型(三居室):约119平方米,112户。位于25-10号楼。
B/B反户型(三居室):约89平方米,188户。位于25-1号楼、25-3号楼、25-5号楼、25-6号楼、25-8号楼、25-9号楼。
C/C反户型(三居室):约119平方米,199户。位于25-1号楼、25-3号楼、25-5号楼、25-6号楼、25-8号楼、25-9号楼。
首层变异户型说明:项目累计首层特异户型19套,详见下表:
注:以上数据最终以规划部门审批结果为准,如有变更我司将及时公告。
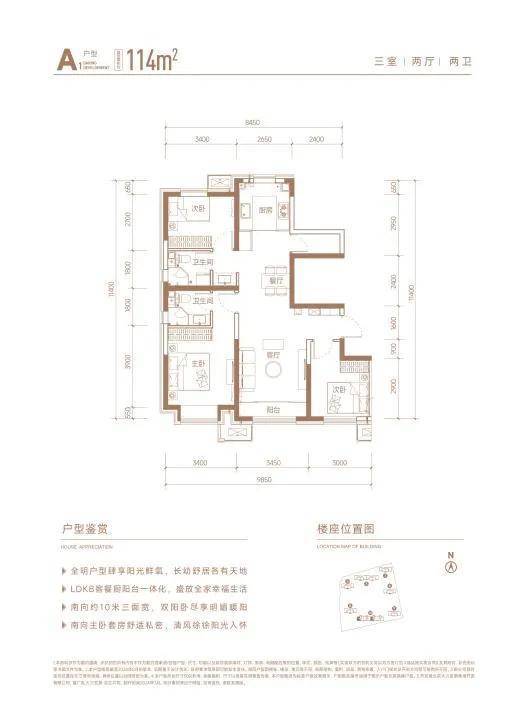
户型图
(所有户型在所属楼栋边户为明卫,中间户为暗卫)
A/A反户型
建筑面积:约119平方米
B/B反户型
建筑面积:约89平方米
C/C反户型
建筑面积:约119平方米
A-1/A-1反户型
建筑面积:约114平方米
A-2/A-2反户型
建筑面积:约110平方米
B-1/B-1反户型
建筑面积:约69平方米
声明:本文由入驻焦点开放平台的作者撰写,除焦点官方账号外,观点仅代表作者本人,不代表焦点立场。







