悦谷新城家园网申 首付50万即可上车
扫描到手机,新闻随时看
扫一扫,用手机看文章
更加方便分享给朋友
平时跟大家聊城区的房子比较多,今天来聊聊怀柔楼市。十一黄金周回来后排名前列天,怀柔区迎来新成员——悦谷新城家园,这个是共有产权房,单价仅为20000元/平,与上一个共产房碧桂园中心单价一样,目前网申时间已经公布。单价便宜,且有小户型,十分适合刚需族,今天我们就来详细聊聊这个项目。微信搜索“goufang02“,添加购房置业小秘书入群,房产咨询,有问必答!
先来从拿地说起,2018年1月18日,北京京粮置业有限公司拿下了怀柔区富密路289号HR-0014-0022地块R2二类居住用地,时隔一年多,终于迎来网申。

悦谷新城家园位于怀柔区富密路289号,项目四至为:东至京承铁路防护绿化带, 西至规划富密路,南至规划庙城大街,北至规划怀柔粮库北侧路,周边交通干道有京密高速、京承高速、富密路、怀长路等,去往城区比较方便。根据住建委发布的消息来看,网申时间为2019年10月10日上午10:00至2019年10月25日下午17:00。产权比例方面,购房人产权占比为70%,北京市燕怀保障性住房投资有限公司占比30%。

小区共计10栋住宅楼,总套数1065套。户型为70-119平1-3居,主力户型为84~89平两居,销售均价20000元/平方米。焦点君简单算了一下,以84平两居计算,总价168万左右,共产房首套首付30%,那就是50万左右,可以说是很划算了。微信搜索“goufang02“,添加购房置业小秘书入群,房产咨询,有问必答!
配套情况
项目周边配套虽不能跟城区繁华的配套相比,但好在能够满足日常生活需求。商业配套方面,大一些的商超有世纪华联超市、大星发超市、京客隆怀柔店、万达广场等,适合平时逛街购物;如果有个头疼脑热,可以去怀柔区中医医院、北京怀柔医院;当然,亮点也有,身处怀柔,周边自然环境肯定不差,公园众多,比如山柔水公园、鹿世界主题公园、东方普罗旺斯薰衣草庄园等,是周末休闲娱乐的好去处。总的来看,周边生活配套基本能够满足生活所需,周边自然环境是亮点。

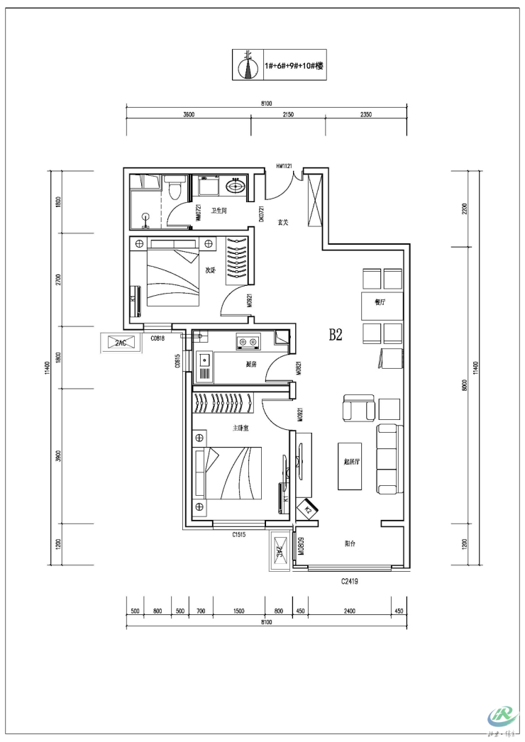
户型
悦谷新城家园一共7个户型,受篇幅限制,本文给大家分析一个。

B2户型:89平两居设计,这个户型共计 240 套,层高2.9米。两个卧室及客厅均朝南,客厅面宽3.3米,在这个面积区间来说面宽中规中矩,但是基本的采光也能够保证,客厅外有阳台,便于晾晒衣服。卫生间干湿分离,且预留了洗衣机的位置,不多有点遗憾的是暗卫。这个户型适合小两口居住。
总结
总的来看,悦谷新城家园作为怀柔区共产房,单价低,户型选择多,周边配套可满足日常生活所需,适合怀柔本地人群或者在怀柔工作的有资格的朋友购买。
微信搜索“goufang02“,添加购房置业小秘书入群,房产咨询,有问必答!
延伸阅读:
声明:本文由入驻焦点开放平台的作者撰写,除焦点官方账号外,观点仅代表作者本人,不代表焦点立场。







