衣帽间和270度转角窗成标配!均价4.6万/㎡洋房王炸户型亮相
扫描到手机,新闻随时看
扫一扫,用手机看文章
更加方便分享给朋友
不得不说,今年的产品是真的卷啊。不卷也不行,购房者必须得看到诚意才行。
最近看到一个新盘的户型,忍不住分享给大家。
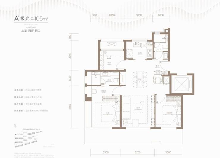
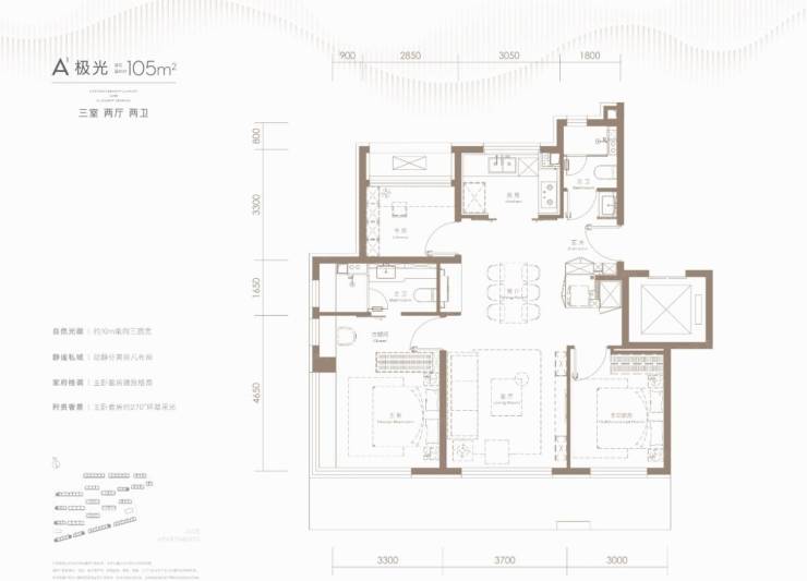
这是一个105平三居边户户型:
亮点:
1、 三面宽朝南,南向整体面宽10米,保证室内采光充足
2、 重点看下主卧区域,主卧套房设计,270度超大转角窗,这在当下的市场是很少见的;105平的户型主卧有单独的衣帽区,这也不多见,且衣帽区有窗户,可以在自然光景下化妆,这个户型的设计师很懂女人;再来看看主卫,是个明卫,干湿分离设计,而且洗漱台台面做了延伸,相比普通的洗漱台增大了台面设计,方便放一些女主人的瓶瓶罐罐,这个设计也挺贴心的;
3、 一进门右手边是次卫,同样是明卫,左手边是鞋柜衣帽收纳和家政间。未来的动线是:回家以后放下包包和手里的东西,扭头进卫生间去洗手。
4、 客厅面宽3.7米,与餐厅、厨房基本等宽,动线合理,餐厅的位置足够宽敞,可以容纳6个人,亲戚朋友来也坐得下,不会拥挤。
105平的户型能设计成这个样子,个人觉得真的很不错了,没有浪费空间,居住舒适度也很高。
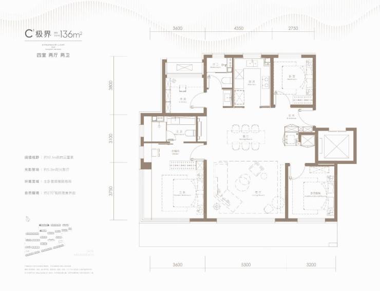
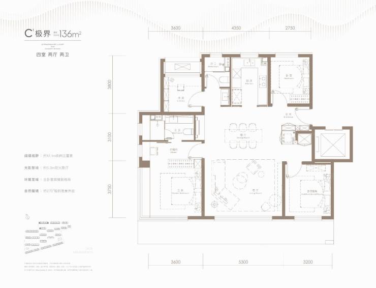
C户型136平边户户型:
亮点如下:
1、 客厅面宽5.3米,室内采光度会更加明亮,厨房、餐厅、客厅一体化,餐厅旁边还预留出了餐边柜的位置
2、 主卧依旧是套房设计,和105平的主卧相比,面宽增大至3.6米,整个空间会更加宽敞,依旧270度转角窗,带窗户的衣帽区,和明卫、大台面设计
3、 四个卧室分布在四个角落,私密性好,互不打扰
4、 次卫也是明卫,洗手盆放在了卫生间门外,可以避免潮湿
另外,这个项目还有一个188平王炸户型,现在还没有对外释放,据说这户型的室外阳台有2米5宽,这实际干啥会是什么样啊,可太期待了,等样板间对外开放了可以去实地看一看。
今天给大家介绍的这两个户型来自于顺义的璞瑅润府,由首开股份和华润置地联合打造。项目位于顺义主城区,整体比较成熟,附近有15号线石门站约1.2公里,乘坐地铁2站到达后沙峪、9站到望京,很适合在朝阳工作的人群在此置业。
再来说说项目,项目东侧大概500米左右就是卧龙公园,家附近就有公园,平时遛娃散步都有好去处;配套方面,周边有国泰、新世界百货,隆华奥特莱斯购物广场等,整体的生活配套还是比较完善的。
小区规划方面,容积率1.8,规划21栋住宅楼,全部6-11层纯洋房,未来的居住舒适度很高,产品为105-188㎡的三、四居,主要面向刚改、改善人群,期房指导价4.6万/㎡。,算下来总价483万~865万左右,本价格仅供参考,具体以开发商公布为准。
最后做个总结,璞瑅润府地处顺义主城区,附近有地铁,去往朝阳等地很方便,附近商场、公园一应俱全,做改善产品挺合适的,再加上这项目的户型设计很有亮点,很适合在朝阳等地上班的人群、以及顺义本地的有改善需求的人群来置业。
声明:本文由入驻焦点开放平台的作者撰写,除焦点官方账号外,观点仅代表作者本人,不代表焦点立场。







