正商明苑摇号在即!300万住四环较后机会
扫描到手机,新闻随时看
扫一扫,用手机看文章
更加方便分享给朋友
中签率9:1,你关心的正商明苑已经确定1月11日上午10:00公开摇号。不出意外,这个丰台目前不多能买的共有产权项目,将于摇号一周至两周后正式开启选房!

一大早,小狐焦就在政府信息公开专栏里看到了正商明苑的消息,确认申购的17422户家庭,较终通过购房资格审核的有8156户(本市户籍家庭7259户,非本市户籍家庭897户)。999套房源, 799套面向京籍家庭配售。小狐焦也是没想到,京籍还没非京籍概率大啊!京籍中签率11.01%,非京籍甚至高达22.3%!
看到这里,有意入手的京籍小伙伴们是不是觉得有些可惜。但是没关系,小狐焦查看了家庭配售房源表,房源分开选,非京籍可选的200套房源都位于之前我强力吐槽的3号楼和5号楼,是不是心理平衡了很多呢!

小本本记好了,11号的摇号将在北京西国贸大酒店200A会议室进行,参加摇号的购房人可登录北京市丰台区政府官方网站或是小狐焦倾情推荐的小程序“拼房帝”查询摇号结果。下面,就跟着我一起再度回顾正商明苑项目的整体概况、交通及周边配套,小狐焦也会在下文给到大家关于如何选房的干货哦~
Part 1 项目概况

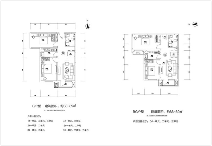
正商明苑一共七栋楼,999套共有产权项目房源,推出A/A改(89㎡)、B/B改(88㎡)四种户型,皆为2居(户型图附于文末)。其中A户型409套、A改户型90套、B户型410套、B改户型90套。各楼栋房源套数及户型如下图,小狐焦也将在下篇评测中着重分析户型,大家可以期待一下。

槽点:5号楼东西朝向让人头疼,A改户型东西向,没有南向采光面;B改户型全朝西。3号楼顶层设有水箱设施,楼体东侧设有采暖锅炉烟道,楼体西侧还有地下化粪池,可能会对相邻住宅产生噪音或是气味等影响,小伙伴们在选房时可以尽可能避开。
Part 2 交通
正商明苑位于南四环边的丰台槐房路,小狐焦实测,下了地铁4号大兴线新宫站A号口,步行约800m到达项目所在地块。地铁出行确实方便,800米的距离也算名副其实的临铁盘。值得一提的是这个新宫站站点非常大,正在修建中的19号线和地铁机场线(预计2019年通车)未来将在此与4号线交汇,新宫站也将作为始站投放使用!19号线一期规划南起新宫站,北至牡丹园站(10号线站点),跨越丰台、西城和海淀3个内城区。设置的10个站点中,有8站为换乘站,2020年就能实现通车!未来小区的业主日常往返内城上班,周末休闲娱乐都会更加便捷。

除了地铁外,项目周边公车路网也很发达。光是从地铁口走到项目门前的这段路,就看到了2个站点。1公里内可搭乘的交通线路也是多达17条,其中小区门口的343路更是直达北京南站。自驾出行,沿着南苑西路往西北侧直行1.6公里可以直接上京开高速,避开早晚车流高峰畅行四环五环。
Part 3 配套
商业:刚出新宫站,小狐焦就看见了近处的万达广场,没忍住就进去转了转,餐饮娱乐商超那是应有尽有!不说别的,负一层的永辉超市就能满足日常生活必须品的消费~
虽说周边有些成熟社区,自然基础生活配套不会太差,但是小编在项目四周逛了逛,硬是没找着除了万达的任何,挠头自问:这还是临铁房吗?深感与同为四号线的公益西桥站周边(见下图)形成鲜明对比。好在正商明苑往西2公里有一个有名的新发地蔬菜市场(353路公交可达),里面的蔬菜水果很便宜很新鲜!可以一夸!可惜的是,其他商场比如马家堡荟聚购物中心、花乡奥莱村、乐家购物中心就要三公里往外一点了。
教育:教育资源匮乏可以说是丰台区的通病,新宫板块更是无话可说。小狐焦从土地出让公告上发现,正商明苑配有基础教育用地。2公里范围内,2个幼儿园,一个槐房路小学,南苑中学从项目过去自驾要个3公里。基本的教育需求能满足,但还是想吐槽一声周边教育资源一般!
医疗:较近的三甲医院天坛医院新院区距离项目有个4.5公里,其神经外科也是相当有名气了!项目周边多为一些小的社区卫生服务站,项目门口约200米处就有一个,但它长下图这样…
正商明苑含全装修费用销售均价35000元/平方米(根据具体楼层、朝向在±5%的范围内调整销售价格)。也就是说,按照3.5万元/平(含装修)计算,较低总价296万,较高总价仅需327万。考虑到共产项目个人产权比例60%,折算过来均价也只要58300。对比四环、新宫板块动不动就千万起的新房价格,不能再美丽了。
星级指数
价格:⭐⭐⭐⭐⭐
交通:⭐⭐⭐⭐
配套:⭐⭐⭐⭐
户型:⭐⭐⭐
综合地段、价格、配套、户型来看,小狐焦建议有摇号资格的朋友还是可以去试一下,如果您刚需自住,选到B户型,也值得入手!暂且观望不出手的小伙伴,也可以考虑考虑,西四环边还未开盘的限竞房项目世茂国风长安,均价54378元/㎡,同样有89㎡二居产品。
户型图:
项目周边施工图:
声明:本文由入驻焦点开放平台的作者撰写,除焦点官方账号外,观点仅代表作者本人,不代表焦点立场。







