红透100天,顺义神盘星誉BEIJING的爆款公式
扫描到手机,新闻随时看
扫一扫,用手机看文章
更加方便分享给朋友
进入10月,认房不认贷政策效力逐渐减退,楼市分化行情加速上演。
市场众说纷纭,既有二手房挂牌量连创新高,也有新房频爆热销的亢奋,楼市究竟是真繁荣还是假红火,错综复杂的信息,令买房人在判断市场走势,选择购房目标时面临更大挑战。
随着新房市场,买房要买销冠盘成为购房者共识,识别销冠的真伪就尤为重要。“金九银十”,开盘喜报频频在朋友圈刷屏,但真正的热销关键要看实打实的网签金额和转签速度,顺义仁和的北京城建·星誉BEIJING就给北京楼市打了个样儿。
今年5月的市场低迷期,北京城建·星誉BEIJING首期开盘,共推出414套房源,当天全部售罄,一战封神。6月项目迅速转签100套,一举摘得顺义销冠。此后的7、8、9月,星誉BEIJING一路热销,牢牢占据顺义销冠宝座。6-9月项目累计签约398套,问鼎顺义TOP1,全市亚军!
真正的红盘,正如北京城建·星誉BEIJING一般,无惧楼市冷暖,走出独立行情,具备穿越周期、跑赢大盘的“硬核”实力。

真实的业绩背书,月月销冠的京北神盘,只要想在顺义买房,北京城建·星誉BEIJING绝对是不该错过的楼盘,因为,楼市的常胜冠军,势必拥有板块超强确定性,品质超强吸引力两大特质。
01/同等价位中,产业配套成熟度最高的板块
纵观楼市30年发展,产业才是房产价值的核心驱动力,优质产业吸引优质人才,形成对教育、医疗、购物的强需求,带动城市资源的流入,激活住房租赁和二手房置业需求,房产价值得以水涨船高。
换句话来说,强产业≈好配套≈好房子和高价值,当然,这一切还需要时间的沉淀,也要有品牌房企的匠心灌注。
北京城建·星誉BEIJING地处顺义主城仁和,近邻发展30余年的首都机场临空经济区,百余德企进驻的中德产业园,理想汽车也将纯电汽车的生产线落位于此,雄厚产业实力的积淀,让北京城建·星誉BEIJING坐拥“天花板”级配套资源,成熟生活即时可享。
仅需几分钟,信步可至社区配套幼儿园,石园小学和区重点顺义一中等学校,购物2万平米商业即将开业,运动休闲有一路之隔的仁和公园、顺义区体育中心和文化中心。车程5分钟,可到儿童医院顺义妇儿医院、顺义区医院,以及三甲顺义中医院。
项目西邻通顺路,500米规划20号线临河站,接驳3号线,30分钟内,地铁直达朝阳公园、三里屯等城市商圈,自驾可到望京、城市副中心两大CBD。
在5分钟的都市生活圈,30分钟的黄金出行半径,北京城建·星誉BEIJING在北京3万+新房中,独具首屈一指的成熟配套,是都市家庭理想生活的最优解。
丰盛生活的呈现,既有开发商的前瞻择址,也有北京城建对板块建设的巨大贡献。
北京城建是全球唯一一家既建造过夏季奥运会主场馆、又建造了冬季奥运会核心场馆的工程总承包商,在北京一向有着“国匠”美誉,此前在星誉BEIJING一路之隔打造的北京合院,以地标建筑的高品质,成为板块二手房价的天花板。
此次北京城建再度重仓仁和,饱含对买房人的深刻理解,星誉BEIJING的产品品质也因此更进一步。
02/同等规划下,户型功能最好的产品标杆
借助1.6低容积率的稀缺禀赋,北京城建·星誉BEIJING规划8-11层洋房、小高层,全部一梯两户,高得房率,产品70-116㎡,户户南北通透,营造采光观景的最大化。
在售建面约70㎡户型是板块内总价最低的两居,首付76万起就能拿下。居室南北通透,客厅连接阳台,与餐厅、U型厨房联通一体,南向主卧面积约为13㎡,收纳丰富,更有飘窗拓展面积。
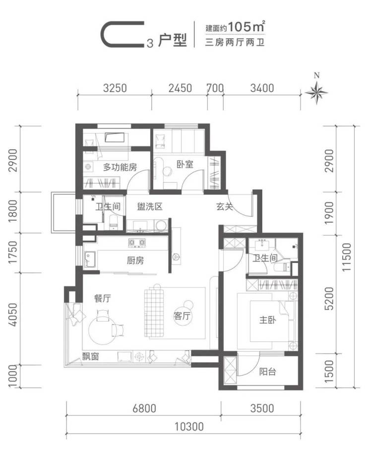
建面约89㎡三面宽三居是项目爆款,目前可选房源不多,要尽早下手。三居还有建面约105㎡两种户型,C1采用经典的“四叶草”设计,南向三面宽,主卧套房、空间全明。
相较之下,C3户型更为亮眼,客厅为大横厅+转角飘窗,6.8米面宽,超大转角采光面,再加上接近28㎡的奢阔面积,创造类豪宅的观感。同时设计有奢华主卧,配备阳台、独立卫生间,预留双收纳空间,为追求“悦已”的年轻家庭量身定制。
建面约116㎡四居南向面宽达11.6米,客厅5米面宽,比肩140㎡户型的空间感受。阳台、飘窗等拓展面积,将实际得房率拉到新高度。
星誉BEIJING的每款户型都亮点独具,楼市“神盘”的炼成,除了“高定”生活方式,更有给购房家庭预期之外的超级惊喜。
03/同一板块里,精装公区最强的品质范本
“国匠”北京城建的匠心精工,除了体现在户型功能上,还有精装公区的超配投入,这种坚持长期主义塑造品质住区的理念,与其他房企的“流水线”模式形成对照,获得买房人的高度认同。
在北京城建·星誉BEIJING,客厅的岩板背景墙全部为标配,顶部木质格栅、四周隐形灯带的设计提升高端质感,媲美10万+豪宅。
厨房配备烟机灶具、抽拉式水龙头,大户型增配洗碗机,燃气热水器保障全屋24小时热水,舒适度比肩星级酒店,并配备可视系统、一键离家,89㎡及以上户型附赠中央空调等。
北京城建·星誉BEIJING用超配营造出的高品质,在建筑园林等公区上同样有所呈现。建筑风格采用“亚洲新都市”风格,打造挺拔端庄的地标形象。
园林规划“两环七区十三景 ”,童梦乐园、阳光会客厅、健康步道和夜光跑道等景观功能,让每位业主都享受到度假般的“松弛”感。
层层深入的价值传递,让北京城建·星誉BEIJING火爆开盘后迅速落定为实打实的网签业绩。据悉,“银十”之机,项目推出丰富活动,首付76万起精装低密洋房,可以放心入手,时间会证明你的明智。
声明:本文由入驻焦点开放平台的作者撰写,除焦点官方账号外,观点仅代表作者本人,不代表焦点立场。







