老婆20万装修的89㎡新房,这样的小户型客厅装修你应该排名前列次见!
扫描到手机,新闻随时看
扫一扫,用手机看文章
更加方便分享给朋友
15年6月份,够得了人生中的排名前列套自己的房子,虽然在北京的五环外,但是好歹有一个自己的家了。排名前列次装修,啥也不懂,差点在排名前列次看装修公司的时候,直接都定了,实在是那设计师太能忽悠了。后来,朋友对我说,装修一定要多看几家。但是,不巧,公司临时指派去太原出差,装修的重担落在老婆身上了,我也只能远程协助。话说,老婆也是很给力的,89平米两房两厅的户型,客厅装出来简直都像是150平的客厅,真是太棒了。

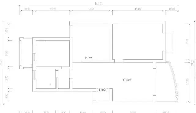
原始户型图,左边是北向,右边是南向,单卧朝南,还算南北通透吧。

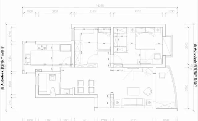
改造后的户型图。

既然标题说客厅了,那就先来客厅照吧。

看到我家阳台了吗?开放式的阳台,直接并入到了客厅里边,采光和空间感非常棒。

但是阳台,老婆也没放过,直接改成了工作区,因为是两居没书房,所以阳台就这样被征用了。

沙发背景墙,摆放的都是一些小物件,国外旅游带回来的。

电视背景墙,用的材料是和地板一样的,和电视完全融合在一起了。
新房装修,点击免费领取4套设计方案

玄关,空间太小,就做了个小鞋柜,电视机旁边的冰箱一样的东西,大家猜猜是什么?
原来主卧的门,哈哈,用橱柜给封住了,主卧门设在了次卧的对门,有木有神来一笔的感觉呢?

餐厅,原来次卧的门打掉,改成旁边了,这样次卧这堵墙就利用起来了,陈列的也是从国外带回来的小物件


U型设计的厨房,超大双开门冰箱,爱看韩剧的老婆,强烈要求的。话说是想心情不好的时候去静静。整个厨房空间必用的很好,上下橱柜齐了,单独做了洗衣机的空间放洗衣机。

主卧,简单装修

推拉门的嵌入式衣柜


超有爱的儿童房,我儿子在里边住。

卫生间干区,做了个小木架,收纳用

淋浴间

干区洗手台。
这样的装修,喜欢吗?如此改造,有没有给各位带来什么启发呢?欢迎留言。
·END·
声明:本文由入驻焦点开放平台的作者撰写,除焦点官方账号外,观点仅代表作者本人,不代表焦点立场。
