头一次见“S形”改造,让空间利用达到较大化,小户型的典范!
扫描到手机,新闻随时看
扫一扫,用手机看文章
更加方便分享给朋友
提示:点击上方"北京紫名都装饰"↑更多惊喜等着你.....

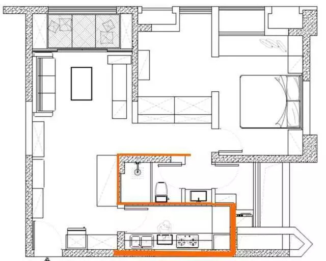
房屋改造后户型图变化
业主房屋面积有72㎡,原先的户型设计中,卫生间未能实现干湿分离,主卧空间狭小。经过改造后,将飘窗改成榻榻米的茶室,S型通道设计使得整个户型更加合理。具体可以下面:
一、打造一个多功能空间

很适合独居的人,平时我起床排名前列件事就是冰箱拿牛奶或者打豆浆,然后坐在餐桌前发呆。依图中所见,入户门右边的实木墙体是旧木板回收制作而成的,赋予了空间新的质感。放置冰箱的位置,其实很早就做好规划,要定制收纳柜。

▲挂钩的安装有效解决了悬挂外套,钥匙乱放的问题。安装挂钩的同时也避免墙体的破坏。

餐厅和客厅融为一体,没有具体划分是希望风格上可以更加统一。我不太喜欢传统的餐桌、餐椅,所以设计师较后决定设计一个吧台,就餐需求和节省空间一箭双雕!

客厅没有安装电视,在原应该放电视的那面墙安置了一把长椅,方便亲朋好友来做客的时候,大家可以面对面更好的交谈。长椅上抱枕的存在,软化了整个空间。


原先的阳台经过改造,变身成一间和室。电动升降桌,将桌子升起,坐在里面办公,看书,聚会等多功能一体化模式。将桌子降下则变成了午休室或临时客房。
二、卧室:拆掉两堵墙,变成我想要的开放式大卧室


▲卡座的设计,满足了屋主休闲时的需求,还为房间增加了储物空间。床头柜采用了抽拉式的台板,让功能更加完整,既可以作为小型餐台也可以放置物品,巧妙的设计,大大提升了生活的便利性。

三、S型结构,让两个空间利用较大化

1、窄长的厨房
厨房连接卫生间的墙面,原先是实墙,后做成醒目的玻璃砖,加大了厨房的通透感与采光效果。橱柜的颜色依旧延续客厅、卧室的家具的色彩,视觉上更加和谐统一。

▲蓝与灰白的马赛克瓷砖墙面,增加了空间的层次感。
2、卫生间得以实现分离式设计

我们看到的玻璃墙砖,就是连接厨房的那面墙。洗漱台上方安装了一高一低的吊灯,更具个性化。

▲ 因为洗漱区的面积不大,因此缩小了手盆的尺寸。淋浴区的设计非常复古,包括地面的花砖和花洒。
声明:本文由入驻焦点开放平台的作者撰写,除焦点官方账号外,观点仅代表作者本人,不代表焦点立场。







