你准备好了吗?海淀永靓家园选房战正式打响
扫描到手机,新闻随时看
扫一扫,用手机看文章
更加方便分享给朋友
【搜狐焦点 楼盘评测】位于北京市海淀区西北旺镇的永靓家园,从今日开始到24日,在北京市昌平区九华山庄17区进行集中选房!不知道各位购房者是否已经准备就绪,趁着开抢前,再检查下自己的装备是否齐全,鞋带是否系紧,最重要的时候,主打房型、备选房型要全部记住!!
敲黑板!!项目最终销售2141套,在户型方面,针对两居户型小编有话说,建议摇号靠前的朋友们,优选B2、B4户型,千万别因为人家不是南北通透就嫌弃啊!要不然好房源就和您说88啦。当然B2、B4房源不可能满足所有人的需求,如果碰巧到您的时候该房型已被抢光,那不妨从B1和B3两个房型中选择一个,好歹人家也是南北通透。
最后小编要告诉你,选房的时候,一定要“稳准狠”,切记别犹豫,小心房型一不留神归他人了。
小编的能力有限,只能帮到你这里了,预祝各位好运,拿下自己心仪的房子。
如果你还想了解项目的更多信息,不妨往下看:
交通
推荐指数:四颗星
小编早上8点半从4号线海淀黄庄站出发,历经8站,成功抵达地铁16号线西北旺站。由于小编比较胖,所以选择走路的方式,前往1.4公里外项目现场。当然,除了步行以外,周边的公交车也能抵达项目现场。
多嘴说一句,908路和963路公交车距离小区的正门比较近,而449路和584路公交车则临近小区的西门。
在公交方面,可以轻松抵达北三环、中关村等地段。如果您要是出行,不愿意做地铁的话,不妨考虑公交。当然前提是在您不赶时间的情况下,毕竟公交不堵车还好,堵起车气疯人。
说完了,地铁和公交,小编也为有车一族的朋友们,考察了下,项目距离G7京新高速约10.5公里,距离五环肖家河约14.3公里,平时G7京新高速比较拥堵,业主可以选择走黑泉路上五环进入城区。(请原谅小编是名伪司机,只知道路,不会开车,只能用导购的方式给各位展示)
价格
推荐指数:五颗星

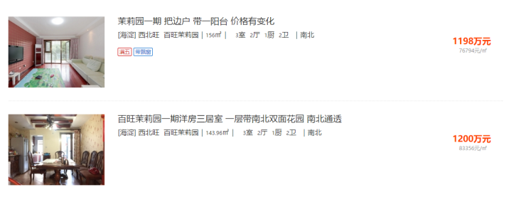
永靓家园均价37800元/平米,看下北京市场,郊区的房价也没有这么低的了,更不要说项目是在海淀!小编不禁想大声说,这价格真是太便宜了。小编为此特意跑了一趟中介,询问了下周边的百旺茉莉园二手房价格,居然要7万多一平,我的天~~(请原谅我,我不是有钱人,买不起这里的二手房,我只能买得起永靓家园。)
户型
推荐指数:三颗星
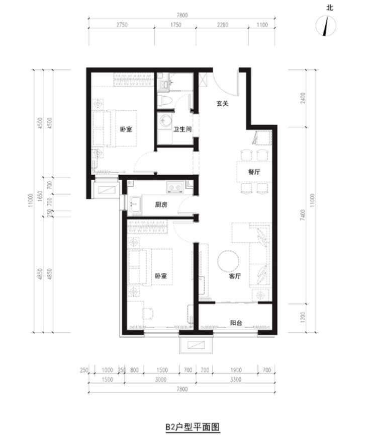
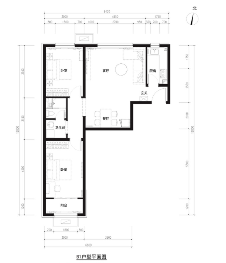
项目共分为A1户型、A2户型、B1户型、B2户型、B3户型、B4户型和C户型,共7种,其中A1、A2户型为建面约55平米的一居,B1-B4户型为建面约88平米的两居,C户型为建面约89平米的三居。
本次选房,房型最多的当属两居,那么4个户型如何抉择呢?小编悄悄告诉你:
从户型选择上,小编建议您优选B2、B4户型,尽管这两个不是南北通透的,但是他们主卧朝南,客厅向阳,光线充足。
如果B2、B4两个户型已经被选没了的话,不妨在考虑下B1和B3两个南北通透的房型,这个房型的缺陷就是卧室和客厅处在阴面,没有办法享受阳光的美好。
两居的户型就为您介绍到此吧,至于一居和三居的房源,就要看各位的实际情况了。
偷偷的告诉你,在项目东北角,有一个垃圾场,现在已经开始进行填埋处理了,如果您要是介意的话,选房的时候可以避开该区域的房源。
配套
推荐指数:两颗星
在项目周边,小编苦苦找寻了一个小时,也没有找到大型超市、商场和医院。所幸在附近项目的底商处看到了一些小店,仅够满足大家的日常需求。不过也有一个好消息,据听说,在项目附近的汽配城的北边马上就要建立一个最完善的医疗配套,相信到时候越来越多的配套会完善。
最后小编想说一句,在海淀一套均价37800元的房子,如果能选中的话,您就别犹豫了,买了吧!这种机会不是每次都能轮到的,错过了,可没有后悔药啊~~~
如果您要是没有看够的话,别急,搜索微信“拼房帝”,排名前列时间掌握项目动态。
声明:本文由入驻焦点开放平台的作者撰写,除焦点官方账号外,观点仅代表作者本人,不代表焦点立场。







