网申!256套共有产权房,现房网申!城六区也有资格!
扫描到手机,新闻随时看
扫一扫,用手机看文章
更加方便分享给朋友
开篇先跟大家同步下楼市热门小道消息:
🆕 最近北京市政府东边某村庄拆迁安置补偿1200万引发网友热议,补偿明显比前几年高了,这啥信号📶 回复【吃瓜】可以查看。
🆕 运河八子新料来啦!据说性价比很高。
网传0708,0810,0811做大户型,主力150,175,200㎡,局部有240~250㎡的大平层。
0708素质最好,据传单价最高可以到7万左右。
0810和0811地块,主要是150~200㎡的户型,150㎡,单价6.3至6.4万,200㎡左右的卖6.6至6.8万。
不临河单价最低可以到5.5~5.8万元左右,0705据说会有90㎡左右的小户型。
‼️更多楼市消息,扫码进群!
!!加群,细聊!!
正文-
时隔半年,北京共有产权房终于又有消息了。
亦庄共有产权房项目-亦城亦嘉开放申购登记,
登记时间:2025年6月10日10:00至2025年6月24日17:00
网申地址:http://gycq.zjw.beijing.gov.cn
项目位于北京通州区马驹桥镇,
小区住宅总套数1312套(含回迁房173套),共有产权房1139套,
本次配售房源256套,分别为建筑面积约120㎡三居31套,约90㎡二居221套,约70㎡一居4套。
含全装修费用,销售均价25500元/㎡。个人产权比70%。
全部现房:
*申购条件
(一)符合以下条件的无房家庭可提出购房申请:
1.申请人应具有完全民事行为能力,申请家庭成员包括夫妻双方及未成年子女。单身家庭申请购买的申请人截止申购登记结束时应年满30周岁。
2.申请家庭应符合本市住房限购条件,且其家庭成员在本市均无住房。一个家庭只能购买一套共有产权住房。
3.非京籍家庭申请人申购本项目在京连续缴纳社保或个税应满足北京市限购政策。
(二)有以下情形之一的,不得申请购买共有产权住房:
1.申请家庭已签订住房购买合同或征收(拆迁)安置房补偿协议的。
2.申请家庭在本市有住房转出记录的。
3.有住房家庭夫妻离异后单独提出申请,截止申购登记日期最后一天离婚年限不满三年的。
4.申请家庭有违法建设行为,申请时未将违法建筑物、构筑物或设施等拆除的。
申请家庭承租公共租赁住房、公有住房(含直管和自管公房等)后又购买共有产权住房的,应在购房合同网签前书面承诺腾退所租住房屋。
*销售对象
1.第一组
在经开区集成电路产业企业中就业的无房家庭。
认定标准:申请人所在企业属于经开区集成电路产业, 申购前一个月在北京市个人社保权益记录中所载明的缴费地为北京经济技术开发区。
2.第二组
第1类:在亦庄新城225平方公里范围内以及本市城六区(东城区、西城区、朝阳区、海淀区、丰台区、石景山区)就业的无房家庭。
认定标准:申请人申购前一个月在北京市个人社保权益记录中所载明的缴费地为经开区或城六区。
第2类:通州区台湖镇、马驹桥镇,大兴区瀛海镇、旧宫镇、亦庄镇、荣华街道、博兴街道以及本市城六区(东城区、西城区、朝阳区、海淀区、丰台区、石景山区)户籍无房家庭。
认定标准:以申请人户籍在上述所在地为准。
第3类:为亦庄新城发展提供服务的各有关单位就业的申请家庭。
认定标准:服务于亦庄新城建设发展的企业事业单位、经开区工委管委会各机构、各街道、各驻区职能局、各专业公司、国家及北京市派驻经开区各部门、承担经开区六十平方公里范围内公安主体责任的单位、经开区内公办(含私立非盈利性)学校、公办非盈利性医院、经开区管理的社会组织等相关单位、经管委会批准的其他单位等在职在编且截止申购登记日期最后一天试用期满的职工,申请人提供截止申购登记日期最后一天在本单位试用期满的工作证明或劳动合同。
第二组中的3类申请家庭不分组别,以摇号顺序作为选房先后顺序。
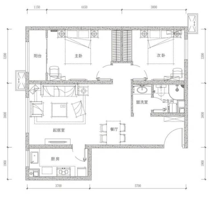
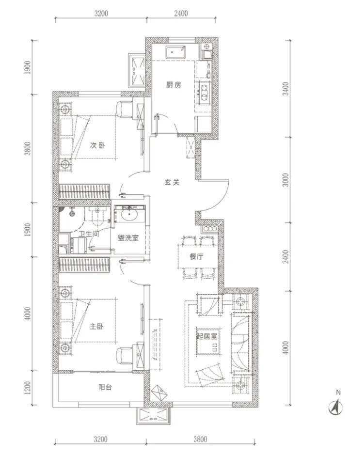
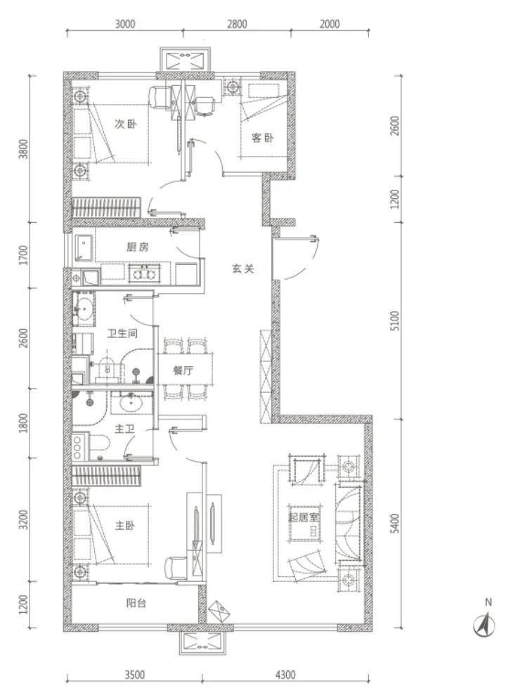
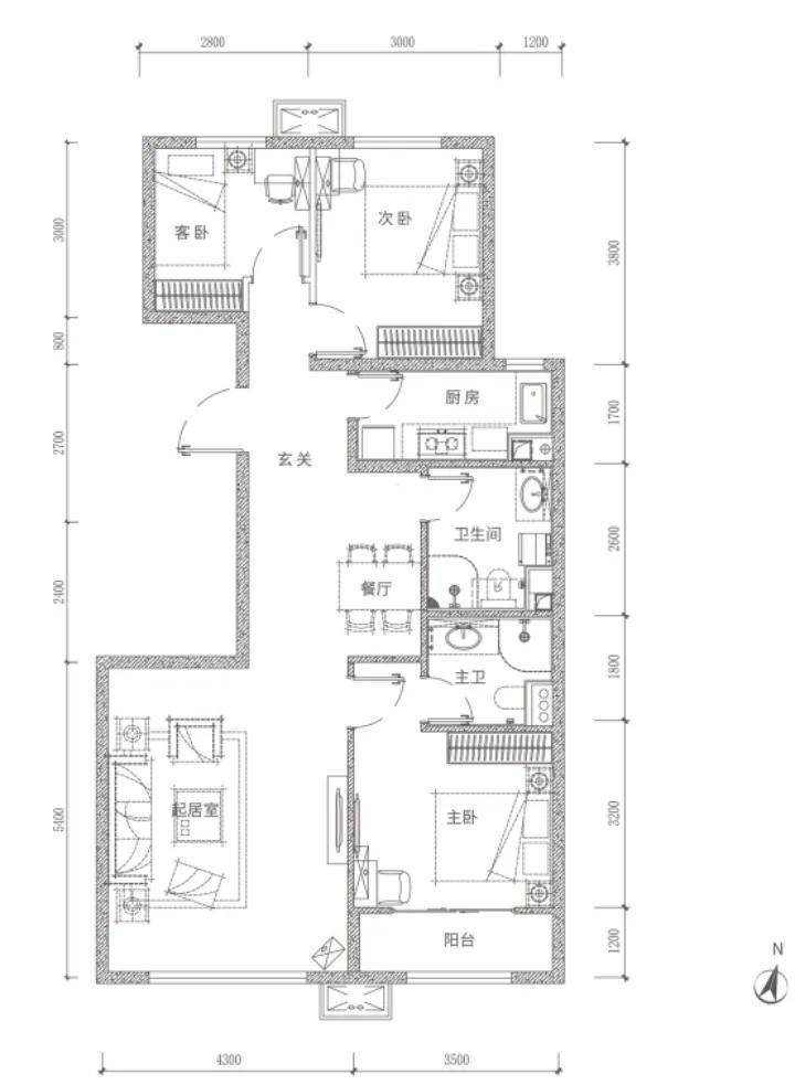
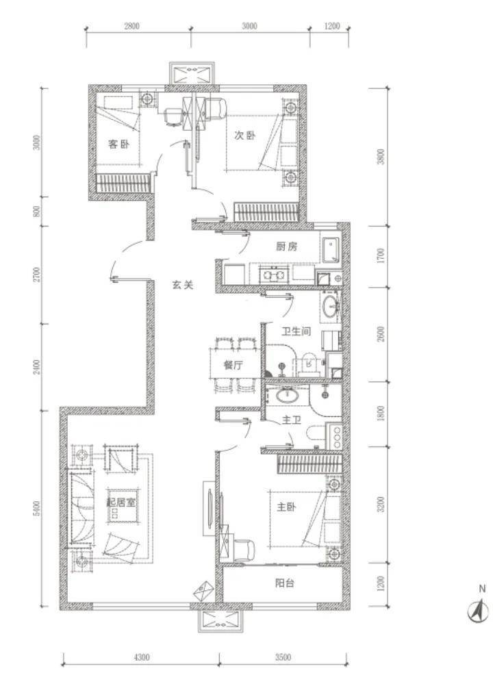
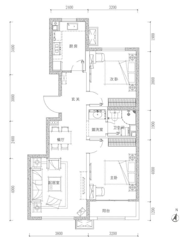
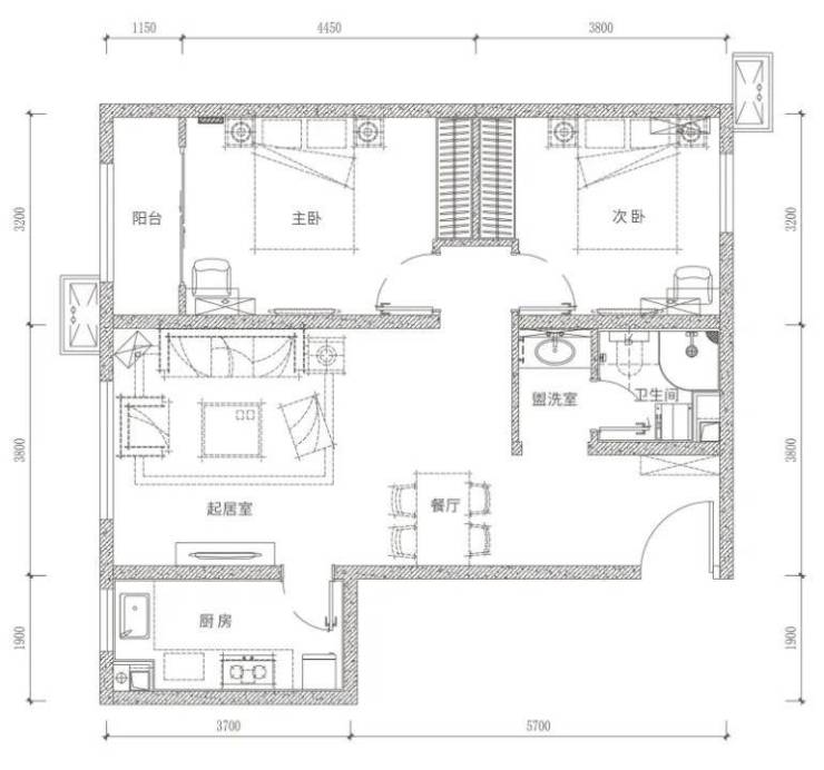
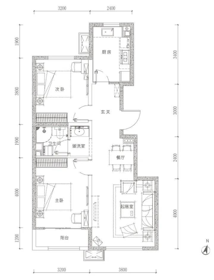
户型:
A1反户型,建筑面积约90㎡
A2户型,建筑面积约90㎡
A3户型,建筑面积约90㎡
B1户型,建筑面积约120㎡
B2户型,建筑面积约120㎡
A1a户型,建筑面积约70㎡
项目《北京市共有产权住房现房买卖合同》已在网上公示。合同链接:链接:https://pan.baidu.com/s/1sfZtqJAN4cCiV_kEMQKhcw 提取码:ypug,如对现房买卖合同有修改意见,请于2025年6月24日17:00前反馈至kfqgycq@126.com
更多信息,戳【阅读原文】获取:
补充信息:
如果你在考虑北京置业,如果你在犹豫不知道如何选择,扫码加小助理,一对一帮你捋顺需求,锁定最适合你的选择。PS,也许还能帮你省钱哦。
声明:本文由入驻焦点开放平台的作者撰写,除焦点官方账号外,观点仅代表作者本人,不代表焦点立场。







