北五环门槛再降!首付100万左右拿下75大两居!
扫描到手机,新闻随时看
扫一扫,用手机看文章
更加方便分享给朋友


哈喽大家好,我是血拼哥。
开篇先跟大家说个好消息,
要问当下北京新房市场哪里最火,那昌平绝对排的上号。
开年昌平朱辛庄项目开盘,售楼处爆满,一度排队看房,朱辛庄可以说凭一己之力拉起了整个北京新房市场小阳春的热度。
昌平热度走高,无疑会给想在昌平置业的朋友增加难度。
比如去年还6.2万的朱辛庄今年就6.6万/平了。
不过最近听说昌平新项目上新,预计5月开盘,走性价比路线,小户型,低总价,
这个项目就是建工嘉境里。指导价5万/平,开盘价预计4字头!
性价比真的那么高吗?有硬伤吗?
01五环外再上新 不临铁
北京建工·嘉境里,位于北六环与京藏高速公路交界处东南方向,紧邻昌平沙河中心小学和北街家园六区,与龙湖滟澜新宸隔了一条京藏高速。
地块并不临铁,距离沙河高教园地铁站直线距离大约2.5公里,步行🚶更远。
项目位置妥妥沙河高教园,未来区位依仗也是沙河高教园的发展情况。
好消息是,项目所在的区域是沙河西北片区,产业支撑有沙河高教园和创新基地。
西沙屯组团有新能源、新材料等高新技术产业基地,加上沙河高教园的教育资源,片区未来的购买力、流通性是可以的。
另外,地块北侧0024地块规划一个3万平商业用地,补充板块大型商业配套。
沙河板块主打科教新区,相比南边朱辛庄的产业及商业配套确实逊色一些,不过胜在配套在完善,价格够便宜。

横向比较,
距离嘉境里最近的梧桐星宸位置更好,网签均价52698.18/平,嘉境里明显没有这个底气,西边的国誉燕园网签均价33050.03/平,南邵组团的建发观堂府网签均价46445.66/平。
嘉境里不临铁,讲真不太适合对轨道交通依赖程度较大的刚需。如果选临铁,可以考虑梧桐星宸;如果想要低价,那么3.3万/平左右的国誉燕园完胜。
所以嘉境里4字头的价格,介于以上两个项目之间,与产业商圈的距离也介于这两者之间。

·3月末昌平网签情况,后台回复【网签】,获取全部新房网签信息
另外,多说一句,项目向南直线距离不到2公里是2022年开盘的汇智里,目前网签均价4.76万/㎡左右,目前剩余了了少量工抵房,据说价格更便宜,可以联系捡漏。
项目还有一大卖点,生活环境优美。
距离项目500米内就有东沙河滨水景观带,而4公里范围内有昌平新城滨河森林公园,还有沙河湿地公园和白各庄生态湿地。
最后说下通勤,这是项目一大硬伤,距离昌平线沙河高教园站不到3公里,据说正在规划社区班车,也能实现,三站朱辛庄,五站西二旗。不过整体来看,自驾更方便。
均价不到5万,可以实现教育、商业、产业均沾的板块,性价比还是很不错的。
那么总价如何,居住品质如何?
02 1418套 小户型为主
看规划图就知道,2是北京建工·嘉境里的位置。
东侧10有建工配建的15班幼儿园,同时东南12规划了24班小学,北侧规划18班初中。北侧1规划了3.38万平的商业用地。
板块安排的明明白白,虽然现在是一大片空地,但是未来,商业、教育、居住氛围,规划齐全!
项目透漏,将入市1418套房源,以小户型为主。
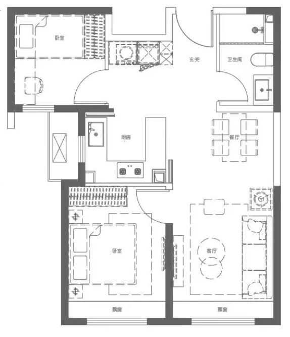
近日,项目户型图过程稿流出,75平纯南向两居跟沙河梧桐星宸很像,给大家看看,仅供参考哈。
嘉境里主力户型75-155㎡
75㎡纯南向两室两厅一卫,这么小的空间居然还设计了家政间,加分。
客厅主卧南向,餐客一体空间切割的很整齐,次卧采光可能会有些许遮挡。整体尺寸还没有,不过户型设计不错,看最终的得房率了。
这里插一句,目前丰台、顺义报规给足了空间,相比来看,昌平更严,心疼北边的购房人。

85平挺狠做了三居,
流出的户型图信息上看是全明户型,应该只有边户才能做到。
这个面积段户型市面上也有,不过嘉境里很规整,空间切割很利落,大大提高了空间利用率。期待具体的空间尺寸和得房率了。

据说嘉境里开盘价,最小75平两居总价350万,首付105万左右就能上车北五环的沙河高教园板块新房,目前看这个价格区间得再往北,北六环观堂府找,可以考虑持续关注。
新房价格大家心里有数了,那么如果不在意居住条件,看二手房,沙河西北片区现在啥情况呢?

总体看,嘉境里附近改善居多,龙湖滟澜新宸均价5万/平,北街家园这样2005年左右的房子4.8万左右,这个价格可以往沙河地铁附近看看,楼龄80-90年代的民园小区和2000年的五福家园都可以低总价上车。
如果有意向,可以等等项目5月的开盘价,嘉境里的客户竞争其实不小,期待给足诚意呀。

声明:本文由入驻焦点开放平台的作者撰写,除焦点官方账号外,观点仅代表作者本人,不代表焦点立场。







