淡定!家里的阳台能跑步这事儿你信吗?多新盘集中入市听说昌平要涨价
扫描到手机,新闻随时看
扫一扫,用手机看文章
更加方便分享给朋友
本期看点:
1、 多项目开放售楼处和样板间年底了必须要冲一把
2、 改善盘扎堆入市落地窗配阳台户型是真的卷
3、 昌平再出新地据说指导价又涨了估计一部分人要不淡定了
4、 你家的阳台能跑步吗?看看顺义的新房市场又多卷!
来各位咱们接着看看上周的京楼市场
先看看几个开了售出或样板间的项目,昌平的梧桐星宸在上周末开放了样板间, 75、85和99一共三个户型,面积为59-127平米的一至四居且有普宅,指导价5.5万首付114万起就能在高教园上车了,边上有地铁昌平线出行还算方便的,对于在北部上车的刚需朋友来说性价比开可以。另一个西红门板块的中建玖玥府在上周末也开放了样板间。

现场同样做了仨,分别为98、108和154的户型主打改善,跟橡树湾一样本次中建的户型也做了落地窗设计,这种产品之前在橡树湾已经验证过了,对于购房者的吸引力还是有的,作为南城新兴的板块自从学校和地铁19号线确定了以后,西红门新盘的销量就开始不断增长,我上个月做网签统计的时候橡树湾的一期网签量已经达到80%,二期的网签量也到了60%,这还没有算网签滞后的那部分,所以你有计划在南城改善上车的,西红门是个值得推荐的地方,将来等这个区域的新房全部交房入住后,又将是另外一番景象。
石景山招商的元玺也正式开放了售楼处,跟保利一样招商也把售楼处放在了首钢园里,本次走的是纯改善路线户型为120-195平米,指导价7.8万按照最小面积计算总价至少936万起,样板间和户型图还没出来您可以再等一等,不过您可以参考亦庄招商玺的装标,品质这块两个应该是大差不差,至于会不会也出阳台配落地窗的让我们拭目以待。
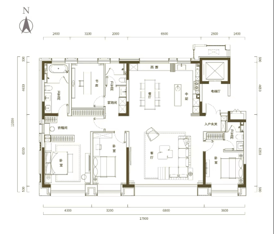
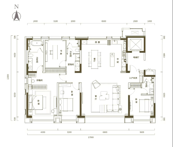
昌平的国贤府在上周拿到了预售证,户型同样以改善为主装标做的是真不低,各种的岩板上墙并且南北双向都配有落地窗,这在当下京楼市场的新房产品中也是不多见的。我把预售证里的楼栋信息挨个统计了一下,得房率是真不低在81.99-84.91%之间,一水的纯洋房设计抛开位置不谈,如果只是单纯的改善居住的话这产品绝对没毛病。

海淀的大豪宅印香山户型图也出来了,从已知的户型来看四面宽大宽厅成为了项目吸引人的卖点,有实力的来他一套绝对一步到位了。

上周我去顺义转了转产品户型是真的卷,感觉在这盖房子落地窗配阳台已经成为了顺义商品房市场的标配,你要没这玩意你都不好意思跟买房人打招呼,建发观云我看了下从销控板上看卖了的大概80多套了,这对于当下的京楼市场就已经算可以了。
璟上兰园的样板间也已经对外开放,同样阳台配落地窗现场一共做了仨119、131和152,前两个户型做了交付样板间后者做了展示样板间,我跟现场销售主管聊了会,目前项目也在等待预售证最终落地价格预计在5.1-5.4万之间,如果您买个105的三居,总价500万出头差不多就能拿下,个别低楼层的价格还能再低点儿,另外小区最东侧那栋楼挨着15号线,虽说中间有个公园隔着那我觉得多少也会有点噪音影响,所以对噪音敏感的朋友尽量避开。
再有上周我看看了顺义璞瑅润府的户型图并且听了听现场销售负责人给我介绍,尤其是188的户型那阳台据说宽有2米5,并且强烈建议我到时候去看看,如果屏幕前的您同样对顺义的新房感兴趣一定别错过。

最后上周规自委预申请的页面回龙观信息产业基地新地块也挂出来了,位置就在之前的北清云际边上,目前板块内已有多个小区正在建设,据说新地块的指导价涨到了6.6万对比之前6.2万的指导价来说每平米上涨了4000,如果最终真是这样的话那就要恭喜之前板块内上车的业主了,最起码咱买的值了。
好了各位咱们下期见
声明:本文由入驻焦点开放平台的作者撰写,除焦点官方账号外,观点仅代表作者本人,不代表焦点立场。







