祥云赋
扫描到手机,新闻随时看
扫一扫,用手机看文章
更加方便分享给朋友
2018年下半年,随着中央经济会议的定调,在“坚持因城施策、促进供求平衡”等政策的加持之下,房地产开始逐步回稳。场外持币待购的刚性需求、刚性改善客群也开始自今年金秋逐步入场。
而这一次,在稳字当头、购房条件严苛的环境之下,购房人的偏好呈现出两大趋势变化:房产购置回归自住,客户置业更理性,更重视实用功能和舒适居家感;客户购置意愿倾向于一步到位,也因此更挑剔、考虑维度更多。尤其是在未来换房难度更大的北京,上述趋势更为显著。高价值区域的高品质、全功能性、高舒适度产品成为了这批市场主流客群的优选。
从区域上看,一直占据北京高价值地段资源,拥有优质交通、配套和精英人群的居住区,成为市场关注焦点。其中,当前令市场期待的新盘,当属久未推新的中央别墅区中,即将推盘的祥云赋。
这个全北京五环周边不多一个紧邻天然湖的项目,位于北京极高价值的成熟国际级别墅区内,购买门槛却在500万量级,仅此一条,就已让市场目光难移。而更重要的是,这个具备革新意义的产品,与时代回归理性、人居回归理想密切相连的种种特质。

价值革新 市场聚焦中央别墅区
北京八大传统别墅区中,仅有顺义的中央别墅区能被冠以“中央”二字,其重要性不言而喻。作为北京,甚至是全国的排名前列个中央别墅区,这里历经26年成长,更一直以来都是接近人们居住理想的所在。
从地理区位上看,中央别墅区不仅周边生态资源丰沛,更是交通节点汇聚的要势之地,甚至如今仍是京城离城中心最近的别墅区,可谓地段优越。其中最难以复制的,还是北京最为少有的的生态优势资源——北京不多一条四季长流的温榆河及其河畔绿色生态走廊,占地300亩的罗马湖水域。
在经济区位上,在临空经济的推动下,望京、物流、会展等产业快速发展,首都东部发展带在成为北京更具经济活力的新增长极的同时,也让这里的商业氛围快速成熟——16所国际学校、6大马术俱乐部、16座高尔夫俱乐部、10家权威医院、8大商业购物中心等环伺左右,让中央别墅区形成的高品质的慢生活氛围无可比肩。
除了优渥的自然资源,便利的交通,低密度的居住环境,中央别墅区最傲于市场的莫过于整体的居住氛围。从最早的外销别墅,到全球500强高管定向居住的区域,国内先进人群的聚集,也令此处集结了一批全中国精英的社群,可谓往来无白丁、谈笑有鸿儒。
产品革新 “祥云赋”式的居住理想回归
作为中国精英阶层愿意选择的理想居所区域,中央别墅区在二十多年的发展中,一直以高端别墅为供应主力,不断进化。每一个历史阶段,都有标志性时代产品诞生,如今,祥云赋的出现,亦是在当下房产回归居住本真的时代变革中,应运而生的时代产品。

面对回归理性的市场,回归居住理性要求的购房人,旭辉集团、中粮集团、天恒置业与恒基集团四大品牌的联手之作,祥云赋也在用更贴近时代所需的产品提供答案。
让居住价值不只是室内空间,“祥云赋”将中央别墅区的大环境价值做到在与罗马湖仅一路之隔的地方,充分运用湖景资源,在高级城市别墅生活区里打造低密度舒适湖院生活。祥云赋打造了北京新合院别墅、90平米三居墅质高层两大类先进湖居产品,并配备了完善的社区商业业态。
其中,祥云赋合院产品打造为新中式风格,并从空间尺度和功能角度打造了有天有地、满足三代同堂多功能舒适居住。同时,其合院未来总价预计不会超过两千万——这是中央别墅区中,一个多年未见、令人心动的合院产品价格;对于想进入中央别墅区,享受其核心湖居生活和优质居住体验的新贵阶层来说,是一次难得的机会。
更难能可贵的是,祥云赋成为限竞房时代影响下中央别墅区低价的购买门槛,同时保持着墅质高层的高品质价值:通过优质的户型格局,祥云赋实现了全生命周期空间,且功能分区明确、南北通透。为了进一步实现居住理想的产品价值,祥云赋也一次次优化升级高层三居产品,实现明卫的同时,增加室内储藏空间及阳台观景与功能面积。与周边竞品相比,祥云赋产品在做到功能结构完整、居住体验优越的同时,具备极高的总价优势。
高价值、高配套、高素质的中央别墅区,因祥云赋而不再遥不可及。与中央政策方向同在,带给社会更舒适的居住,更自由的选择,这,正是在房产回归居住本真时代中,“祥云赋”式的居住理想回归。
《中粮.祥云赋》
【项目位置】:项目位于中央别墅区后沙峪,罗马湖环岛沿天北路往北约500米,罗马湖东湖北岸临湖合院

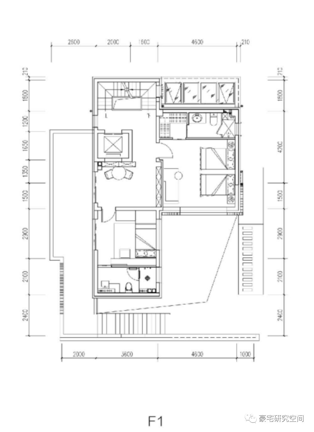
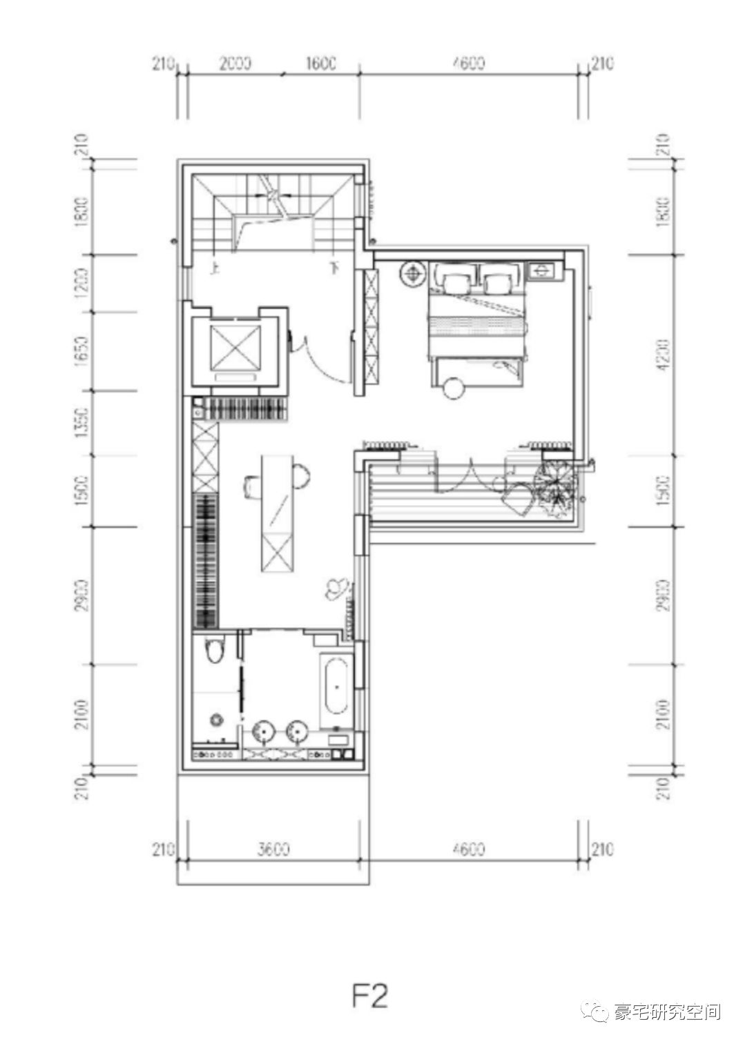
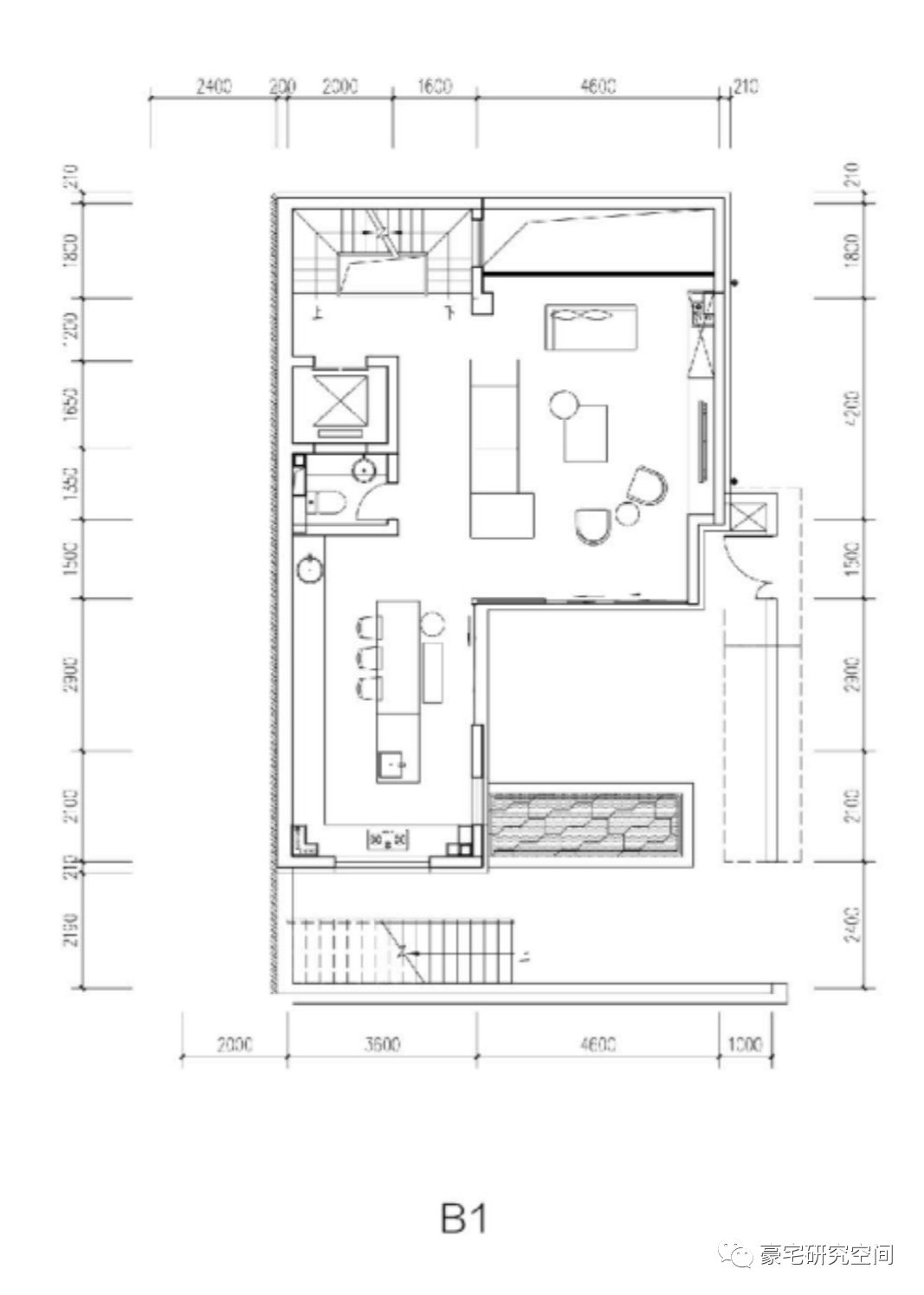
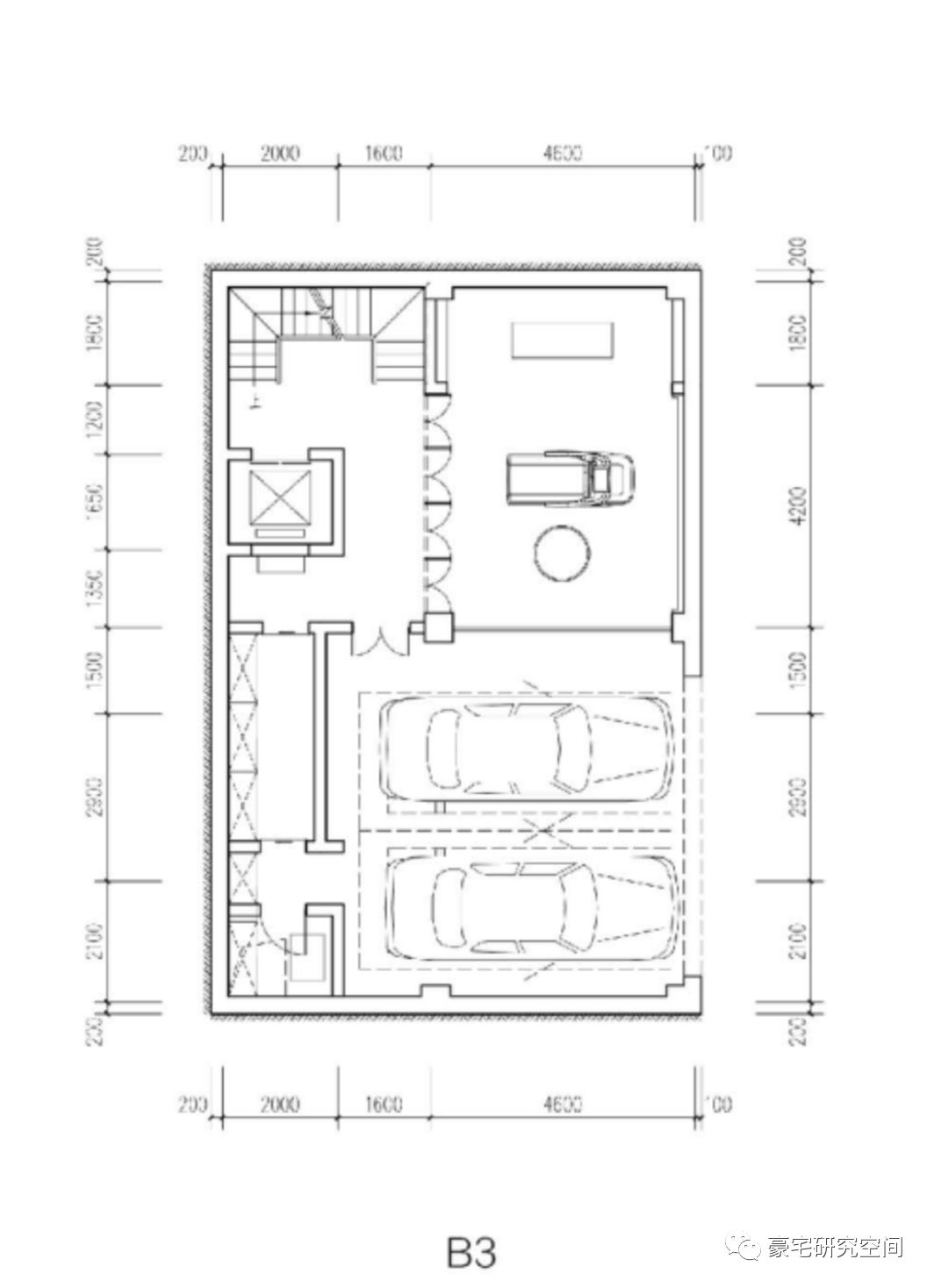
建筑面积:400㎡/500㎡
使用面积:500㎡-600㎡
花园:35㎡-105㎡
总价:1500万-2000万
交房时间:2021年
每层层高:3米
产权年限:70年
开发商:中粮、旭辉、天恒、恒基
项目卖点:
地处中央别墅区后沙峪板块,周边配套完善中粮祥云小镇,欧陆广场,荣祥广场,枫尚奥特莱斯,物美,永辉。
国际化教育氛围浓厚,项目北侧海嘉国际学校,鼎石国际学校等16所国际学校。
全北京五环不多一个紧临天然湖的项目
70年大产权,欢迎莅临品鉴!!!!
合院别墅420㎡








项目距离首都机场约7公里,距离望京商圈约10公里,距离燕莎商圈约20公里,距离丽都商圈约22公里。项目往西距京承高速火沙路高速口约4公里,往东距京密路约6公里;往北距机场北线约2公里。以高速公路、主干线为骨架,形成“六高速,五横、三纵”的立体交通格局。六高速分别是六环路、机场北线高速、京平高速、京承高速、机场高速、机场第二高速;五横是机场北线、顺平路、双裕大街、火沙路、京平高速,三纵分别是京承高速、天北路和京密快速路轨道交通方面,目前可乘坐地铁15号线快速通达望京等繁华商圈,同时,已经开工的现代有轨电车T2线,规划中的迪亚庄院站和青岚花园站在项目北侧,预计2019年开通。
小区配套
祥云赋位于高净圈层集聚的中央别墅区,由中粮、天恒、旭辉与恒基四大品牌开发商联手打造。项目拥享中央别墅区醇熟国际化配套,16所国际、6大马术俱乐部、16座高尔夫俱乐部、10家医院、8大商业购物中心环伺,同时,拥有密集便捷的现代交通路网,以高速公路、主干线为骨架,形成“六高速,五横、三纵”的立体交通格局,快速通达北京城区各核心商圈,轨道交通方面,目前可乘坐地铁15号线快速通达望京等繁华商圈。项目与罗马湖一街之隔,近览300亩湖光悦色,规划观湖合院、瞰景高层。

声明:本文由入驻焦点开放平台的作者撰写,除焦点官方账号外,观点仅代表作者本人,不代表焦点立场。







