60㎡小户型竟然有3个阳台,爆改成厨房、休闲室,瞬间多出2间房!
扫描到手机,新闻随时看
扫一扫,用手机看文章
更加方便分享给朋友

今天给大家看一套60㎡的小户型,两居室半包装修花了7万。房子面积不大,但里头布局规划十分合理,很多排名前列次来的人,根本不敢相信这房子只有60平。
房屋信息
本案户型:两室
使用面积:60平米
房屋位置:北京朝阳区东三环
装修花费:半包7万(工人+辅料+水电改造)
设计单位:JORYA玖雅设计
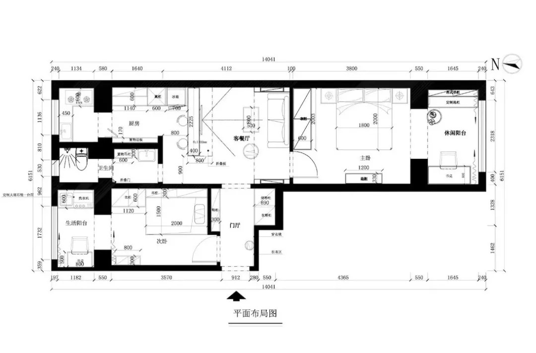
户型图

▲结构改造图

▲ 平面布置图
玄关


门厅墙体做了改造,原有墙体后移,空出空间安放储物柜,增加入户空间利用率。为了使用方便,墙上安装洞洞板衣帽挂钩,挂钥匙、帽子、包包很方便。
客厅

通过后移原始墙体,增大客厅空间。在沙发两侧设计壁龛,用于放书,充分利用空间。

原木板做电视墙,兼任客厨隔断,半开放式设计有助于在视觉上延伸空间。

客厅与餐厨区地面采用不同材质铺贴,隐形隔断划分不同机能空间。

在原始狭小暗厅中想要得到一个有客餐厅功能的空间,多功能吧台实现功能上的需求。
厨房

厨房地面通铺六边形花砖,立面白色地铁砖工字铺贴。厨房旁边有个小阳台,为了不显拥挤,设计师将烹饪功能移到了阳台区域,铁艺折叠门可以隔绝油烟,同时不占用过多过道空间。
卧室

次卧地面通铺木质地板,暖色乳胶漆墙面搭配极简吊顶,并使用整体定制家具来增加储物空间。

利用次卧阳台靠近卫生间位置的优势,在水电改造时对给排水进行调整,将洗衣机放置到阳台空间。
蓝色花砖铺贴墙地面,精致上档次,防水效果也不错。但是洗衣机放在卧室,如果有人在卧室休息,使用起来会不太方便。

主卧延续木色地板,蓝色乳胶漆背景墙高级感爆棚,白色移门衣柜做了及顶设计,解决空间储物问题。

超喜欢这个黑色壁灯,简约又不失设计感,主人家的好品味就体现在这些细节里。

床尾用原木小家具给女主打造出一个素雅的化妆区。

主卧也有阳台,厨房一个、次卧一个、主卧一个,还是头一次见带有3个阳台的小户型。主卧阳台改造成休闲区,设计卡座及吊柜书架来实现业主图书角需求。
卫生间

卫生间采用白色瓷砖工字铺贴,搭配黑色线条与装饰,强烈的对比色调赋予空间清爽立体感。

卫生间面积小,没有用玻璃移门做干湿分离。另外,设计师通过不同材质与色调的使用,让卫生间更显宽敞明亮。
最后,关于小户型扩容显大,设计师给出3点建议:
1、面积不足的情况下多考虑纵向空间的利用,
这套案例中很多上下不同的功能分区:
1、 客餐厅处柜子上下分别可做小餐桌和电视柜
2、 卧室阳台上下分别做了吊柜和休息区
3、 次卧阳台下面是洗衣机上面是洗手池以及储物隔板
2、通过定制家具来满足小户型的收纳问题
案例中榻榻米、整体橱柜、电视柜、门厅储物柜的定制都实现了收纳功能,并且不会单独占用太多空间
3、借用空间
两个卧室的空间比较充足,在不影响卧室使用的前提下进行了墙体改造,同时满足了客餐厅以及门厅的储物需求;并通过改下水在次卧阳台增加了小洗衣房
向你推荐一个超棒的家居号




▲长按图片 识别二维码 关注
声明:本文由入驻焦点开放平台的作者撰写,除焦点官方账号外,观点仅代表作者本人,不代表焦点立场。







