拒绝“边角料”!原来七十多平的小户型也可以玩出这么多花样
扫描到手机,新闻随时看
扫一扫,用手机看文章
更加方便分享给朋友
最近在整理资料的时候不禁感慨,现在的户型做的真是越来越好了。大户型就不用说了,四叶草经典户型、大面宽、落地窗、标配阳台、主卧套房等全都给配上,十分注重收纳空间以及动线的合理性规划,让人挑不出毛病。其实不光是大户型,即使是两居室的小户型也在迭代。以前,很多小户型被认为是“边角料”,东西向、刀把户型都很常见,稍好一些的会给做成纯南向两居室,类似下边这种:

两个卧室和客厅均朝南,客厅面宽3.2米中规中矩,客厅和南向主卧带飘窗,有餐厅位置,卫生间是暗卫,通风性差一些,这个就是比较常见的两居室,要说优点就是阳面多,冬天很暖和,缺点就是通透性不好,夏天比较热。
现如今,小户型给做成南北向,而且整体的设计更贴合当代人的居住习惯,今天就拿两个户型来解析下。
先来看看位于石景山广宁村板块的保利·璟山和煦的75平两居户型,南北通透,保证了居住舒适度。一进门有独立的玄关,可以收纳一些东西;另外一侧就是卫生间,回到家之后放下包包转身就去洗手,动线很合理,卫生间做了干湿分离设计,洗手盆是在一个独立的小空间,可以避免潮湿;有独立的餐厅位置,且位置较为宽敞,亮点是餐厅旁边还有一个窗户,可以边吃饭边赏赏窗外的风景,就很惬意了;厨房是U型设计,操作台面较大,两个人一起做饭也能转的开。作为一个75平的小户型来说,这种设计已经很不错了,可圈可点。

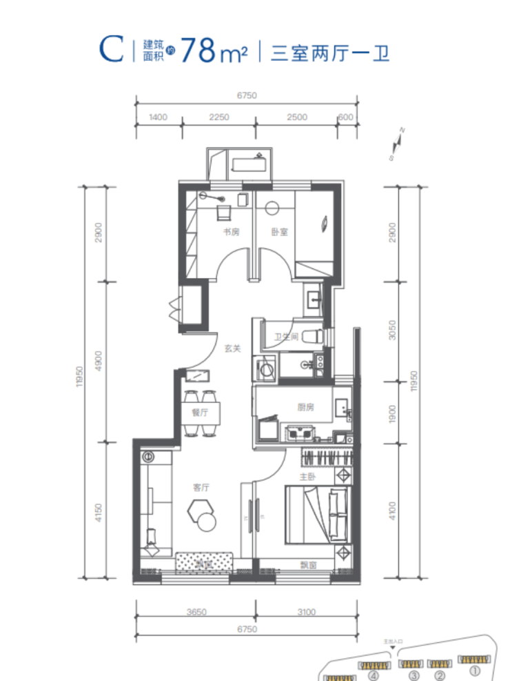
接下来看看北京城建·国誉燕园的78平户型,做成了三居室设计,主打功能性三居。南向客厅面宽达到3.65米,这面宽在七十多平的的户型当中已经算是非常优秀的了。北向两个卧室交房的时候是有隔断的,但是中间的隔断是非承重墙,可以根据需求打通,变成一个两居室。卫生间是明卫,干湿分离,可以很好的避免潮湿。餐厅和厨房紧挨着,方便端菜端饭,动线合理。这个户型可变动比较强,如果家里人可多,可以当三居,如果小两口居住那就改成两居室也是不错的。
总结
从上面两个例子中可以看出,现在的户型更加贴合人们的生活习惯和居住需求,设计的更加合理。小户型可以做成南北通透,也可以做成紧凑型三居,可变性很高。所以说大家在买房的时候,一定要多对比几个项目,关注一下得房率和户型设计,这关系到日后的居住舒适度。
声明:本文由入驻焦点开放平台的作者撰写,除焦点官方账号外,观点仅代表作者本人,不代表焦点立场。







