北京北置业必看!全城热盼的越秀·星樾已取证,开盘在即!
扫描到手机,新闻随时看
扫一扫,用手机看文章
更加方便分享给朋友
北京北新房市场有一个残酷的事实,摆在眼前。
好地段房价已经普遍10万+,对于一般置业者很难上车。从23年已经结束的两次土拍来看,最受关注的无疑是朱辛庄板块,坐拥科技产业发展主轴的地脉优势,经过近10年蜕变,城市配套和宜居价值勃然焕发。板块内有小米产业园和信息产业园加持,产业基础,地铁8号线+昌平线双轨交汇,两站即达西二旗,半小时内快速链接上地、中关村、望京等商圈;商业方面,有TBD住总万科天地、在建的万达广场和超级合生汇;教育方面,101学校中学和幼儿园落地,再加上积水潭医院等多家三甲医院,全能的朱辛庄正在成为海淀置业优质首选。
自拿地以来就备受关注的越秀·星樾,作为北京北的高热项目,目前已取证,更是成为了北京北科创菁英置业的一席必争楼盘!
越秀·星樾缘何成为流量担当,只因无论是地产与产品,还是价格与得房率,样样能打!
其一, 朱辛庄板块属于北京科技产业发展重点范围,北清路、地铁昌平线、地铁M8号线(规划中),宛如三条城市动脉,串联城市科技与人文轴心,占位能级高,且区域内教育、商业资源丰富而多元,所呈现出来的各种生活便利,已经远超同等级其他区域。
其二,目前北京北已有的高标准住宅:树村融创学府壹号院单价9万+、北沙滩中建壹品学府项单价10万+,几乎都是10万+的豪宅;而越秀·星樾仅用约6.2万的价格,实现了“高标准住宅”品质,建筑品质拿下了绿建三星标识,并采用高于市场同类产品的配置标准,如增配洗碗机、中央空调等,是本区域仅有的高标准住宅,“卷王”称号果然名不虚传。
其三,虽非豪宅,但越秀·星樾的产品超级能打,高标准的项目质量已经超越普通的改善置业标准。越秀·星樾用现代时尚的设计手法,打造有品质格调的生活空间,建筑以组团式呈围合排布,形成中央景观区域,在强化采光优越性的同时让居住拥有超市场同品类的瞰景视野;园林以沉浸式度假的理念,融入京味文化,通过“一环一轴四园五景”归家动线,演绎各类美好生活场景。
其四,买房最终买的是套内面积,得房率越高,项目性价比越高。不算不知道,对比一看,越秀·星樾整体户型的得房率之高,能吊打北边绝大多数新盘。这也就意味着,同样的价格,选择越秀·星樾,就能享受更好的居住体验;同理,同样的面积户型,选择越秀·星樾能节省不菲的置业成本,后期在家具和软装品质上还能再增加预算,何乐而不为?
从区域价值及项目规划来看,越秀·星樾已拥有不俗的表现,但最让菁英置业者心动的还是产品的规划。
规划建面约60-127㎡一到四居面向不同类型的家庭需求,以高标准住宅信念,构建向阳生活理念,大尺寸南向面宽、奢阔宽厅、尊贵主卧、独立玄关等严谨设计,有效提升居住舒适度;同时,产品均以高于市场同类产品装配标准,臻选洗碗机、中央空调等关照全龄品质生活,同频千万级高阶质感生活;全系选取中性暖灰色调,体现当代轻奢格调,匠筑有温度的菁英奢享生活场域。
79㎡两居,标准的纯南两居户型,南向总面宽接近8.2m,可以说是两居中的佼佼者了!

101㎡三居,南北通透的主卧套间,餐客一体化的超大空间,动静分区,卧室集中在一侧,整体全明户型,有3-4个南北向的气流通道,通透性极佳。

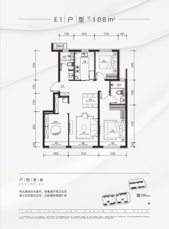
108㎡三居户型,南向三面宽,南北通透、全明户型,LDK一体化空间,南向面宽约9.6m,客厅+主次卧朝南,格局方正,超高得房率,妥妥的明星产品。

北京北置业必看
越秀·星樾,已取证
60-127㎡一到四居
开盘在即!
声明:本文由入驻焦点开放平台的作者撰写,除焦点官方账号外,观点仅代表作者本人,不代表焦点立场。







