正在申购!大兴共有产权房兴宏雅苑单价3万/平
扫描到手机,新闻随时看
扫一扫,用手机看文章
更加方便分享给朋友
北京三元德宏房地产开发有限公司开发建设的兴宏雅苑共有产权住房项目,现该项目正在申购登记,时间为2019年7月24日上午10:00至2019年8月8日下午17:00。
一、项目基本情况
兴宏雅苑项目位于大兴区黄村镇DX00-0103-1304地块R2二类居住用地。项目规划共有产权住房项目地上建筑面积约3.62万平方米。四至为:东至京开高速公路,南至大兴区心康医院,西至林校路,北至漪景园小区。

总套数:360套
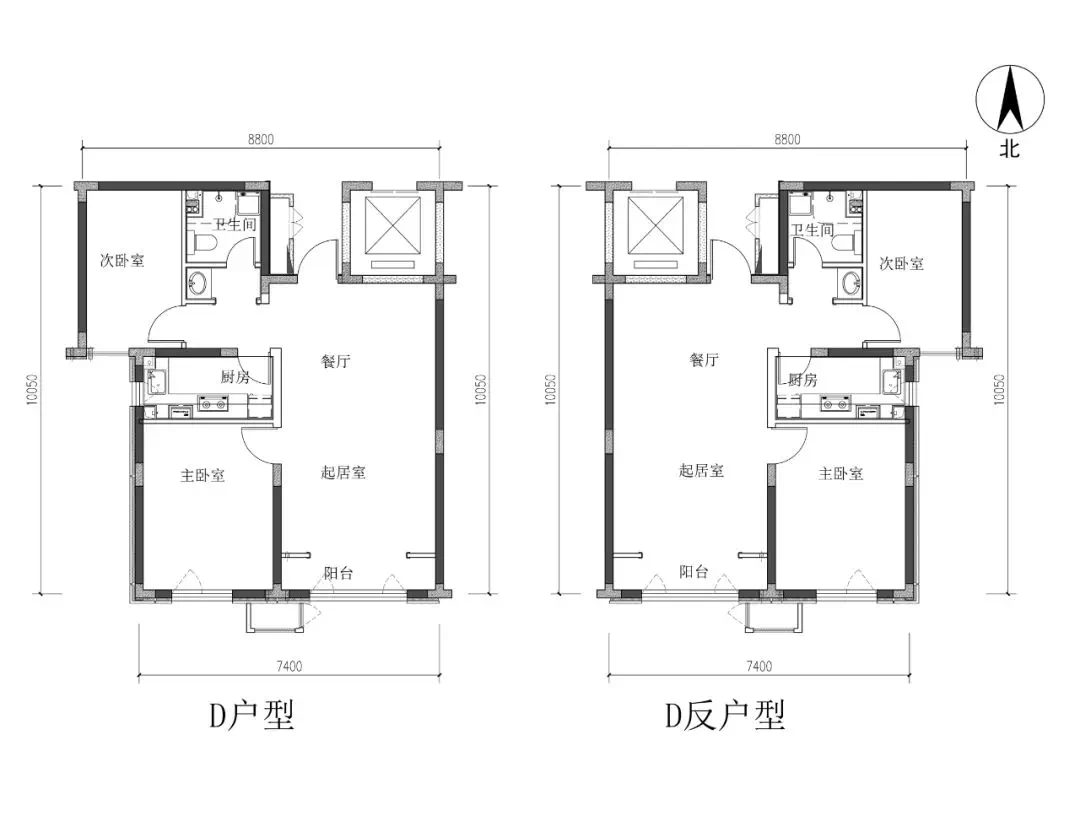
具体户型:其中二居室292套,建筑面积约87-89平方米;三居室68套,建筑面积约118-120平方米
单价:销售均价30000元/平方米(根据房屋楼层、朝向、位置等因素在±5%的范围内调整销售价格)
交房标准:全装修交房
购房人产权占比:70%

项目交通路网:
1、交通干道:京开高速公路、南六环路、新机场高速、黄良路。
2、公共交通:地铁四号线、京雄城际、新机场快轨、规划地铁21号线、兴23路;兴24路;兴27路;兴28路;兴30路;兴54路;827路;829路;840路;842路;兴21路;兴52路;兴68路等十多条公交线路。
(微信搜索“pinfang6666”添加拼房帝小助理微信,或者关注“拼房帝”公众号,可解决所有共有产权房问题噢~)
周边配套:
1、商业:龙湖时代天街商场、天宫院凯德MALL、物美超市、物美大卖场、星城商厦等。
2、教育:新星双语艺术幼儿园、北京世纪之星幼儿园、大兴区第四小学和大兴区排名前列中学等。
3、医疗:首都医科大学附属医院、中国中医科学院广安门医院(南区)、北京市仁和医院。
4、银行:建行大兴支行、农行大兴支行、中行大兴支行、工行大兴支行等。
5、娱乐:念坛公园。
二、房源安排和销售对象
本次房源安排计划面向在大兴区稳定工作的非本市户籍无房家庭原则不少于30%,具体房源数量将结合大兴区功能定位和发展方向、项目申购登记家庭数量等因素综合确定,并在摇号公告中予以公示。
销售对象分两类,排名前列类为大兴区户籍无房家庭和在大兴区工作的本市其他区户籍无房家庭;第二类为在大兴区稳定工作的非本市户籍无房家庭,分为优先组和普通组,即:
优先组:申请人为"新创工程"领军人才,在大兴区重点企业、国家高新技术企业、新媒体产业园、生物医药基地产业园、京南大学联盟和大兴国际机场驻场单位的从业人员。上述各单位中申请人除大兴国际机场驻场单位从业人员外,均需具有本科及以上学历。
申请人所在企业需具有独立法人资格,且在大兴区进行工商注册、纳税并入统。该企业不在拟腾退产业之内。
普通组:其他在大兴区工作的非本市户籍无房家庭。
三、申购条件
(一)申购家庭应符合以下条件:
1.申请人应具有完全民事行为能力,申请家庭成员包括夫妻双方及未成年子女。单身家庭申请购买的,申请人应当年满30周岁(截至2019年8月8日)。
2.申请家庭应符合本市住房限购条件且家庭成员在本市均无住房。一个家庭只能购买一套共有产权住房。
(二)申购家庭符合上述条件,但有以下情形之一的,不得申请购买共有产权住房:
1.申请家庭已签订住房购买合同或征收(拆迁)安置房补偿协议的。
2.申请家庭在本市有住房转出记录的。
3.有住房家庭夫妻离异后单独提出申请,申请时点距离婚年限不满三年的。
4.申请家庭有违法建设行为,申请时未将违法建筑物、构筑物或设施等拆除的。
(三)申请家庭承租公共租赁住房、公有住房(含直管和自管公房等)后又购买共有产权住房的,应在购房合同网签前书面承诺腾退所租住房屋。
(四)在大兴区工作是指开通网上申请当月 (2019年7月), 申请人在北京市个人社保权益记录中所载明的缴费区为大兴区(不包含北京经济技术开发区)。
本项目支持公积金贷款、商业贷款、组合贷款。
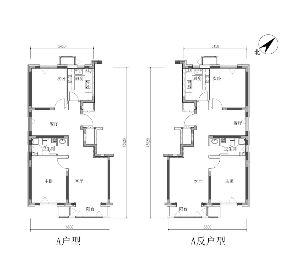
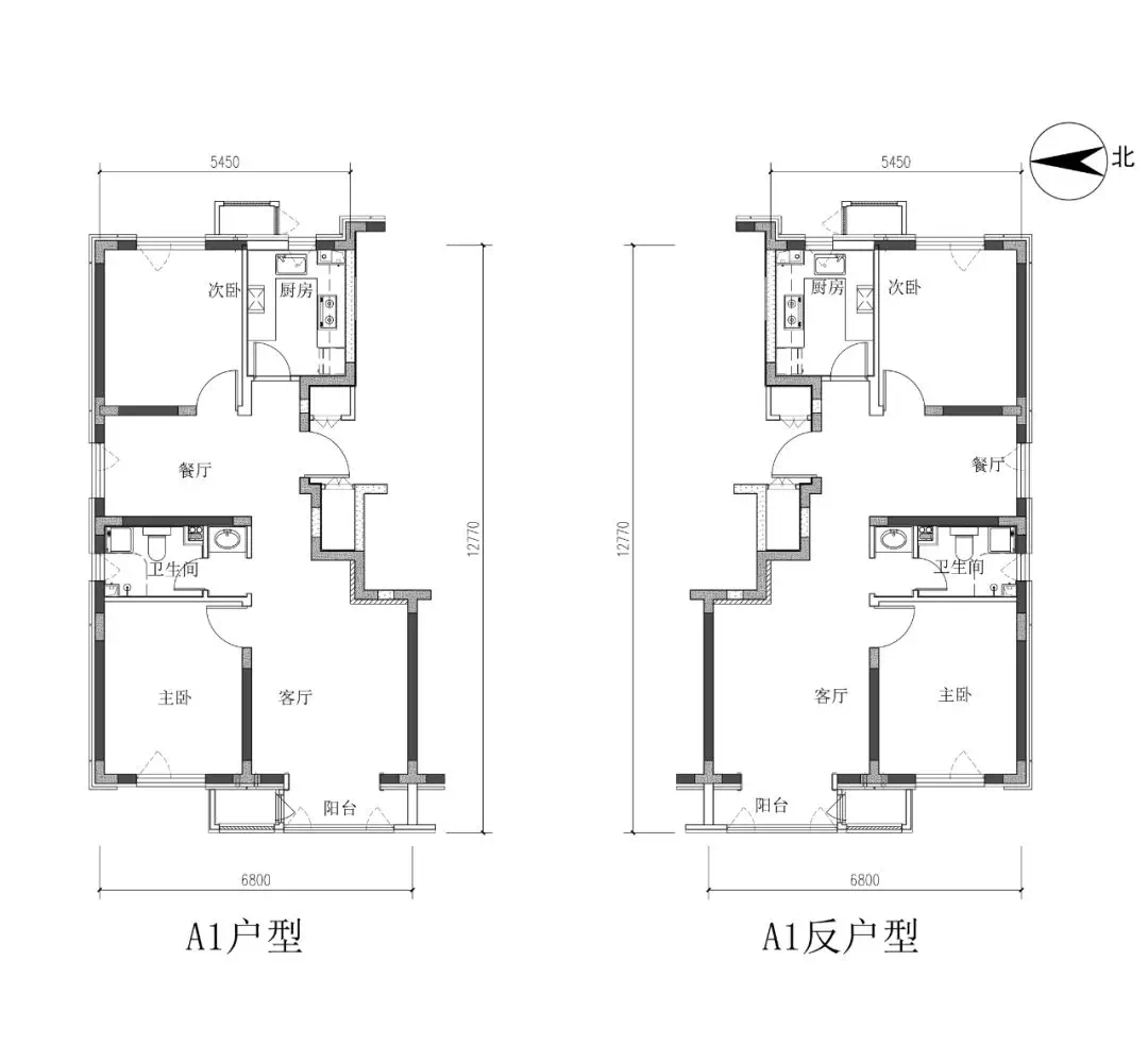
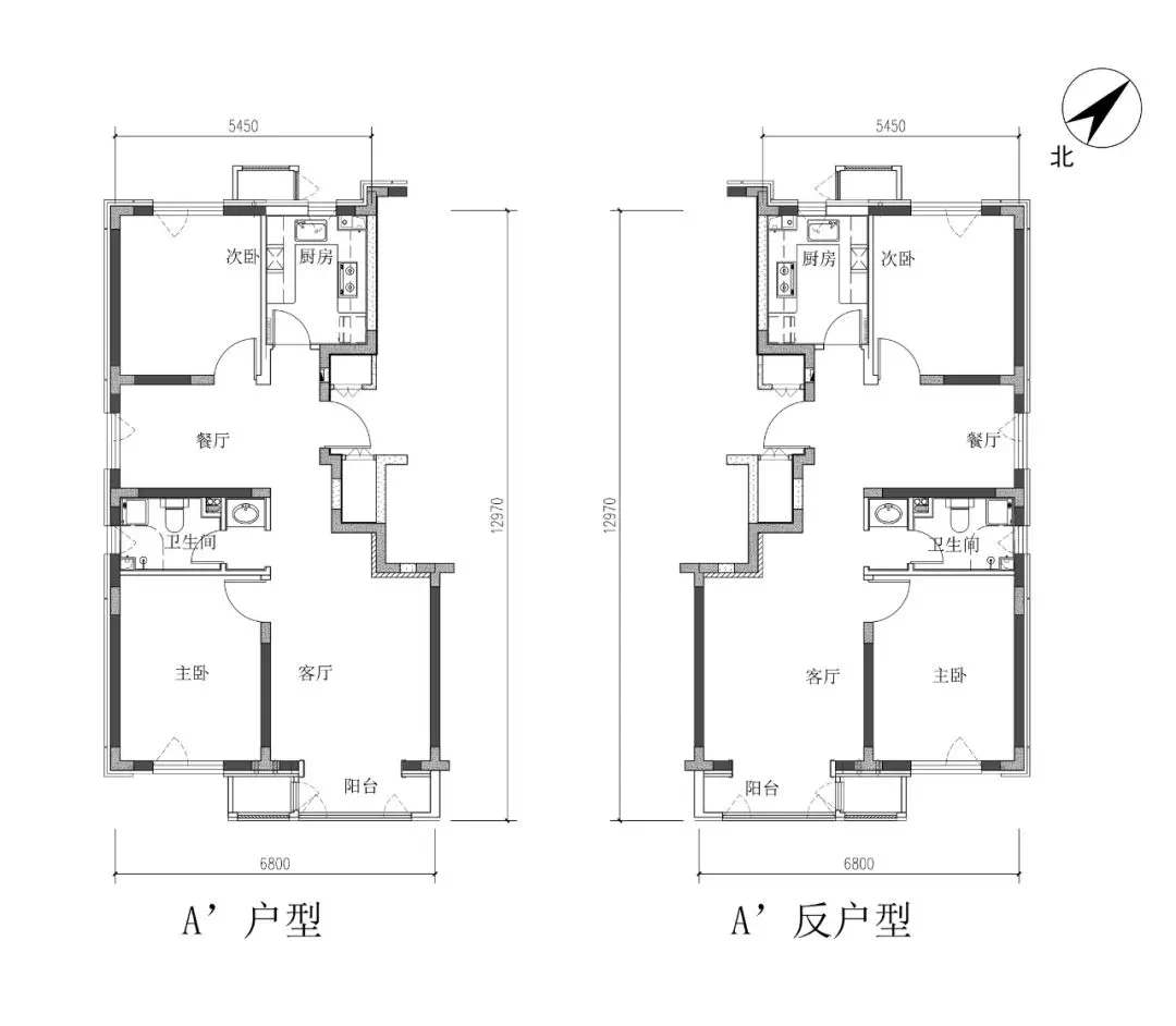
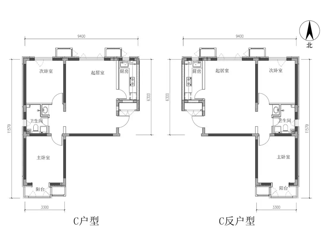
项目总共有360套房源,其中二居室292套,建筑面积约87-89平方米;三居室68套,建筑面积约118-120平方米。户型图如下:






声明:本文由入驻焦点开放平台的作者撰写,除焦点官方账号外,观点仅代表作者本人,不代表焦点立场。







