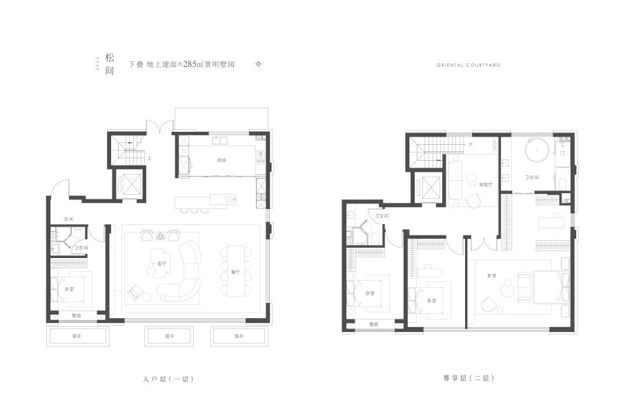
下叠户型-4室2厅3卫-285.0㎡
在售 南北通透 客厅朝南
余房查询
咨询户型优惠
2537万元/套
(供参考)
4室2厅3卫
285.0平米
暂无
暂无
暂无
暂无
400-616-2877 转 438755
微信扫码,快速拨打
近期如有看房活动,请通知我
已有20人报名
立即报名







0
综合评分
自动计算评分结果