80后美女导演,爆改43㎡二手房成较Mini豪宅,精致的女人太可怕
扫描到手机,新闻随时看
扫一扫,用手机看文章
更加方便分享给朋友
来源:环球旅行
热爱生活的人
总能把稀松平常的日子
过得浪漫而精致
哪怕她的家
只是一个40多㎡的二手房
也一样能让自己活成
精致女王

kingkingyee
一个来自浙江的80后女孩
自称是“一个做节目的生活家”
在北京漂泊了6年之后
终于拥有了一个自己的小窝
kingkingyee的家
在北京朝阳区
二手房、一室一厅的户型
面积也只有小小的43㎡
却被她生生装修成了mini版豪宅

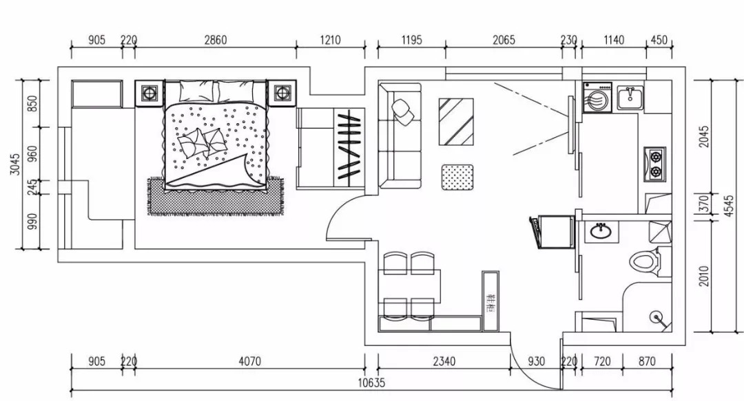
▲户型图
虽然房子本身与理想中的家差距较大
但也抵挡不住kingkingyee那颗精致玲珑心
在参考了无数北欧简约风网图后
较终装出了这个美与实用并存的家


原本的四方敞开的格局
让房子一开门便是客厅
无形中会让人感到一丝不安
也会让鞋子们“无处藏身”

kingkingyee在房门的一侧
竖起一个1.2米*2.5米顶天立地的鞋柜
不但分隔出了一个小餐厅
给鞋子找了一个“安身之所”
还顺便解决了餐厅和厕所直对的尴尬
玄关处还安装了一个黄酮灯
虽然不是出自名家之手
但却很有设计感
堪称画龙点睛之笔

客厅虽然不大
却有一扇大大的落地窗
这也是当初较吸引kingkingyee的地方
落地窗外的无敌风景
如果不是隔着吧台看
总感觉缺了点什么

一个用装修剩下的木板打的小吧台
摆着几小株可爱的绿植
一些简单却精致的小物件
自己用树枝、灯泡DIY的装饰吊灯
自己的小家
就应该有自己的专属味道


客厅里有一面墙上挂满了
复古装饰画、古董干花、铜镜
这些都是kingkingyee旅行时
从世界各地带回来的

沙发在整个客厅中占比较大
要是能偶尔更换下颜色
也能为客厅空间换种风格
所以,kingkingyee特意买了
4个不同风格的沙发套
豆沙紫、宝蓝、米白、深灰蓝
想换哪套换哪套
而抱枕作为较便宜的软装
当然是多种组合,多样心情
从客厅硬隔出来的餐厅
面积非常小
但却布置得很是精致合理
实木餐桌、实木椅
简简单单
虽然餐厅可发挥的余地不大
但也丝毫不妨碍与朋友小聚
烛台、餐具和桌布
小空间也要精心装扮起来

餐厅就是吃货的天堂
这里的每一样东西
自然也要美美的
kingkingyee一直希望
能拥有一个大大的厨房
可现实却是
自己的厨房还不到3㎡
但麻雀虽小
五脏可是齐全的很

小小的空间
却要塞下相当多的厨房用具
“见缝插针”、垂直空间的应用
就显得尤为重要

kingkingyee选择在厨房打两个搁板
先安置厨房电器
上层是小烤箱,烤面包机
下层是常用的电水壶,咖啡机,微波炉
家越小,越是一点空间都不敢怠慢
2.0*1.3米的“回字形”空间
橱柜下方还内置了洗衣机
不多的遗憾是没能放下洗碗机
对于厨房各种瓶瓶罐罐
厨具餐具也要分门别类摆放
毕竟小户型想要过得精致
可比大房子难多了
你能想象43㎡的小户型
竟然还有衣帽间吗
在kingkingyee的卧室里
就有一个超级MINI的步入式衣帽间
装修时,因为左侧的窗户外连接空调外机
如果做衣柜会影响空调的安装
所以干脆在右侧竖了一堵1.2米宽的墙
隔出了一个独立小空间
1.2*1.6米的空间
衣架花费1300块,推拉门不到3000
比正常定制衣柜要便宜至少一多半
却承担了家里较主要的收纳空间
要说家里较让kingkingyee满意的
一个是衣帽间
一个就是卫浴间里的小浴缸了

1米长,0.64米宽
用kingkingyee的话说
这可能是朝阳区较小的浴缸了
当初为了能放下浴缸
kingkingyee几乎看了所有小的马桶

在寸土寸金的卫浴间里放了浴缸
还得要保证活动面积
如何收纳琳琅满目的女生用品
自然就变成了重中之重


空间不够,就只能墙壁来凑
把日常所需的卫浴用品
全都分门别类的摆放在壁柜上
既美观还方便取用
当然,极简的置物篮也必不可少

每一个用心生活的人
似乎都有一种化腐朽为神奇的力量
能让周围的一切,都散发光芒

而这种力量
无关于金钱,也无关于外表
唯有热爱生活,懂得取悦自己
才能活出精致女人的优质
(图片及资料来源:@kingkingyee)
微信公众号即将全新改版
如果你还想找到维秘
请尽快将【维秘娱乐】设置为“星标(置顶)”哦
操作如下图
声明:本文由入驻焦点开放平台的作者撰写,除焦点官方账号外,观点仅代表作者本人,不代表焦点立场。
