北京润府获证认筹启动,均价约65000元/㎡一房一价出炉
扫描到手机,新闻随时看
扫一扫,用手机看文章
更加方便分享给朋友
售楼热线:4001560036 转 450321
今年2月1日华润以75.38亿竞得亦庄新城 0503 街区 YZ00-0503-B19R1、B19A1、B19A2、B25B1地块建筑规模:约33.21万平方米,其中住宅17.48万㎡,商业约15万㎡销售指导价:期房6.5万元/㎡、现房6.7万元/㎡、±8%,3月9日即定名北京润府,随即在4月初开放售楼处及样板间,4月3日北京润府8#、10#、11#、14#、15#、17#、20#、21#已取得销售许可证,同步启动认筹,均价约65000元/㎡。住宅产品建面区间约99-177㎡。
从拿地到开盘不足3个月,可谓神速!
【项目基本信息】
开发公司:〈华润置地〉是中国最具有实力的综合型地产开发商之一
项目位置:亦庄新城距地铁17号线北神树站北侧200米
建设用地面积:147727㎡(221.59亩)
规划建筑面积:332097.21㎡
容积率:2.5
绿化率:30%
总户数:18栋,预计1400户
停车位:1:1.2
物业类别:高品质住宅
装修状况:精装修
产权年限:70年住宅

项目规划建设18栋楼,建筑高度为10-18层的小高层/洋房;户型区间为建面约99-177㎡的三、四居室。

【周边配套】
商业:自身配建建设有万象汇大型商业,周边还有正德生活超市、山姆沃尔玛、李宁中心、大族广场、亦庄龙湖天街。
教育:住宅内配建托儿所,西北侧是一个教育用地的规划,周边还有北京小学经开学校(规划中)和北京八中分校(规划中)。
医院:同仁医院亦庄分院、通州区第三医院、爱育华妇幼保健院
【户型】
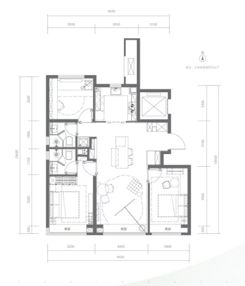
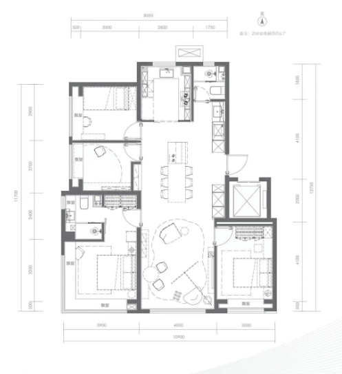
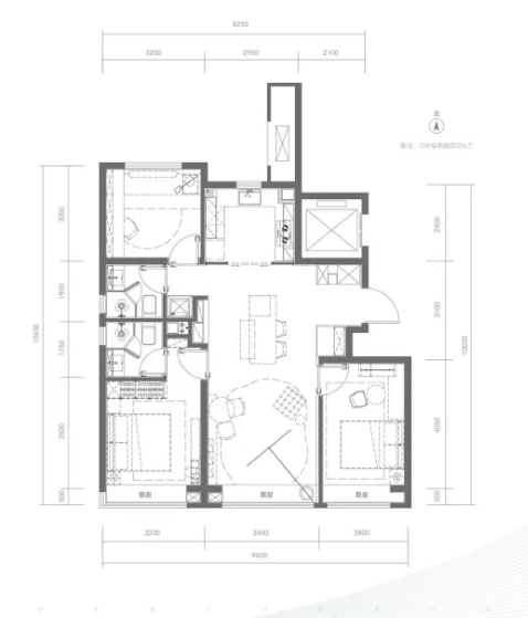
建面约99平三居,客餐厨一体,餐客厅总采光面约5.9米,还赠几乎等宽飘窗。入口处设置有储物空间。卧室南向2间,北向1间。全屋南北通透+全明户型。

建面约109平三居,王道三面宽格局,这款只要在看房的同学,应该都很眼熟了,全明户型,南向赠送三飘窗。玄关两侧预留了充足的储物空间。不再多叙。

建面约133平四居,这款在其他区已经杀疯了,在亦庄还是新面孔。三面宽格局,客厅面宽约4米,而且是落地窗。主卧270°转角窗更是保足了阳光与视野。

【一房一价表】
8# 户型175㎡ 176㎡得房率83.58%10层2单元 1梯2户 40套

10#户型 98㎡、108 ㎡得房率74.63% 18层 3单元 2梯2 户108套

11#户型 157㎡ 得房率79.00% 17层 2单元 2梯2户 68套

14#户型157㎡ 得房率79.01% 14层 2单元 2梯2户 52套

15#户型 98㎡、108㎡ 得房率74.63% 18层3单元2梯2 户108套

17#户型129㎡ 、132㎡ 得房率79.17% 18层2单元 2梯2户 72套

20#户型129㎡、133㎡ 得房率79.05% 14层3单元 2梯2户 84套

21#户型98㎡、109㎡得房率74.71% 18层3单元2梯2户108套

声明:本文由入驻焦点开放平台的作者撰写,除焦点官方账号外,观点仅代表作者本人,不代表焦点立场。







