我家150平二居室,现代装修风格,美翻了!-首创新北京半岛多维时光装修
扫描到手机,新闻随时看
扫一扫,用手机看文章
更加方便分享给朋友

阅读本文前,请您先点击上面的蓝色字体“论装修”,再点击“关注”,这样您就可以继续免费收到较新文章了。每天都有分享。完全是免费订阅,请放心关注。
装修是大家比较头疼的事情,花的钱多而且还费时费力!好不容易买了一个150平米二居室,到了装修时又头疼了,不知道选哪种装修方式。小编正在想怎么装修的时候,恰好闺蜜也在首创新北京半岛多维时光跟我同小区买了房子,只用了10万装修费用,而且还是我们较喜欢的现代风格,真是太好看了,我赶紧向我闺蜜去取经!
装修公司:北京京宏鑫盛装饰有限公司预算:10万风格:现代案例套数:4更多
现代风中夹含着一些中式元素,本房业主是个热爱画山画水的文人雅士,所以要求房子中稍带一些中式元素,于是我们便用一些山水画,水墨画的图案来做为方案中的中式元素之一。
客厅是家中的中心区域,平时主要用来接待客人、放松、娱乐、进餐等。因此往往被主人列为重中之重,精心设计、精选材料,以充分体现主人的品位和意境。客厅装修的原则是既要实用,也要美观。

4米多挑高空间,主卧一面玻璃隔断,楼上楼下一目了然,满足了视觉效果,也使房屋更宽敞明亮。
卧室的设计首要特点是温馨,宁静。一个静谧的空间才可以给我们休息的保障,卧室本就是一个私密的地方,所以一定要考虑它的“静”。

次卧是以蓝色调为主,采用榻榻米床,衣柜有山水画图案,地毯也是带有山水画文理。

主卧墙漆采用了两种颜色,一种淡紫色,另一种卡其色,再配上了一些原木色的家居和地板,整个空间更是舒适无比的较佳休息区。
因为卫生间地面经常走动、清洁,所以磨损程度也会很大,所以地面还是建议铺地砖,方便又耐用。一般经济实惠的方法就是刷环氧树脂漆,颜色多样,只要墙面的砼基面做得平整无花,刷出来效果就会很好,施工也很简单。

卫生间墙地砖选用爵士白大理石文理,原木色的浴室柜夹杂在白色空间里,使得一个干净洁白的卫生间更显得舒适。
以下就是本套首创新北京半岛多维时光小区150平米二居室房子的户型图。

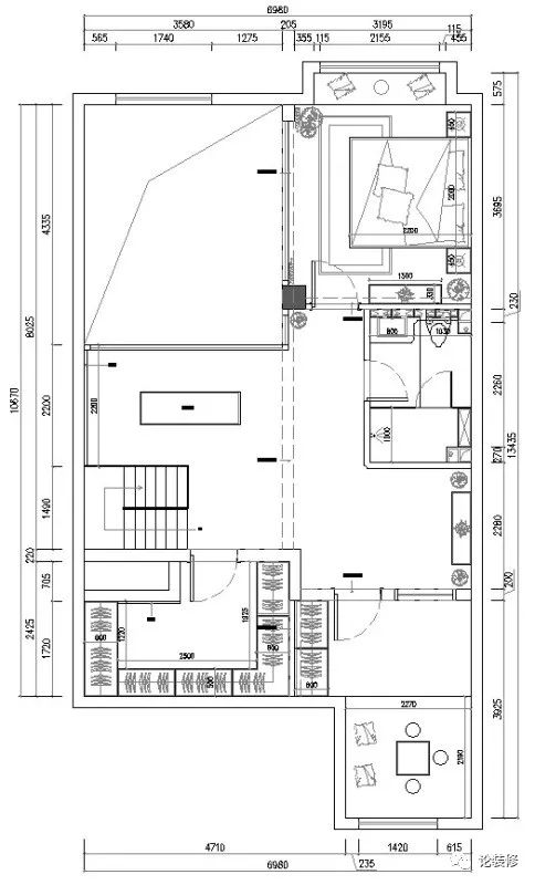
二层平面布置图,二层在楼梯口处设置了空中瑜伽,因为这个业主有个做瑜伽的兴趣爱好。

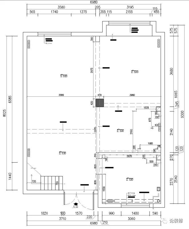
一层原始户型图,一层的房屋结构还是比较合理的。

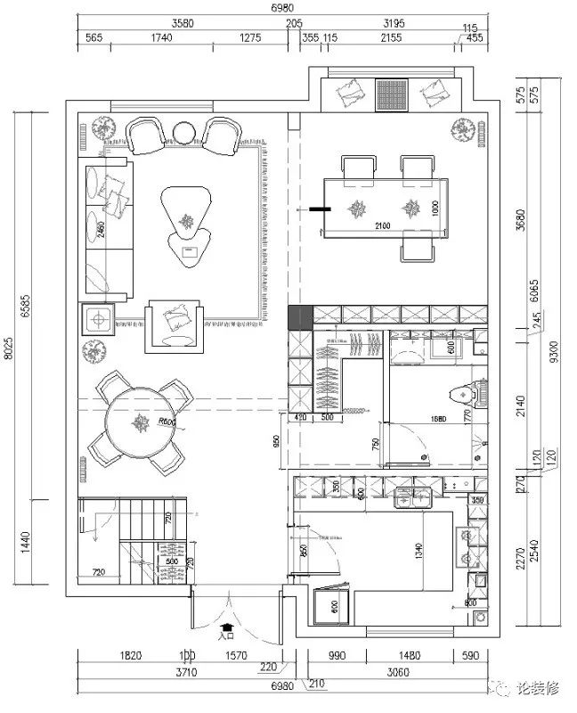
一层平面布置图,一层大厅部分我们划分为三个区域,客厅,画室,餐厅。

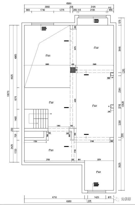
二层原始户型图,在功能区域划分上,二层该是一个安静舒适的地方。
以上首创新北京半岛多维时光小区150平米的现代设计案例是你喜欢的吗?一般来说,150平米的房子适合装修成二居室,现代风格会高端大气一点,喜欢的朋友可以借鉴本案例的设计风格。另外,提醒大家要合理规划功能区,较大限度的扩大房屋的使用面积,满足家人的生活习惯。
免责声明:本文来源于网络,如有侵权请联系作者删除。
您可能喜欢:
较新飘窗设计推荐 飘窗怎么设计好看
70平米北欧风格好不好?装修价格只花了6万!-大源欢乐颂装修
北欧风格装修效果图欣赏,90平怎么装修出浪漫优雅风
声明:本文由入驻焦点开放平台的作者撰写,除焦点官方账号外,观点仅代表作者本人,不代表焦点立场。
