楼市上新!一波新房即将入市!还有77平两居小户型可选
扫描到手机,新闻随时看
扫一扫,用手机看文章
更加方便分享给朋友
据相关数据统计,7月,北京新建商品住宅成交3089套,同比、环比分别下降18.8%和3%,成交量达到今年以来月度次高位水平。
时间来到8月,有不少项目即将开盘入市, 给购房者提供新的选择,今天就来盘点一下。

本周六(8月17日),预计将有2个项目开盘,分别是顺义的住总·芳华里和昌平的住总·清樾府。
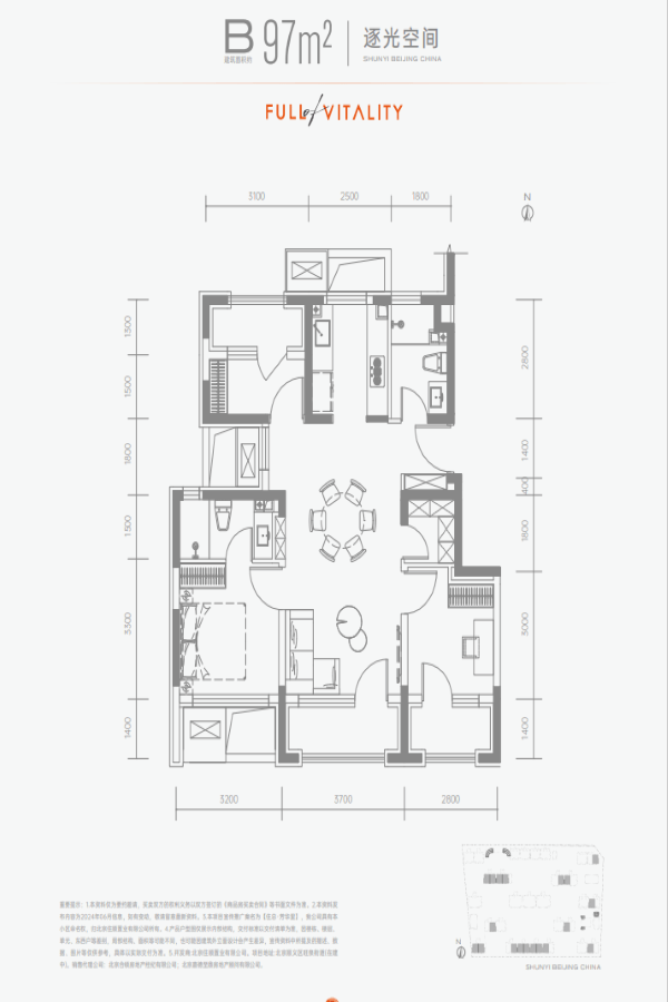
住总芳华里项目处于顺义城核心区域,距离地铁15号线石门站约1200米,出行还是比较方便的。小区规划6-11层的洋房+小高层,户型有88-132平2-4居,已取得预售证,产品很有亮点:

解析:97平三居,南北通透+全明+三面宽设计,南向面宽约9.7米,客厅次卧各带一个阳台,主卧套房设计,形成一个独立空间;再来看中间部分,餐客厨一体,南北窗户正对着,通风性很好;餐厅两边有收纳空间和家政间。整体的使用率很高。
再来看看住总·清樾府,项目位于昌平沙河高教园板块。容积率1.25,规划4层洋房产品,居住舒适度还是比较高的,户型为86-143平三居四居,户型梯度比较大。
最后看看同样位于昌平的龙湖·观萃,是北京第一个“带方案入市”的“好房子‘试点项目,也是昌平第一个带阳台的项目,所以项目关注度比较高,开盘时间预计为8月底或者9月初,具体时间以开发商公示为准。
项目位于昌平中关村生命科学园(定泗路北约100米),南侧2公里超极合生汇已开业,是北部片区超大的商业中心,吃喝玩乐一站式服务,商业氛围非常浓厚,满足日常生活需求。
小区规划7栋6-11层洋房及8栋17-18层高层产品,户型有77-129平2-4居,户型种类很多,选择丰富。
总结
8月开盘项目主要集中在顺义和昌平,表格中的指导价仅供参考,根据目前的市场情况,首期开盘价格一般会有不同程度的优惠(具体以开发商公示为准),近期有置业打算的朋友可以去实地看一看。
声明:本文由入驻焦点开放平台的作者撰写,除焦点官方账号外,观点仅代表作者本人,不代表焦点立场。







