首付78万起,东五环申购!北四环共产房户型图曝光!
扫描到手机,新闻随时看
扫一扫,用手机看文章
更加方便分享给朋友


哈喽大家好!我是血拼哥。
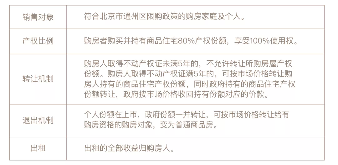
帝都仅有的6个纯商品共有产权房项目(2个海淀,3个朝阳、1个通州)陆续入市。(不理解啥是纯商品共有产权房的朋友戳这里)
海淀一如既往的火爆,北五环边均价8.96万/㎡,个人产权80%的树村学府壹号开盘几乎一夜清盘,之后余音未落,10月刚刚供应的海淀北四环,另一宗纯商品共有产权房,海淀京昌路楔形地块户型图就流出了!户型可能还会有所修改,并非最终版本,考虑开发商此举意在投石问路。
哥们看了下,嗯,依旧是咱刚需吃瓜的户型:
北四环外9折共产,
首付500万起步

项目体量并不大,预计15-19层的高层点式布阵,东西地块分别有8栋、7栋楼,房源数总计约720户。

最小户型125平,西侧三居两卫全明户型,南北通透,南向三面宽,厨餐客一体,空间利用率高,动静分区较好。一梯两户,得房率77.82%。

还有150平米四居户型,南向三面宽,不过通透性可能没有125平的好,东侧就中规中矩,主卧多出一个衣帽间。西侧边户做了270度采光的转角大边厅,很亮眼,不过也牺牲了一个朝南的次卧。

180平四居,两厅三卫。西户同样做了270度采光大边厅,面宽4.5米餐客一体,空间感很亮眼,东侧次卧应该可以打通,能拥有一个超豪华客厅,主卧带主卫、衣帽间,设计方正也非常赞,不过北向两个次卧和厨房的安排整体看上去虽然功能区安排没问题,但是布局有点破坏空间的整齐感。东户南向三面宽,餐客一体,6.3平大面宽采光舒适,空间感很不错。整体看,项目东侧没有窗户,考虑因为东侧有北京舰船科技交流中心,所以喜欢大边厅的土豪选房时可以多考虑西侧。项目单价虽然打了折,但是配上大户型,按90%的个人产权算,单价为10.08万/平米,125平米户型起步总价约为1260万,首付差不多500万起步…… 不过不要灰心! 项目还有两栋保障性租赁住房!要说海淀京昌路楔形地块位置真的太好了。位于北四环外成熟地段,向南700米就是15号线北沙滩站,东侧就是奥森板块,西侧是学院路、五道口片区,均价在9-10万/平左右。这边通勤也很方便,西北后厂村、向南中关村、向东望京、金融街等,北边商圈基本全在内,客群简直不要太多,哥们已经能想象到申购选房时候的盛况了。

宗地大致位置
虽然咱抢不着,不过大家也别灰心,两宗地中间位置还分别安排了一栋保障性租赁住房,面积有40平、50平一居和60平两居,麻雀虽小五脏俱全,具体怎么租赁,还需要等政策公布,届时有消息哥们排名前列时间跟大家同步。
说完了热门的,
咱们再看看买得起的!
通州,8折纯商品共有产权房国誉未来悦申购登记正在进行!预计9号开始摇号。
项目较大的优势就是位置在通州老城区,配套现成不用等。且距离地铁不远。
项目基础信息

项目1.5公里周边二手房、医院、商业配套情况
位置:北京市通州区梨园镇,东至九棵树西路、南至翠屏西路、西至西小马住宅小区、北至翠屏南里小区
销售均价:56000元/㎡(含装配式全装修费用)
个人产权比:80%
房源数:10栋8-15层全装修板楼,共计641套房源
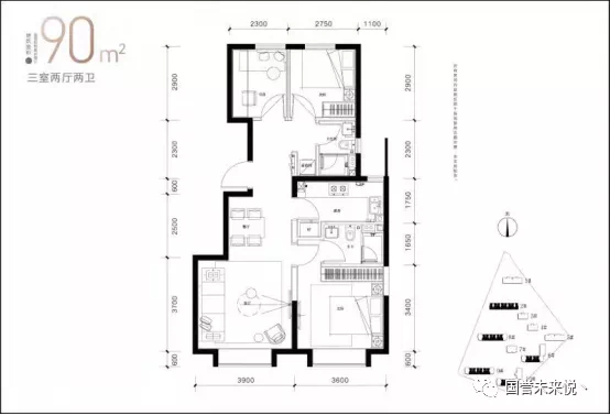
户型: 40-140m²,主力户型面积约为91m²三居室和约118m²四居室

总平面图
户型
项目8折以后,5.6/平的均价,对比周边5-6万/平左右的二手房,相当有竞争力了,最重要项目还有小户型!
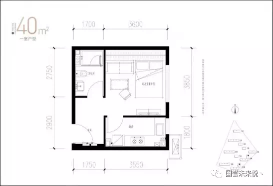
最小40平是个开间,预计总价224万,首付78万起。小户型低总价,但是单价没啥优势,而且数量很少,如果预算充足,考虑北京置换难的问题,还是要买起码一居或两居啊。

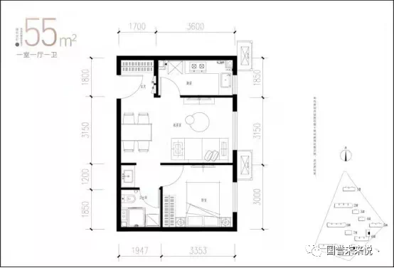
55平 一居,麻雀虽小五脏俱全。户型方正,功能区设计合理。总价308万左右,首付较低35%,108万起。

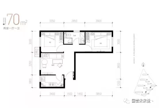
70平两居,户型我不喜欢,通透性不好,不过好在全明。销售顾问估算总价374万左右,首付据说也能做到35%起,也就是131万起。

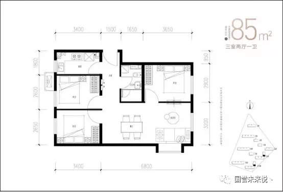
剩下85平都做成了三居,真的刚啊。


不过有一点需要注意,开发商在现场竞价时触顶,随之地块转入了竞高标准商品住宅建设方案投报程序,这就意味着,超低能耗+装配式+绿建三星几乎成为这个项目的标配。

在三星级的标准之下,为了达到更好的保温、隔热及隔音效果,不可避免的会带来墙体厚度的增加、窗地比减小以及容积率的提升。
这样一来,得房率就有可能“受伤”,所以提醒大家买房一定亲自去现场看,问清楚公摊面积,实用面积情况。
最后给大家贴几张样板间实景图:


客厅

入户餐厅
118平样板间:
,时长01:34
最后看看怎么购买吧。
购房须知

销售方式
本次所有取证住宅房源,不分产品形态,采取一次性公证摇号确定选房顺序。
购房流程
1、意向购房人登记:项目取得预售许可证后,购买意向购房人可至项目接待中心办理摇号登记手续,登记时间为2021年11月2日9:00-2021年11月6日18:00;
2、意向购房人公示:登记期满,符合参与摇号资格的意向购房人名单于2021年11月7日-2021年11月9日在北京国誉未来悦官方公示,意向购房人对入围名单存在异议的,可向我司提出复核,在此公示期内进行答复;
3、公证部门摇号:2021年11月10日,委托北京市长安公证处主持随机摇出选房顺序号;
4、摇号结果公示:摇号结果于2021年11月10日公示;
声明:本文由入驻焦点开放平台的作者撰写,除焦点官方账号外,观点仅代表作者本人,不代表焦点立场。







