享三站地铁环绕 四环小营路5号或将开售
扫描到手机,新闻随时看
扫一扫,用手机看文章
更加方便分享给朋友
在老北京人的认识里,关于居住区域,一直有“东富西贵“的说法,在如今的大北京区域,西边是石景山,东边可就是朝阳了。
不少购房人在挑选房源时,也对地理位置颇为看重,喜欢住的靠里,又不想太过于拥挤,因此,很多人把朝阳区四环到五环之间的区域,作为了置业优选区域。(咨询购房专家买房问题请添加小助理微信号:goufang02 有问必答。)
面对这部分朋友的需求,焦点君今天就给大伙儿介绍仨盘,感兴趣的不妨看一看!
项目一:小营路5号
小营路五号位于北四环外亚奥板块,项目地理位置非常优越,周边交通方便是给人较大的印象,包括5号线惠新西街北口站、15号线关庄站、以及两条线路的换乘站大屯路东站,到本项目的直线距离都不超过1公里。

在配套方面,项目附近商业有华堂商场、道尔泰生活广场、远洋未来广场购物中心等,项目周边学校有北京陈经纶中学嘉铭分校东校区、北京朝阳区芳草地国际学校世纪小学、北京朝阳区芳草地国际学校万和城校区等,此外,项目周边还集结了中日友好医院、北京安贞医院等著名院区,整体配套颇为丰富。(咨询购房专家买房问题请添加小助理微信号:goufang02 有问必答。)
回归项目本身,项目户型多样,分别是109-121㎡的两居、139-150㎡的三居、194㎡的四居,均为带装修交付。给大家推荐项目B户型,感兴趣的可以看一看。

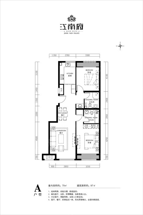
项目二:江南府
江南府位于朝阳区红坊路6号,属于纯商品房,具体价格要以住建委批示为准,目前待定,预计项目剩余房源将在今年入市!
另外,该楼盘的1-3#已于2018年12月31日交房,9#、11#、12#、13#还有房源,预计会推出84-161㎡二至三居,由于是是纯商品房,并且带装修交付,所以焦点君预测该楼盘价格并不会太低,均价大概会在7万5-8万5之间。(咨询购房专家买房问题请添加小助理微信号:goufang02 有问必答。)
给大家推荐该项目97㎡的三居,该户型设计与目前限竞房的主流户型非常类似(北侧次卧书房、南侧客厅主卧),但作为纯商品房,此户型更加在意居住的舒适度,主卧做了套件设计,客厅面宽也达到了3.75米,整体还算不错的。
项目三:丽都悦府
丽都悦府位于朝阳区将台西路10号,紧挨着四得公园,14号线将台站在项目东侧约800米位置处。
项目属于纯商品房,目前未开盘价格待定,单价预计8万~12万/㎡,项目预计会推出160-220㎡的大平层和260-290㎡、340-360㎡的复式。
关于配套,项目在交通上自驾上四环很方便,此外,项目所处的丽都板块为涉外生活圈,商业、医疗、教育配套更是一应俱全,基本不必担心生活方面的问题。(咨询购房专家买房问题请添加小助理微信号:goufang02 有问必答。)
下面为网传215㎡的3室2厅2卫户型的户型图(具体户型还要以售楼处公布信息为准),我们可以看到虽然整体不算南北通透,但在设计上,三面都有窗户,除了有270°的景观感受,通风想必也不会差,中间的卧室A和卧室B更是可以后期打通,整体还算比较不错。

写在较后,在焦点君看来,四环在售待售的新房数量有限,感兴趣的朋友们要多关注,遇到适合自己的该出手时就出手!
延伸阅读:
声明:本文由入驻焦点开放平台的作者撰写,除焦点官方账号外,观点仅代表作者本人,不代表焦点立场。







