金裕雅苑选房在即 22个户型应该如何选
扫描到手机,新闻随时看
扫一扫,用手机看文章
更加方便分享给朋友
临近年底,有动静的共产房还真不少,焦点君统计了一下,目前正在网申的有2个,均位于朝阳;处于资格核验阶段的有3个共产房,选房时间已公布的就有5个项目。要说其中进展快的共产房,石景山的金裕雅苑(备案名:瑞锦苑)特别算一个,12月12日摇号,16号就公布了选房时间,将于12月21日至23日进行集中选房活动,选房地址在石景山区古盛路与古安路交叉口北100米(中海金玺公馆东门对面)。这个项目因其地段优势明显备受刚需一族关注,今天焦点君就来写一篇选房攻略,供有需要的朋友查看。(微信搜索“goufang02“,添加购房置业小秘书入群,房产咨询,有问必答!)
基本信息普及一波
位置:石景山古城南街东侧
周边地铁:1号线古城站
价格:均价40100元/平,全装修交房
产权占比:购房者产权份额比例为75%
交房时间:预计2021年4月底交房
户型:48-89平1-3居
物业情况:物业费3.45元/平方米.月 中海物业

接下来,我们看下户型分布图。从下图中可以看到,金裕雅苑分东、西两区建设,共计13栋楼,887套房源,户型为62-73平两居及八十多平的三居。从户型分布来看,B1主要分布在西区的1号楼、3号楼、6号楼,以及东区的1号楼、3号楼、5号楼、7号楼。另一个主力户型C1则分布在西区的2、4、5号楼,东区的2、4、6号楼,均为南北朝向。
单从楼栋上看,4号楼的位置是非常不错的,处于小区中间,且为南北朝向,不临街,没有噪音干扰,且视野好,居住舒适度较高,如果你想买三居,可作为优选;此外,西区的2号楼、东区的2、6号楼也还行,可以作为次选。如果想买2居,可以看看东区的3号楼和7号楼,远离车库出入口,且临近城市绿地,相对来说较为安静。
说完楼栋,再来说说户型。金裕雅苑的户型非常多,大大小小一共22个,想必准备选房的朋友也会非常纠结,到底该如何选?首先,一定要明白自己的需求,根据手里的预算,看看可以买多大的房子。由于共产房性质的特殊性,焦点君建议尽量买大一点的,功能性更强。(微信搜索“goufang02“,添加购房置业小秘书入群,房产咨询,有问必答!)
一、小三居如何选?
三居一共5个户型,面积从83-89平不等,其中C1户型为主力户型,剩下4个户型套数都比较少。这样来看,优先建议选择C1户型,选择空间大,且户型设计合理。

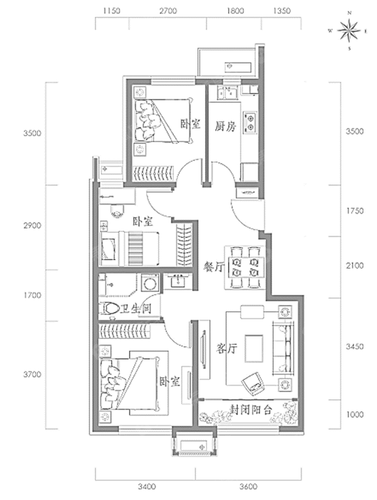
C1点评:这个户型一共414套,主卧及客厅均朝南,客厅面宽3.6米,在共产房里来说,这个面宽已经很不错了,室内采光可以保证,且带封闭阳台,便于晾晒衣服。卫生间挨着主卧,且干湿分离,有独立的洗手台,生活起来很方便。整体来看,这个户型设计的还是比较合理,和市面上常见的限竞房户型类似,值得入手。
二、二居多为东西向 可以买吗?
两居共12个户型,面积为62-72平,以东西向为主,也有少量南向户型。还是那句话,从需求出发,如果你的预算只能买两居,且为纯刚需,那是可以入手的。B1户型为主力户型,一共236套,选择空间还是很大的。当然,如果你不想买东西向的,那B9和B10户型可以看看,不过套数很少。
三、只能买一居 有推荐吗?
如果预算紧张,只能买一居,那可以看看A1户型,或者A3户型。A1户型虽然面积小,但是全明格局,卧室朝南,也还是可以的。按照均价40100元/平算,57平一共总价228万起。A3户型则更为方正一些,浪费面积小,且餐厅紧挨着厨房,更为方便。
总结
写到这,想必大家心里已经有数了。总的来说,就是根据自己的需求进行选择,做好备选方案。金裕雅苑旁边就是限竞房长安云锦,还有4个纯商品房地块,未来古城将会是一个居住氛围浓厚的版块,如果有资格的别轻易弃选。当然,预算能够得上的话,建议直接选择八十多平的小三居,实用性更强。最后,希望本篇文章可以帮助到有需要的朋友,也希望大家能选到心仪的房源。
(微信搜索“goufang02“,添加购房置业小秘书入群,房产咨询,有问必答!)
延伸阅读:
声明:本文由入驻焦点开放平台的作者撰写,除焦点官方账号外,观点仅代表作者本人,不代表焦点立场。







