千万级准豪宅坐落昌平 买不起还看不起吗!
扫描到手机,新闻随时看
扫一扫,用手机看文章
更加方便分享给朋友
今天小编来到了昌平区的三个别墅项目,了解下准豪宅是什么样子的,换句话说:“买不起!还看不起吗!”抛开共有产权房、限竞房和商品房的大众需求项目,关注下别墅项目的体验感。每个人的都有无限种可能的,万一哪天你成功了,买套别墅用于一家人居住。那点开并阅读这篇文章,你不会后悔。那就跟随小编提前感受下有钱人的生活吧。
北科建泰禾丽春湖院子位于北京市昌平区沙河镇于辛庄路8号, 近邻昌平线,距离沙河站地铁约2公里。

咱就说这位置啊,那真是太好了,现在出行方式除了地铁,别的方式基本上靠不住啊,迟不迟到完全看今天堵不堵啊。但从位置来说,这个盘要是住宅的话,那就得疯抢啊,那对于在昌平、海淀、上地等地方的人来说,就是较佳的住所。要是你的话,心动不?回到现实,这个盘是别墅类型的,价格很美丽啊,让大多数人放弃了。
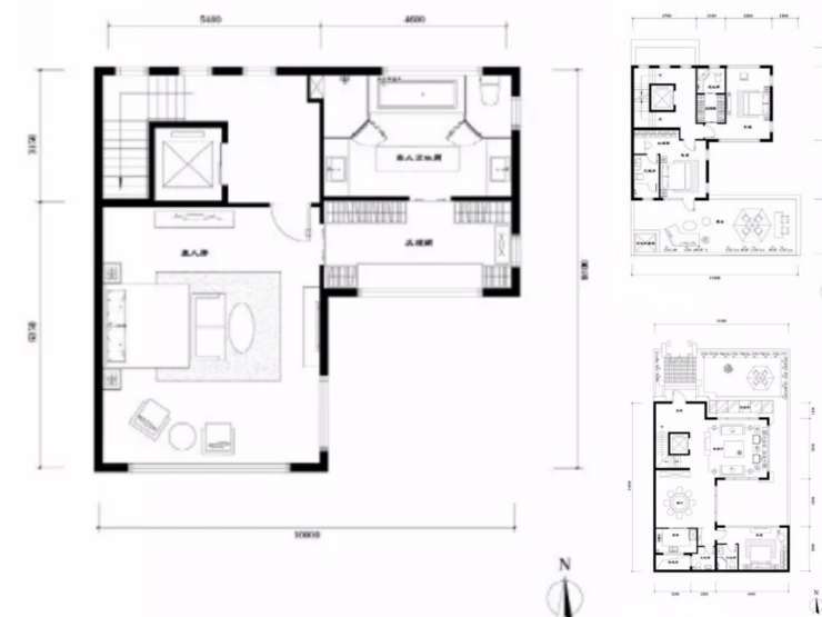
户型图
小编点评下这个户型,这个是该项目的经典的户型图,左一为一层,11.8米的超大面宽,可以让整日的阳光停留在你的客厅当中,超大的前庭院,用来好友团聚之用,面积是足够使用的。楼下一个卧室,可以用来作为招待亲友住宿使用。右上图为二层,我认为可以用来作为孩子的居住的场所,2室满足二胎家庭的使用需求,孩子同住一层,都有自己的独立房间,便于孩子的性格成长。的设计,可以在这地方读书或者学习音乐的不错选择。右下图为第三层,这一层可以作为夫妻的居住之所啊,较上层隐私性好,而且小编告诉你站在三层视野开阔,夫妻两人闲暇时光,品尝着红酒,观赏着外面怡人的景色,是不是向往了,这个户型怎么安排怎么合适。没毛病啊!
该项目在昌平线旁,距离沙河站地铁约2公里,日常出行交通便利。毗邻3500亩丽春湖畔,景色宜人。可谓是风水宝地。至于户型大面积的户型,怎么安排怎么合理,值得购买啊。
京房售证字(2017)7号
项目在售户型440-568㎡的独院产品在售,售价2500万/套起。叠拼物业费5.98元/平·月,大院物业费10.63元/平·月,独院物业费8.68元/平·月。有意向者到售楼处具体咨询。
金科天玺
金科天玺项目无疑是豪气冲天啊! 目前售价2800万元/套起位于昌平北中轴顺沙路68号,网友可能有疑问,“为什么这么贵”,那么小编帮大家介绍下。
小编刚进园区,哇塞!这就是度假村啊!这配套齐全的让人感觉是在那个景区遛弯,专为业主使用的用泳池,各种运动场所。这就是我梦中的居住场所啊,容积率:0.72,低迷好豪华住宅区啊,绿化率:35%,看了这个数值,我还不相信那,感觉一进来都进入植物园了,人车分流的管理,专业的物业服务,让我排名前列次进来的人,有点无所适从啊!保安的服务也太周到了,就差背着我走了!就说这小区一个字评价号“豪”!
京(2017)昌不动产权第0019201号
开发商为北京金科纳帕置业有限公司,项目占地15万平方米,建筑面积15万平方米。一期独栋别墅在售总价2800万/套起,建面342-397平,70年产权现房。
首创禧瑞|河著
其实自古以来中国人就崇尚有天有地的宜居生活,但在如今土地供应少有以及“限墅令”的影响下,更让别墅拥有了巨大的少有价值。加上许多高净值人群更愿意远离城市核心区的喧嚣和拥挤,购买拥有自然景观资源和生态环境的别墅,以及投资因素的影响,促使北京的别墅需求旺盛,因此出现了交易量大增的火热走势。首创禧瑞|河著户型246-358㎡摩登中式联排院墅,总价仅1400万起。
实景图
该项目小区目前售价1400万/套起,园区内外对比差异太大了啊,这个价格和周围小区的价格形成了鲜明的对比。
小编以为该项目的优势
1.少有的双轮驱动下的未来区域发展。所谓双轮即是,即可享受到亦庄经济开发区的政策利好,又紧靠副中心重金打造的两站一街,不出一公里就能享受规划带来的实质配套。在双引擎的带动下,未来发展一片大好;
2.周边的优质教育资源,项目距离海淀知名院校----建华实验学校亦庄分校区仅600米,
3.项目是区域内规划入市体量较大的,无公租无自持,户型88-138全覆盖,适合全家庭周期需求。
4.少有的园林景观,禧瑞天著内部打造互动式园林,在高景观绿化的前提下打造漫步道、篮球场等休闲设施,同时项目外侧三面超30米宽景观坡地,内外双园林成就超高景观绿化,可以说是一个被绿植环绕的生态居住社区,同时项目西侧通惠河支流蜿蜒而过,南行1公里即达湿地公园,这些都是提高生活品质的有力保障
京房售证字(2017)60号
项目为联排别墅在售,总价1400万/套起,面积246平方米-350平米,联排为地上3层,地下1层,70年产权。 项目总建筑面积约200万平米,其中一期总建筑规模近100万平米,项目位于公园城内,区域内云集了度假村、赛马场、高尔夫球场、温泉、采摘园等休闲配套。有意向者到售楼处咨询
这让三个项目价格都在千万级,价格很美丽啊,往我这个普通的上班族望而却步啊,但是人家的物业服务、园林设计、别墅的类型等,也确实不是普通的限竞房、商品房、共有产权房能比的啊。贵自有贵的道理,您说是不!较后跟小编大喊一句:“我也要来一套”。
声明:本文由入驻焦点开放平台的作者撰写,除焦点官方账号外,观点仅代表作者本人,不代表焦点立场。







