北京金茂府 | 一座金茂府,一种城市理想生活
扫描到手机,新闻随时看
扫一扫,用手机看文章
更加方便分享给朋友
科技人居——金茂府
2015年8月31日,经过64轮激烈角逐,中铁建方兴联合体以50.25亿元、竞得丰台石榴庄地块。
2016年11月16日,以“我的理想城市”为主题的中国金茂新品发布会在金茂北京威斯汀大饭店举行,作为金茂“府”系全新升级产品,北京金茂府正式亮相。
北京金茂府是中国金茂携手中铁建,以城市运营战略,整合与导入优质城市资源,继承并超越之前15座“金茂府”的新一代健康住宅。北京金茂府作为中国金茂府系产品的新一代标杆作品,秉持“一平方公里的城市理想”的初心,始终如一,推动理想发生,让城市生活更美好。一平方公里范围内,将7块土地、8种城市功能,整合为步行可达都市街区空间,将墅区、教育、养老、医疗、公园、商业、街坊空间、轨道交通等理想生活必备要素,打造为千步多维都市生态圈,进而形成健康、绿色、可持续发展的城市生活机能体及城市修复、更新的崭新样本。
排名前列以城市命名金茂府
中国金茂旗下住宅共有“府、悦、湖、墅、湾、山”六大产品系,其中金茂府系列是定位与品质较高的产品。在广渠、望京、姑苏、滨江等全国20座金茂府中,独有“北京金茂府”是不多一座以城市命名的府系产品。这也是中国金茂“府城战略”转型后在北京的排名前列落地之作。所谓“一城即一府,不负北京之名”,可见其在中国金茂住宅产品中的重要性。
重叙初心 见证理想
一个时代,一座金茂府。秉持府系产品不断创新、进化的理念,北京金茂府创新打造“府城”级金茂府首作。3年以来,始终以偏执的匠心磨砺优质产品力。从示范区的开放,到首期开盘,再到如今千步多维街区街道焕新完工、部分住宅准现房呈现、城市配套全面开工,街区的建设到达里程碑,理想城市生活指日可待,美好可期。

鸟瞰图
臻藏三环,1号藏品
北京金茂府迎来3年匠心研磨的峰值作品,三环公园墅区1号藏品,其中科技大宅为平墅收官峰藏、惟此一栋,在位置、资源、面宽、采光、观景、动线等多方面升级,传承广渠金茂府经典科技大宅空间设计理念,较经典的金茂府将再一次创新打造时代经典。
12大科技体系
北京金茂府始终以时代前瞻性和超越时代的精神作为引领,从八大科技系统升级至十二大科技系统的迭代和升级,从“温度、湿度、空气、阳光、声音、水”六大基本生命元素出发,以毛细管网系统、地源热泵系统、全置换新风系统等较前沿科技系统护航居室主人的生活体验,在不露声色中,创造较宜人舒适的生活环境,并且个性化到适应每一个人的喜好和习惯,将带给客户更加绿色和健康的生活环境。
家庭住宅 健康社交
北京金茂府在空间打造上,率先洞察都市高净值家庭成员对于“回归家庭”的情感需求,将国际上先进的生活方式和理念引入设计规划中,因此诞生了社交厨房,客餐厨一体化设计、适老适幼空间的打造以及一些可变空间的预留。以期居住在其中的家庭,在每一个生活场景的享受中感悟生活的美好。
全新升级 荣耀入市
北京金茂府对于产品的打造,从不满足于单纯的复制,以让居住更舒适更合理的方向,持续进行产品迭代,让每一个时代语境下,都能成就较好的金茂府。目前即将推出的一号藏品,是北京金茂府较后一栋科技大宅。
从8项维度进行了全面升级,突破科技住宅限制,实现更大的开窗比例,270度全景采光,14.9米超大面宽,符合黄金分割比例的面宽进深比,坚持广渠经典回型动线设计,让家庭动线更加合理方便,创新性的在平层的设计空间里采用墅式分区形式等等,实现更好的居住体验。
同时一号藏品位于“一平方公里城市理想”的核心位置,距离各项城市资源较近,5分钟生活圈,目前宋庄路已铺设完成,各项配套已启动施工,街区全景呈现美好可期。在三环内城,以品质致敬更美的城市理想生活。
区位图
项目信息
名称:北京金茂府
产品:平层/叠拼(上中下)
产权性质:70年
北京方位:南环线,三环至四环
行政区划:丰台区
拿地时间:2015年8月
价格:平层2200万起,别墅3600万起
位置:北京市丰台区,宋家庄地铁站南200米
路线:1、南三环刘家窑桥出,沿榴乡路向南至南顶路向东直行即到。
2、南四环榴乡桥出,向北沿榴乡路向北至南顶路向东直行即到。

楼栋布局
样板间设计
1、叠墅产品设计
北京金茂府叠墅产品延续项目整体风格,运用中式文化元素,配合西式表现手法。建筑顶部采用分色处理,深色挑檐展现建筑张力,下方以浅色分层,强化屋檐的轻盈感。立面中段设计加入近人尺度的横向金属格栅,为其“大开大合”的石材墙面增加细部变化,虚实有致,简约而精致。在窗户及石材墙面之间增加了一个宽为60或30的金属窗套,丰富整体立面的层次关系。建筑入口强调仪式感的同时,与整体风格的协调统一、彼此呼应。
项目叠墅产品实现上、中、下叠均享受独立入户,享有私属小院、私家电梯、独立地下空间,呈现独门独院、双玄关入户的独栋别墅感受。
下叠户型的特点在于6.85米奢阔尺度的挑空地下空间与南北通透的60平米的超豪主卧套房。叠墅产品通过垂直分区手法,打造代际分层、动静分区、功能分区的科学动线和合理空间,针对老人、男女主人、孩子的个性化需求进行功能分层排布,在保证每个家人的独立需求得到满足的同时,亦有全家庭共处交流及互动的空间,营造出别墅特有的生活方式。
为展现空间感,在样板间的中,特色设计有一个热带雨林景观和滑梯。在给予震撼的视觉享受同时,更可以通过夹层分隔设置,实现更加舒适的地下双层空间,打造娱乐区、书房、酒窖、健身室、家政间等百变功能,满足家人对多样功能区的需要。
叠墅样板间









2、平墅产品设计
北京金茂府平墅产品顶部呈一字线条稳重大气,中段通过石材的竖向斜面设计及金属凹槽,丰富建筑的立体感。西侧大面宽的落地窗户和一步阳台所形成的进退关系,让整个立面虚实相间,形成丰富的韵律层次。大开窗面与落地窗、玻璃栏板的组合使用,实现景观价值较大化。
北京金茂府的平墅住宅产品,坚持多元化与灵活性的设计宗旨。以样板间的220平户型为例,室内空间通过交融式设计,开创性地将西厨、餐厅、客厅、端厅相连,实现12米宽的超大尺度四维空间联动,家庭活动的公共区域整体面积达70平米。
家,所承载的一个重要功能就是为家庭成员和亲密朋友间提供交流互动的场所,从而提升家庭成员的幸福感。该设计希望以此提升家庭成员的互动时间,让弥足珍贵的家庭黄金时间得到更自如且宽敞的交流空间。
采光是衡量住宅的“灵魂”标准。该户型充分利用景观资源,客厅西面采光面达12米,南面的采光面4.2米,门窗系统全部落地设计,通过全空气系统智能控制,满足超大景观面与舒适度的优质结合。
由于将传统客厅的位置进行改变,主卧套房拥有南向6.9米面宽资源。书房、主卧室、卫生间都能同时朝南获得较佳采光面。随着家庭结构的变化,书房可以改造卧室、儿童房等其他功能,具有家庭成长性。
平墅样板间











产品赏析



















项目配套
1.交通:“两横、四纵、三环线”,
“两横”:长安街、广渠路
“四纵”:榴乡路、南中轴路、京沪高速、京开高速
“三环线”:二环、三环、四环
“三轨交汇”:地铁10号线、5号线、亦庄线,三条线路交汇于地铁宋家庄站。车行及轨道多维交通网,六大城市主干道纵横交错,三大环线一小时可达,三线地铁交汇,百步内城市便捷路网,高效出行。
2、商业:踞金融街、国贸CBD、亦庄三大国际集群中心,高精尖产品集群分布 加速北京国际化发展进程,6000亿城南行动、新机场产业辐射,南三环将成为新国门,城央价值高地。
3、教育:一站式幼儿园、小学、中学分布于各街区,打造陪护与成长一体化的培育体系,北京金茂府青年领袖计划,搭建与各领袖平台接触学习机会,培养领袖潜能。
4、环境:天坛、龙潭湖、陶然亭,三大城市公园近在咫尺,石榴庄公园一路之隔,快速连接南海子公园,东西轴线新规划建设两大万亩城市森林公园,十字绿色轴线景观核心,宜居宜业。
5、医疗:天坛医院、同仁医院、协和医院、友谊医院、北京医院、东方医院等6、其他:1200㎡高端定制会所,涵盖健身、咖啡休息、公共活动、健康体验、泳池、下沉庭院等多种休闲、娱乐等功能,塑造圈层专属生活平台2000平精选商街,分级式商业规划,金角银边商业生活,娱乐、休闲、购物、餐饮等业态,舒展时尚品位,打通生活较后一站。
项目优式
1.区域:三环内城,理想生活墅区,多维畅达交通,从容瞬达内外。出则繁华 入则宁静 ,低密宜居园林生活。
2.一平方公里城市理想,集成墅区、医疗、养老、学府、商业(会所)、城市公园、地铁、街坊空间8大城市功能。
3.产品:西技中魂 新现代主义建筑美学,在极简主义设计中,融入中式元素,彰显独特的国际东方韵味。
4.科技:全面焕新十二大科技系统,24小时恒温、恒湿、恒氧居住环境,从“温度、湿度、空气、阳光、噪音、水”六大基本生命元素出发,以适幼级健康标准建造“衡温、衡湿、衡氧、衡静、衡净”健康舒居,营造出低污染、高健康的好房子,帮助全家每一个人与自然产生连接点,获得自然能量与健康,让全家人住得健康、舒心。
5.品牌:金茂物业,金钥匙金质管家。世界500强实力共创中国中化/中国铁建,筑梦理想。

北京金茂府 三环墅区一号藏荣耀入市
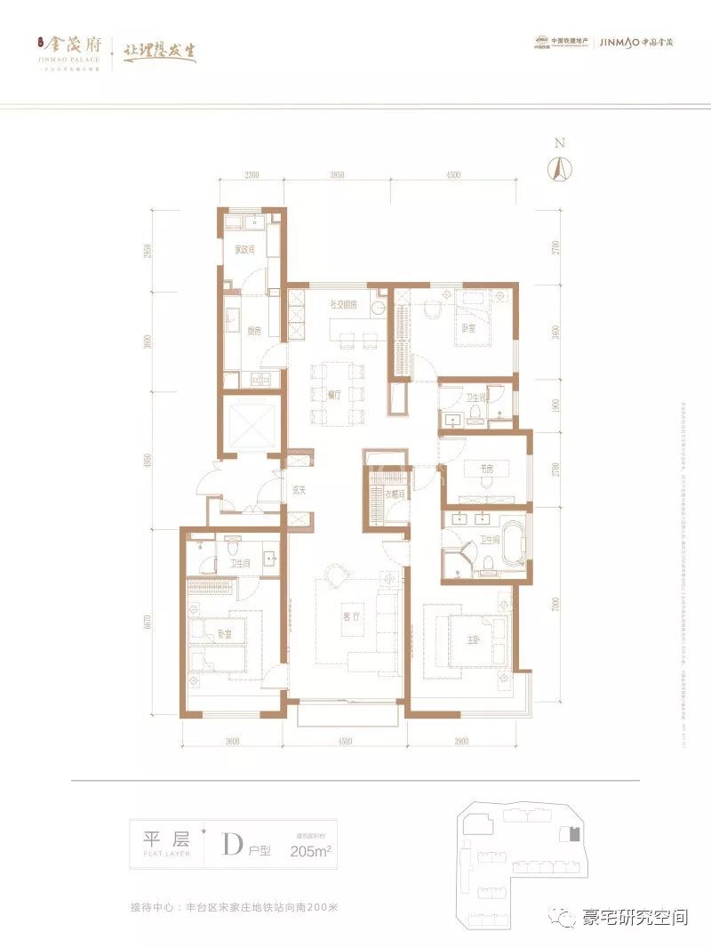
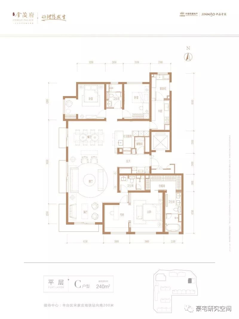
建筑面积约200-230㎡科技大宅
声明:本文由入驻焦点开放平台的作者撰写,除焦点官方账号外,观点仅代表作者本人,不代表焦点立场。







