没看错 首付50多万买金茂北京国际社区
扫描到手机,新闻随时看
扫一扫,用手机看文章
更加方便分享给朋友
贝壳研究院发布的数据显示,2019年7月份,北京住宅租金达到一年中的较高点,租金突破90元/平米/月,随后呈下跌趋势。其实,北京的房租每年都按一定周期跌跌涨涨,临近年底又到该降价的阶段,可惜,即使再降,“新北漂”们每月也得掏出几千大洋交房租。
报告还显示,整租“一室一厅一厨一卫”在一线城市的均价是4085元/月,在新一线城市的均价为1900元/月。但在北京,这一居室平均租金能达到5319元/月。四五十平米的一居室每月平均租金在5千多,这个金额真不如买套房用来交房贷,交到较后还能落一套属于自己的房子,而不是替别人还房贷。
如果你想买套150万的房子,手上有50-60万,可用于交首付,在北京工作满5年,公积金可贷款50万,再加上商业贷款50万,等额本息的还款周期若是25年,按较新贷款利率计算,每个月的还款利息大约5000元出头,跟一居室房租差不多。
也许又有人问,现在总价150万左右的房子哪里还有,除了共有产权房就是“老破小”了。确实,要是想在北京五环里找到一百多万的纯商品房或限竞房新盘几乎是没希望的。
不过,较近,五环外出了一处较低总价150万,首套首付仅需50万多点的限竞房,还是金茂和北京城建联合打造的,名叫“金茂北京国际社区”。这座金茂一出,前来咨询的人络绎不绝。今天,除了区域配套,我们重点看看户型。
【区域交通】
顺义这处金茂产品地块位于顺义北小营水色时光西路西侧,水色时光为该板块主要的二手房,距离马坡的两处限竞房橡树珑湾和国誉府也不算远。地块西侧是潮白河,西南方向是奥林匹克水上公园,附近还没有地铁,但会有接驳班车到地铁15号线,公共交通有待发展。
【项目配套】

项目周边可利用的配套资源略微有限,购物可去北小营市场、华联生活超市,已投入使用的公立学校有北小营中心小学,北小营中学和顺义区第十三中学,公共出行主要靠公交,毕竟项目距离较近的地铁站也得有个10公里,还是远了些。
小区东南侧有一个体育公园,南侧规划了2块教育用地,未来可能会作为金茂国际学校。小区内部带有一些便捷配套,比如社区班车、24小时便利店、业主食堂、儿童活动区、老人健身区、足球场等多种配套设施,金茂有望在这片板块打造一座会生活的金茂城。
【户型设计】
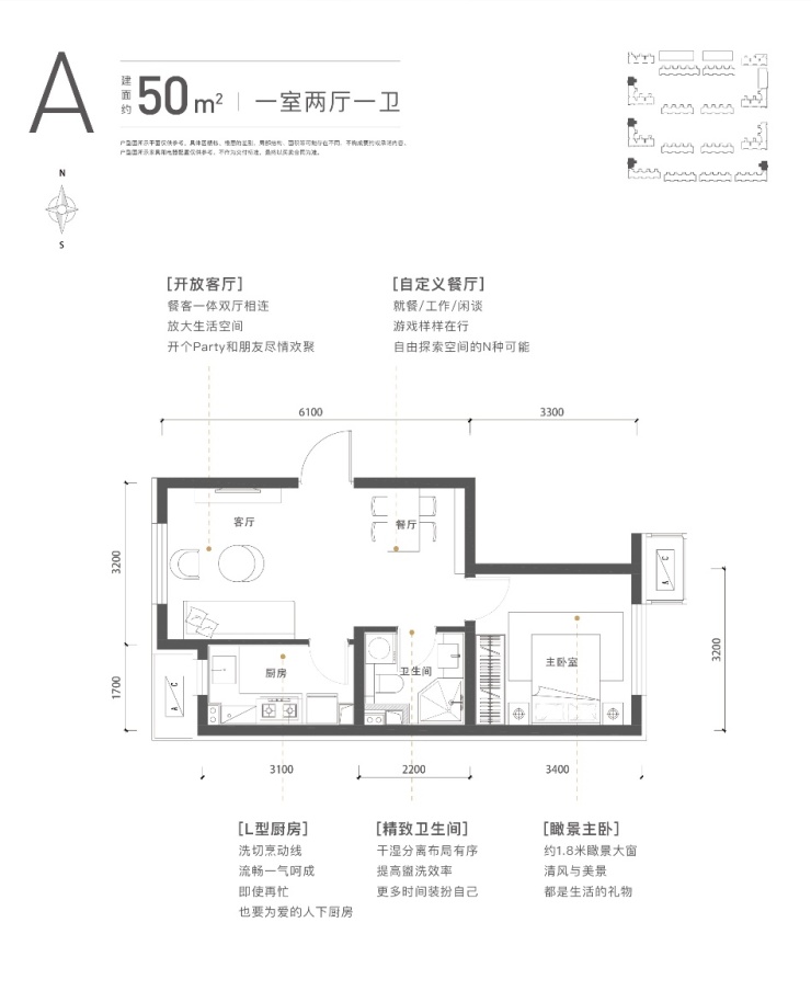
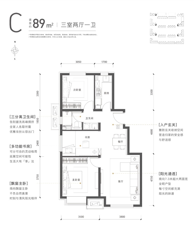
项目共39栋3351套房源,是顺义首座金茂产品,走年轻和国际路线,较低总价约150万,户型也主打年轻化,首期预计推50平-89平带装修智宅,较新户型图如下:
金茂主打高端住宅,本次推出50平米一居真是震撼。L型厨房烹饪空间充足,餐客一体双厅相连,卫生间干湿分离紧靠卧室,该户型动静分区,各功能空间布局合理,“麻雀虽小,五脏俱全”,不愧是年轻的北漂们入门优选。
目前来看,项目两居户型的房源较多,这款70平米两居的B1户型几乎分布在每栋楼里,客厅及主卧均朝南,主卧带飘窗,扩大使用空间;多功能次卧可做二人世界的衣帽间、三口之间的儿童房;U型厨房可尽情施展十八般厨艺。此外,还有83平米两居户型,详情可点击文末楼盘卡查看。
金茂89平米三居有两种户型,焦点君在此先介绍C户型,该户型也是客厅和主卧均朝南,主卧带飘窗,不过该户型是全明格局,就连厨房卫生间的采光都能保证。户型整体结构与主流小三居户型类似,也是“三段式”,具体效果可以去售楼处看看样板间。
【文末总结】
小户型一直是刚需房源中的“战斗机”,常常被一抢而空,金茂小户型销量怎么样较终还得看开盘数据,项目后期还会推出面积稍大一点的户型。不过,低总价的金茂新品有望让北漂变北青,低首付买带装修的金茂住宅,后期还能享受金茂物业,这是多少人想都不敢想的事情。可现在,机会就摆在面前,各位请珍惜,感兴趣的朋友可以拨打下方楼盘卡中的电话致电售楼处详询。
延伸阅读:
声明:本文由入驻焦点开放平台的作者撰写,除焦点官方账号外,观点仅代表作者本人,不代表焦点立场。







