石景山长安和玺开盘 改善一族别错过
扫描到手机,新闻随时看
扫一扫,用手机看文章
更加方便分享给朋友
作为一个从小混石景山的人,怎么也没想到今年的石景山楼市能这么火,房价直接奔7万+去了。人生就是这样,会有很多想不到的事情发生,就像很多人后悔十年前没买房一样。既然已经达到这个高度了,那么在当下楼市,如果想要在石景山置业还有哪些选择?
石景山新房主要分布在古城、西黄村、五里坨等版块,其中古城版块更为火热。这个版块的限竞房长安云锦由于价格优势明显(销售均价58802元/平)已经售罄了,共产房金裕雅苑在选房后仅剩8套房了。纯商品房方面,古城已经有4个纯商品房开盘了,目前仅剩中海首钢天玺待入市,估计10月底会有消息。(咨询购房专家买房问题请添加小助理微信号:goufang02 有问必答!)
另外,给大家播报一个新消息,融创开发的长安和玺已经拿到预售许可证,并且在10月20日开盘。从下图中可以看出,长安和玺、中海天钻是古城纯商品房中距离地铁较近的两个项目,约200米左右,交通便利。北侧临近长安街西沿线,往南约1.8公里是莲石路,这条路开车可以到达西二环,没有红绿灯,还是很方便的。
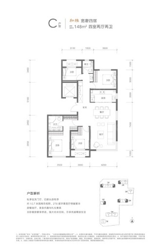
产品方面,户型有125-168平四居,均价7万5,适合改善群体。从楼栋上看,4、5、6号楼建议优先选择,处在小区中间,位置和景观效果都比较好。产品方面,个人比较喜欢148和168的户型,270度的观景客厅设计还不错,大家可以根据自己的需求进行选择。(咨询购房专家买房问题请添加小助理微信号:goufang02 有问必答!)
接下来看下户型:
148平C户型:该户型为边户,分布在1#、2#、4#、5#,重点看一下客厅,就是刚刚说的270度观景客厅,这种设计在市面上并不多,只有少数项目有这种产品。焦点君之前去参观过样板间,很明显的一个感觉就是客厅亮堂、且显大,观景效果好。主卧套房设计,带卫生间,形成一个独立的生活空间。
E户型168平:该户型分布在3#、6#,南向整体面宽约11.5米,同样为270度观景客厅设计,面宽比148平的更大一些。餐厅紧挨着厨房,且餐厅旁边也有窗户,可以在用餐的时候看窗户景色。南向主卧带衣帽间带卫生间,满足主人的生活需求,适合三代同堂的家庭居住。
图片拍摄于168平样板间 仅供参考 实际交付标准以开发商答复为准
总的来说,该版块的新房价格在7万~7万5左右。您还别嫌贵,这几个项目开盘卖的都还不错。如果您是刚需一族,可以看看长安云尚和中海天钻的小三居户型,如果您是改善一族,建议重点关注一下中海首钢天玺和长安和玺,总之呢,适合自己的才是较好的。
(咨询购房专家买房问题请添加小助理微信号:goufang02 有问必答!)
声明:本文由入驻焦点开放平台的作者撰写,除焦点官方账号外,观点仅代表作者本人,不代表焦点立场。







