石景山再添纯商品房 长安和玺户型曝光
扫描到手机,新闻随时看
扫一扫,用手机看文章
更加方便分享给朋友
作为石景山新房供应的主力军,截至目前,古城版块的纯商品房均已曝光。之前有朋友说,这个版块的新房数量不少,而且相隔不远,对每个项目所处的位置并不是很清楚,焦点君给大家做了下图,方便大家看清每个项目所在位置。(咨询购房专家买房问题请添加小助理微信号:goufang02 有问必答。)
对于此前曝光和已经入市的项目,焦点君都介绍过,今天的主角是融创的长安和玺。
作为古城版块中距离地铁较近的长安和玺,让很多购房者期待。据焦点君得到的较新消息,项目售楼处已经开放,地址在石景山绿地环球文化金融城5号楼底商,感兴趣的朋友可以去看看。
从位置上看,项目距离1号线古城地铁站约200米,北侧临近长安街西沿线,出行十分便利。
小区规划7栋楼,层高为14-26层,定位改善社区,产品面积为125-168平,这和同板块的其他项目做了区分,没有100平以下的户型,主要面向改善客群。目前价格待定,版块内已经入市的长安九里和长安云尚均价在7万左右,大家可以做个参考。(咨询购房专家买房问题请添加小助理微信号:goufang02 有问必答。)
目前,户型也已经曝光,今天给大家解析3个户型:
A户型:125平四居,分布在1#,2#,南北通透,主卧带卫生间,形成独立的生活空间;南向整体面宽达10米,室内采光良好。厨房和餐厅紧挨着,生活起来很方便。
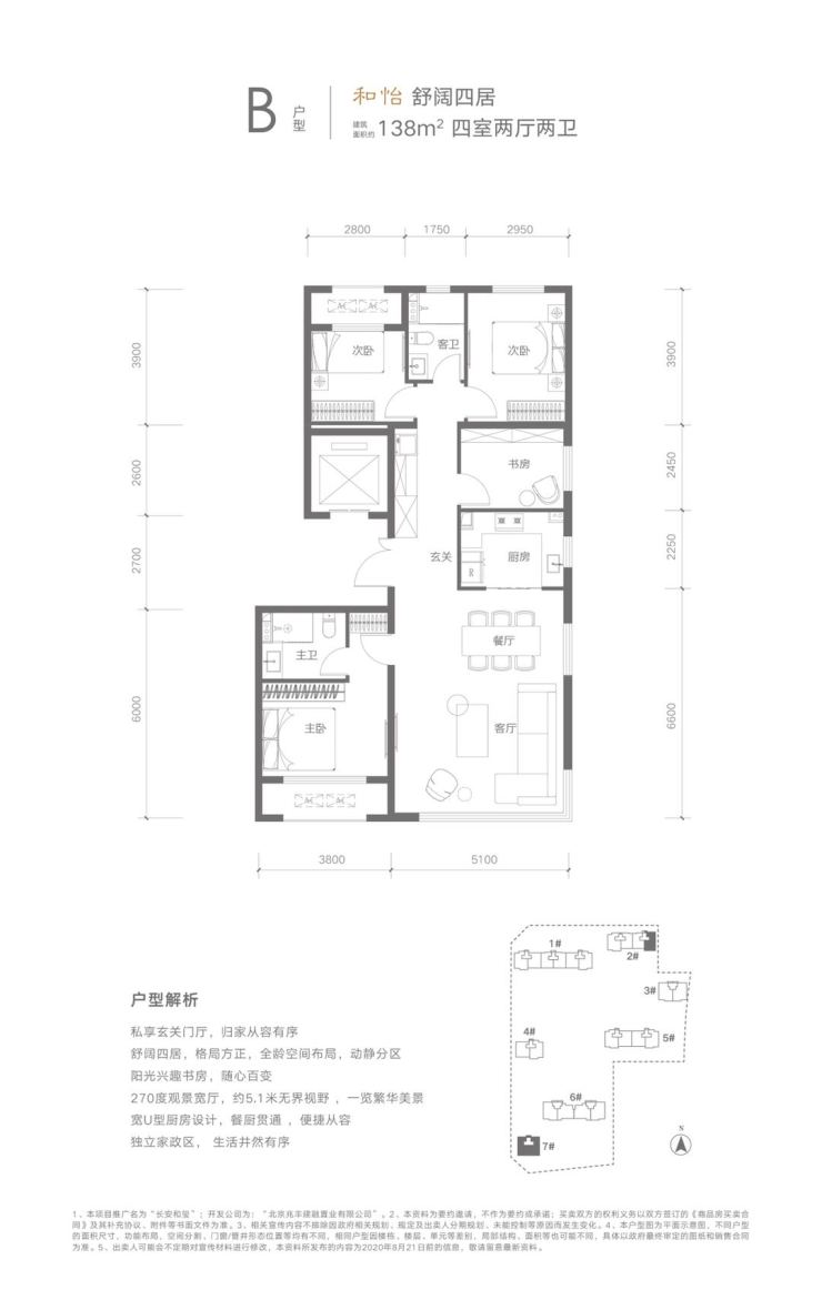
B户型:138平四居设计,分布在2#,7#,南北通透,客厅亮点十足,270度观景客厅设计,屋里更加亮堂。主卧带卫生间,北向的客卫在两个卧室中间,生活起来比较方便,此外,还带有书房,便于办公和学习。
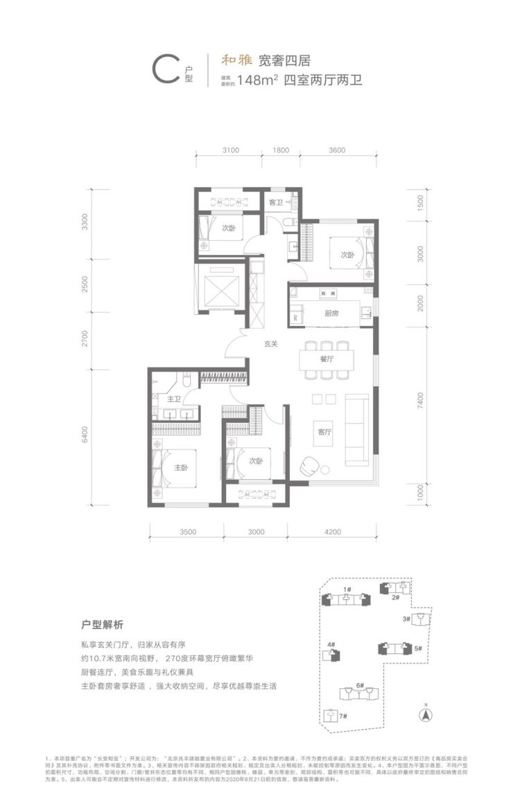
C户型:148平四居,分为边户、中间户两种户型,本文展示的是边户,除主卫外,均有窗户,这个户型的亮点是客厅,270°“转角厅”设计,室内显得更宽敞,主卧套间设计,有独立的卫生间和衣帽间;厨房为U型设计,储物功能更强。
说到这,项目的情况及基本介绍完了。或许很多人都有这个疑惑,为什么今年古城的新房这么火?焦点君来说说个人观点,排名前列,古城这个位置确实方便,自驾的话,莲石路、阜石路、西五环、长安街西沿线等众多路网可以选择;公共交通,地铁1号线去往国贸或者换乘别的线路也很方便。第二,生活配套完善,不管是传统的石景山万达,还是年轻人聚集的华熙LIVE,吃喝玩乐不在话下,医疗资源方面,距离301医院也不远,生活起来还是很方便的,十分适合在中关村、国贸、金融街等地上班的人群在这置业。
总结
长安和玺目前户型已经曝光,样板间预计月底开放,想参观样板间的朋友需要再等等。该项目主打改善产品,融创开发,整体的品质应该还是不错的,想在京西置业的朋友,可以多看多对比,选择一个适合自己的房子。(咨询购房专家买房问题请添加小助理微信号:goufang02 有问必答。)
延伸阅读:
声明:本文由入驻焦点开放平台的作者撰写,除焦点官方账号外,观点仅代表作者本人,不代表焦点立场。







