城六区"反击战" 打响 石景山单价突破7字头
扫描到手机,新闻随时看
扫一扫,用手机看文章
更加方便分享给朋友

1
这,
是今年新房的代表
熟悉北京楼市的朋友们都知道,今天堪称是京楼"新房之年"。
不限价纯商品地块的不断出现,使得京楼新房出现了"大户型、品质优、总价高"的特点。
这一现象,较为突出的就是
石景山
严格意义来说,应该是西五环外石景山的古城南街区域。

如图所示,华润长安九里、融创长安和玺、中海天钻和中海首钢·长安云尚和中海首钢天玺,五大纯商品项目,均价都在7万+。
整体区域均价,因它们骤然提升。
2
为什么?
总是石景山
石景山作为北京的城六区,一直是较容易忽略的。产业商业规模比不上海淀、朝阳,文化底蕴又比不过东城西城。

一张北京2020年地铁规划图,展示了一个即将成为交通枢纽的石景山。家喻户晓的1号线不用多说,已经开通的S1号线进一步加强了门头沟和石景山的联系。
地铁、自驾十分便利,长安街、阜石路和五、六环。在不堵车的情况下,北京的核心区域都可以在1小时内到达。
仅剩的"未开发"区域
纵观城六区,石景山区的未开发程度比较大。这点也是其可以成为近些年,当地纯商品房不断出现的另一原因。
地多,才会有新房出现。
3
"反击战"
由新房打响
如今的石景山正在逐渐完善,虽然繁华程度不比三环,但性价比却彰显出来。
北五环的上地、清河已经达到了8、9万甚至突破10万,而西五环的石景山区域内新房7万+均价,也合情合理。
一分钱一分货
毕竟是纯商品房,品质更优,价格也肯定要比限竞房贵的。
而众多纯商品房中,融创长安和玺更加值得关注。
在距离融创拿下这宗地已经过去了9个多月后,该项目正式吹响进军新房市场的号角。
在北京,这个节奏可以说是比较慢了,毕竟慢工出细活儿,这份等待是值得的。

长安和玺距离地铁 1 号线古城站直线距离不过 200 米,不到 2 公里就是五环,位置无可挑剔。
户型产品上,长安和玺共打造 7 栋 14-26 层的大平层,户型全部为纯改善四居,面积在 125-168㎡之间,精装交付。在户型上,融创更是把豪宅的 " 豪 " 字体现的酣畅淋漓。
4
户型赏析
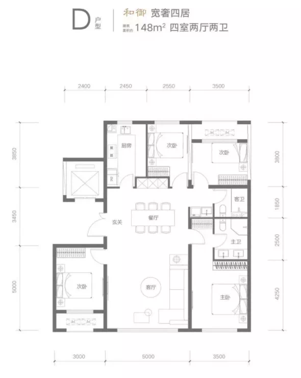
长安和玺一共有 125/138/148/168 平 4 个面积段,6 种户型,但大体可以分为两类:客厅在中间的 " 四叶草 " 户型和270 度采光客厅的观景户型
较大的 168 平四居如下图,是传统的 " 四叶草 " 户型,客厅面宽 6.8 米,进门玄关有效的起到了视线遮挡、空间分割又不影响整体通透性的,卧室分布在房间四角,私密性更加。

而 E 户型则采用了 270 度转角客厅设计,边侧墙增加采光窗,景观视野俱佳。南次卧与主卧套形成一个更大的套房空间,可做书房办公会客,也可作为儿童房、老人房方便照顾日常起居。

148 平户型格局与 168 平大体一致,只是各个空间面积略小些,不过略小些的客厅面宽也能达到 5 米,同时,4.8 米的转角客厅也让人实名羡慕。都采用了双卫 + 书房的室内格局,各个房间的面积也相对均衡。

5
总结
在新房扎堆儿的石景山,众多开发商集体拿地的优势就是确保了当地未来发展的协调性。
而作为豪宅出身的融创,携一座长安和玺进军京城新房市场,相信是对未来京城西部改善人群的较大利好。
声明:本文由入驻焦点开放平台的作者撰写,除焦点官方账号外,观点仅代表作者本人,不代表焦点立场。







