89㎡现代北欧,原木风的空间,装出自然舒适的家
扫描到手机,新闻随时看
扫一扫,用手机看文章
更加方便分享给朋友
这是一套89平米的小三房,以原木风的空间基础,在现代北欧的元素搭配下,给一家人营造了一个自然舒适的居住氛围。
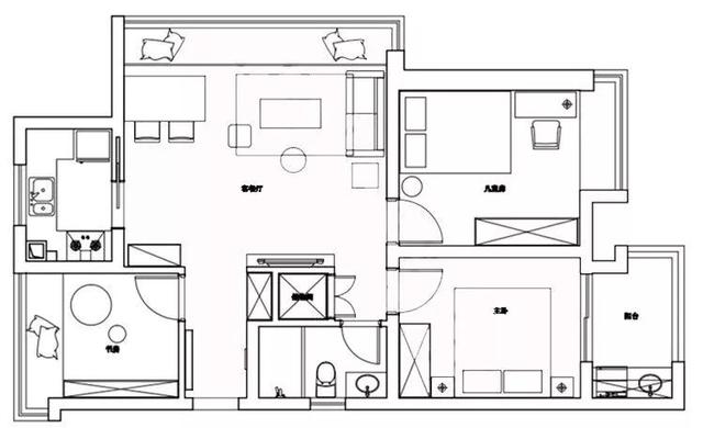
平面布置图

玄关

▲玄关空间相对狭窄,鞋柜装成入墙式的,一个折叠式的换鞋凳,展开后也为换鞋提供了方便,而墙面的挂钩,则可以顺手把包包挂上去。

▲平时换鞋凳用不到的时候,就折叠起来,保持通道流畅的活动。
客厅

▲客餐厅横厅的格局基础,这个客餐厅布艺电视为中心,以大胆的格局装出了一个舒适的起居室。

▲飘窗充当座位,沙发作为休闲功能对着餐厅摆放,搭配上一块灰色地毯,显得简约温馨好自然。

▲电视设在走廊那面较小的墙上,这种大胆的格局,让相对不是很宽松的客餐厅显得宽敞了不少。
卧室

▲卧室现代舒适的空间基础,灰蓝色的床头墙结合白色衣柜,木色床搭配灰白配的床单,装出了一个简约惬意的睡眠空间。

▲床头背景墙两幅简约装饰画,床头靠背还带了黄色的皮艺,搭配木质对称的床头柜,还有蓝橙色搭配的窗帘,装出了活力的气息感。
儿童房

▲粉色调的儿童房空间,给孩子提供了一个浪漫舒心的居住氛围。

▲飘窗旁边的小儿童房书桌,上面摆满了可爱的小公仔,在书桌后面还有一个白色小木马,增添了儿童房的童趣感。

▲衣柜里加了一个屋形的开放收纳,作为孩子日常物品的收纳也是非常的方便。
书房

▲书房腾空位置,居中摆一个休闲桌椅暂作休闲所用,等以后家里人多了,可以随时改成卧室。

▲平时坐在这里看书聊天,也是非常的惬意舒适。
设计:内舍设计 ,点评:设计馆
买了房找装修灵感,欢迎加微信公众号:shejiguan_cn
声明:本文由入驻焦点开放平台的作者撰写,除焦点官方账号外,观点仅代表作者本人,不代表焦点立场。
