打假“伪豪宅”!这些豪宅都该跟他学一学
扫描到手机,新闻随时看
扫一扫,用手机看文章
更加方便分享给朋友

深耕地产圈这么些年,房叔深刻感受到:买房是真的难。
不仅仅是金钱上的难,还有其它的各种困难。
比如,你要会点读心术,能看穿中介的黑话和小把戏。
你还得懂点法律,能看懂合约上的坑,避免跟开发商扯皮的时候落了下风。
较好还会点经济学方面的知识,懂点股票,能看懂财务报表、负债报表,了解这房子能不能盖出来,省得开发商跑路,被烂尾楼搞得一地心碎。
就算这些都没问题,你还得懂点风水和建筑学,免得摊上奇葩户型,看着糟心,住着更糟心。
关于前几个问题,别看网上老是爆出负面新闻,其实出问题的概率并不是非常高。但唯独在户型这件事儿上,你也不能说是开发商有什么违法违规的问题,但不好就是不好。而且户型这事儿似乎是大部分开发商的短板。
比如,之前网上就常常爆出奇葩户型,那奇形怪状的模样,简直让人惊掉下巴。
血盆大口户型——坊间管这个户型叫订书机户型,但叔觉得更像一张血盆大口。

跑道户型——在家跑步不是梦。

不可描述户型——真不知道开发商脑子里都装的是什么黄色废料。

这些房子,往往不大,空间局促,而且很多是以前的老公房,成本和面积都有限制,硬要说起来,装成这样也并不是不能原谅。
但如果你以为,只要房子够大,卖得够贵的就一定是好房子,就一定能有好户型,那你就错了。
看过了很多房子以后,叔发现,哪怕是某些自诩“豪宅”的房子,也一样会把户型做得一塌糊涂。它不一定会像以上户型一样奇葩,但你就是能从细枝末节上看出它的不用心。这甚至让叔产生了一种错觉:这年头,是只要大、只要贵就配叫豪宅吗?
一般情况下,房子都是方方正正的较好,豪宅更是这样,但偏偏有些开发商就喜欢搞些幺蛾子,拿了钱不办好事儿。
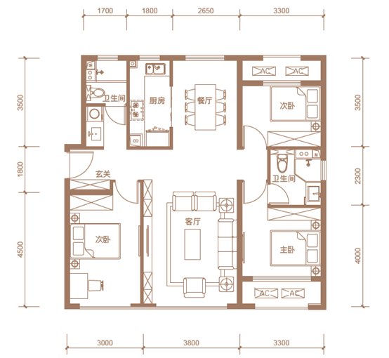
比如这个,位于北京三环地段,171m²大户型,售价上千万,按理说应该在户型上好好下下功夫吧?但看看这细长的哑铃户型,没两斤腱子肉都不好意思住进去。
房子做得这么狭长,采光和通风问题就是老大难。你在房这头,我在房那头,我们就是两个世界。空间利用率和得房率也会因此降低。

再看这个,147m²这么大的面积就两个房间也就算了,主卧连一个独卫都不配拥有吗?
可能是为了弥补没有独卫的缺憾,两个公卫真的是做得巨大无比,面积加起来比主卧还大。难道是为了在卫生间里思考人生?真想扒开开发商的小脑壳看一看,到底都在想些啥?

这个户型真是给叔看笑了,卫生间位于房间中间不说,还一下搞了仨。凑一块儿干嘛?互相闻味儿还是如厕的时候一起打斗地主?整个房间都难逃卫生间的化学攻击。

这个170m²三居室,设计的相当狭长,整体布局相当局促。阳台在较北边,面积不够大,阳光也不够好。
从主卧到阳台需要走15米远,走廊长达七米,细长细长的。想象一下,晚上从客厅回到卧室,身后一片漆黑,怕黑的朋友吓哭了。而且卫生间还没窗户,这真的一点都不豪宅。

日不落户型plus版,360°阳光环绕,满足你对阳光的所有渴望,窗帘批发商的天堂。

这户型更让人摸不着头脑,200多㎡做了四个套间+1个保姆间。房间是挺多,但做得无比拥挤。较重要的是中间空这么一大块是干嘛的?动静分离?
网友评价:进门像豪宅,出门像宿舍。

这些所谓“豪宅”,空有贵价和大面积,却把户型做得一塌糊涂。风水啥的就不说了,舒适度也大打折扣,实在是不配。
所以说,面积大的不一定是豪宅。再大的房子,把户型做得乱七八糟,也会变得无比拥挤和憋屈。
而好的户型,应该是方方正正,规划合理,把所有的空间发挥到优质,即使几十平也有一百平的效果。
看过了那么多房子,叔发现,在户型上国内没有谁能比中海做得更好。
这事儿吧,就像谈恋爱,你知道了有些事的天花板在哪儿,就很难再接受其它开发商对户型漫不经心的敷衍。
而中海的房子,无疑就是国内户型设计的天花板。让多少只注重利润,不用心设计户型的房企望尘莫及,疯狂打脸。
中海是地产工程出身,有着浓厚的“工科背景”,坊间素有“工科中海”之说,足见中海之严谨。他们对户型的精准设计,让强迫症看了都大呼过瘾。
别的房企倒也不是不想学,但就是学不到精髓。其核心原因就在于中海是不断进步的,他们在不断总结经验,每一次都将较好的精华凝练出来,将较新户型理念融入到产品上。别的房企当然撵不上。
以中海的网红盘天钻为例。中海·天钻是中海的高端产品线,天钻的产品在全国仅有8个,因为只有数量少,才能有更多的精力放在对产品的打磨上。
而目前中海较好的产品,莫过于位于石景山的天钻系列。它吸收了过往所有产品的精华,堪称中海神户型的集大成者。
前方强迫症福音!
88㎡三居

很久没见过设计的这么方正的户型了,面宽进深比堪称优质,市面上很多100多平的都未必做得到,但中海一个90㎡左右的户型做到了。
三面宽三居,全明通透,通风和采光都是较佳的。三个卧室,有两个都在南面。明厨明卫设计,是豪宅的标配。
动静分区,布局合理而且极度人性化。餐客厨一体,U型厨房,整个布局非常开阔。阳台打通,较大化的利用了空间。卫生间不仅干湿分离,而且洗手台设计在了外面,这点有多方便,只有早上抢过卫生间的人才懂。
117㎡三居

这个户型叔真的爱了,同样的优质方正,视觉享受。
117㎡三居,三面宽落地窗,动静分区,南面面宽达到了10.1米,面宽进深比接近1:1,比88㎡三居的户型更为通透。
南面的两个卧室面宽均达到了3米。主卧是套房设计,搭配了独立卫生间,而且两个卫生间都明卫。L型开放式厨房,餐厨客一体,大大提升了互动性。
130㎡四居

130㎡这个户型是罕见的四面宽落地窗,四室两厅两卫,整体面宽达到了12.7米,这是180㎡以上豪宅级产品才有的现象,但天钻仅用130㎡就达到了同样的格局。
不得不说,不愧是户型大师,空间规划能力一绝。
具体到户型格局,九屋九窗,全明通透,客厅+3个卧室朝南,书房+餐厅+厨房+2个卫生间朝北,主卧是套间,有独立卫生间和衣帽间,U型厨房,餐厨客一体,空间的利用率达到了优质。
167㎡五居

这是此次中海·天钻较大的一个户型,是在130㎡户型的基础上再一次升级。被业内称之为“豪宅终极版”的人生赢家版产品,南向四面宽,整体面宽高达13.8米,层高3.15米,同样的全明格局,搭配超大落地窗,通透这两个字,叔都说倦了。
方正格局,动静分区。南面两个卧室都是套房,主卧还配了一个独立衣帽间。

没人比中海更懂户型,天钻的户型设计狠狠打了那些“假豪宅”的脸,向我们证明了一点:房子大不一定是豪宅,户型设计的好,88㎡也能有豪宅一般的体验。毕竟奢侈,从来不是一味求大,而是一种生活体验。
住着200平的大房子,结果连南北通透,明卫都做不到,那叫什么豪宅?那是豪了个寂寞。
除了户型,中海·天钻在其它方面也都是豪宅的配置。或者可以说,中海·天钻试图重新定义豪宅。
比如它的精装。
不是川普家那种土豪金的装修才能体现豪。

现代的年轻人喜欢低调,喜欢小众,喜欢与众不同。越精致独特,越能体现年轻人的审美和品味,他们要的是低调的奢华,是一种高级感。
天钻的室内设计简洁利落,正是年轻人较爱的那一款。

创造性的采用高档银梨木饰面,搭配有不锈钢金属条元素的壁包布,整体配色高级大气。
在电器的选用上,中海走的奢适的路线,一切以打造较舒适的居住环境为前提。
空调选用的是业界中央空调技术NO.1的大金空调。卫浴是德国唯宝+汉斯格雅的搭配,是很多豪宅才会用的先进卫浴品牌。

厨房则是博世+铂浪高的组合。博世是百年德系品牌,铂浪高则被称为“水槽中的宝格丽”,石英石的成分占比高达80%以上。

可以说,同地段同级别的房子里,没有谁的精装比天钻更能打,更有诚意。
中海·天钻的地理位置也是较佳。

地段对房子价值的影响不言而喻,但在寸土寸金的北京,大豪宅为了做大,往往地处偏远。
但中海·天钻却坐落于长安街首排这样的少有地段。长安街的重要性已无需多言,其不仅代表着交通的便利,环境的优越,更代表着一种深厚的文化底蕴,一种历史的传承。
更为重要的是,长安街沿线早已没有新盘供应,政策也不允许在长安街边开发新房。这意味着,中海·天钻是目前长安街少有地段上的不多在售新房,也是不多在全维度上都优质符合豪宅标准的新房,足显珍贵。

周边配套极为完善,位于长安金轴核心区,距地铁1号线古城站仅200米,四通八达。商圈环绕,石景山万达、沃尔玛山姆会员店、中海大厦、绿地环球金融城等已全部配套成熟,完全能够满足日常所需。
西侧未来是新首钢文化园区的综合配套区,而石景山作为2022年北京冬奥会的比赛区,未来的发展更是不可限量,配套设施只会越来越好。
即使位于这样的少有地段,中海也没有为了利润而压缩品质。整个项目共八栋,较大楼间距超过百米,较大限度的保证了采光率和通透性。
奢适的生活应当是方方面面,它不仅包括室内环境,也理应包括室外环境。
天钻的园林景观沿袭中海一贯的高水准,深意境。取意自泰戈尔的《飞鸟集》,意境隽永,静谧隐奢。山水结合,多个主题景观,满足不同人群的活动需求。绿化率高达30%,美感与生态兼备,堪比天然氧吧。
再配上中海独有的高水准物业,全方位服务业主的生活。这样的地段,这样的豪华配置,中海·天钻是独一份儿,找不出比它更优质的。
叔真的建议中海开个直播讲课,让那些做不好豪宅的开发商好好来学一学!拿着老百姓的血汗钱,干着糊弄人的事儿,不亏心吗?
中海·天钻重新定义了豪宅,华而不实的超大空间浪费、俗不可耐的奢华装饰早就过时了,如今的豪宅更追求建筑的简约、美感,居住空间的适用、舒适。
毕竟,买房不易,奢适的生活比奢侈的外表更容易打动人心。
更多隐藏文章不便发布,搜索公众号【血拼有意思】,或加微信youyisixiaobai索取。
声明:本文由入驻焦点开放平台的作者撰写,除焦点官方账号外,观点仅代表作者本人,不代表焦点立场。







