THAD精品项目推介 | 庄惟敏等丨雄安市民服务中心周转及生活服务用房
扫描到手机,新闻随时看
扫一扫,用手机看文章
更加方便分享给朋友
本文原发表于《建筑学报》201808期

▲ 周转用房中央庭院
雄安市民服务中心周转及生活服务用房
设计单位 / 清华大学建筑设计研究院有限公司
建筑师 / 庄惟敏 张维 章宇贲 王禹 张啸乾
地点 / 河北雄安新区
设计 / 2017年 / 竣工 / 2018年
业主 / 河北雄安市民服务中心有限公司
设计团队 / (建筑)张红、杨海潇、王越、龚佳振、闫嘉鑫;(结构)李青翔、刘彦生;(给排水)徐青、刘玖玲;(暖通)贾昭凯、刘建华;(电气)崔晓刚、王磊;(室内)曹军、解璞、乔立功
技术标准 / 住房和城乡建设部科技与产业化发展中心、中国残疾人联合会、中国中建设计集团有限公司
景观设计 / 戴水道景观设计咨询(北京)有限公司、天津华汇规划景观设计团队
室内设计 / 清华大学建筑设计研究院有限公司室内设计团队
灯光设计 / 北京清华同衡规划设计研究院有限公司
BIM设计 / 清华大学建筑设计研究院有限公司、中国建筑设计研究院有限公司BIM设计研究中心
绿色建筑 / 中国建筑科学研究院天津分院
基地面积 / 2.09h㎡
建筑面积 / 1.9万㎡
结构形式 / 装配式钢框架结构
摄影 / 战长恒

▲ 生活服务用房庭院

▲周转用房下沉庭院

▲场地主入口坡道
▲南侧居住单元主立面
▲周转用房北侧外景

▲ 总平面

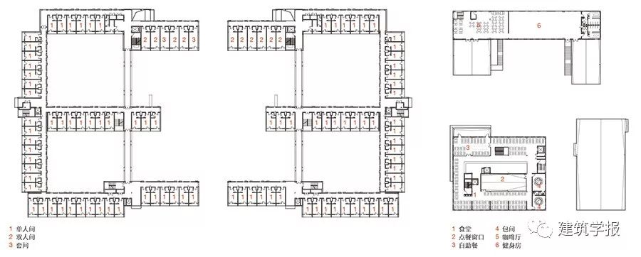
▲ 周转用房首层平面 / 生活服务用房首层平面

▲ 周转用房二层平面 / 生活服务用房二层平面


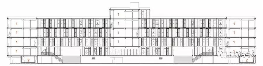
▲ 周转用房剖面

▲ 生活服务用房剖面
人性化、标准化、生态化的居住空间
—雄安市民服务中心周转及生活服务用房设计
庄惟敏 章宇贲 王禹
清华大学建筑设计研究院有限公司
雄安市民服务中心项目是雄安新区设立以来的排名前列个建成项目,目前已投入使用。为贯彻落实党中央国务院建设雄安新区的决策部署,以“世界眼光、国际标准、中国特色、高点定位”的总体要求全面推进雄安新区的建设。本项目在新区建设前期为新区临时党委、筹委会及平台公司、先期入驻新区的企业提供临时办公、生活场所,同时担负规划建设成果展示、政务服务、会议、接待等功能。
作为排名前列建设工程和新区的主要展示窗口,项目包含政务服务及规划展示区、行政办公区、周转及生活服务用房区、企业办公区等4大功能,汇聚了众多大师及专业团队,打造了标准高、技术新、经济实用的建筑。其中,周转用房及生活服务用房区由清华大学建筑设计研究院有限公司庄惟敏院长领衔设计。该项目用地位于雄安市民服务中心政务服务区以北、企业办公区以南;建筑用地面积20939㎡;周转用房建筑面积19026㎡,可供给452人住宿;生活服务用房建筑面积3812㎡,包含园区食堂、书店、健身房、超市等服务功能,其中食堂1810.16㎡、健身房1347.34㎡、超市654.87㎡。
1 规划布局:院落规划、理性布局
项目位于整体园区的中部,南侧为政务服务区,北侧为企业办公区,规划结构上有延续的园区中轴线横穿地块。项目设计遵从整体园区大规划,将周转用房布局在西侧地块,并采用对称的E字形半围合式布局,沿中轴两侧排开,将生活服务用房布置在东侧。
周转用房组团作为居住服务功能,E字形对称布局让开中轴的通透视线,同时各自形成半围合的公共空间,包含中轴上的一个大合院以及周边的4个小合院,注重公共性的同时保证一定的私密性(图1)。在建筑面积和用地等条件限制的情况下,采用单廊式布局,避免了双廊的采光不足,同时保证没有北向房间,提升了居住品质。在保证住房自然间数、单间房面积满足标准的前提下,所有房间经过设计均达到了冬季大寒日的日照要求。通过分区,E字形的每部分建筑均设有独立出入口,便于运营管理。同时,在远端2~4层设置室外景观连桥,提升居住者的便捷性。

▲ 1 周转用房外景及庭院
生活服务用房组团位于东侧地块,承载了园区生活的各类功能,包含食堂、厨房、超市、健身房、咖啡厅,以及相应的机房设施等。建筑以更灵活的布局,将各功能重组分成3个功能体块。其中餐厨位于西南角,包含首层的厨房、食堂门厅、二层的食堂;超市位于东南角;健身房和咖啡厅位于北侧二层,一层附带变配电室、10kV开关站、充电桩变配电室、消防控制室等设备机房。各建筑之间打造一个整体景观平台,各主要入口开向中央平台处,为各种公共活动提供承载空间。
2 装配式建造:数字模数、简约高效
为响应住建部《“十三五”装配式建筑行动方案》等文件大力发展装配式建筑的要求,项目全部采用钢结构装配化方案,预制钢结构及钢桁架支撑板体系使得建筑周期大大缩短,从设计到主体结构封顶仅用时4月余。
周转用房设计采用3.6m开间模数,单人间进深6.3m(不含阳台),走道宽1.8m;生活服务用房则采用6.9m方柱网模数,布局规整。建筑外立面采用玻璃及铝复合板整体化设计,单元化板材模数统一且布置上灵活有变化。整体化的幕墙方案使得设计可将钢结构与装配式幕墙墙体相融合,达到居住建筑内的“无柱”效果,提升了居室内的空间利用率且保证了公共走道有效宽度。轻质隔墙、隔间的体系可以灵活设置,并且满足相应的隔声需求。居室内卫生间采用一体化的集成卫浴系统,提升了项目的装配化率。建筑立面设置一步阳台,采用可滑动式木纹百叶等细部构造,在丰富立面效果的同时给生活栖居提供便利,暖色调木纹百叶也弱化了装配式建筑的冰冷机器属性。总体上,标准化的生产构件保证了施工周期要求短、质量要求高的设计任务挑战(图2)。

▲2 装配体系分解示意
3 绿色节能:应对场地、技术适宜
规划道路高于场地内标高,地段内形成局部凹地是雄安新区用地现状的特征。设计因地制宜,采用了一系列适宜于场地的建筑措施。首先设计考虑在底层设置设备层,将使用功能抬高后设置在园区道路标高,便于人流到达。同时采用底层渗透式雨水花园、景观庭院等设计手法,通过适宜场地设计打造半开敞的下沉庭院,使得建筑与庭院自然共生,既能应对雨洪,也能形成通风、宜人的微气候(图3、4)。同时,建筑底层局部架空,四周通过过街楼、缓坡等设置连通庭院,满足到达园区各功能组团需要(图5)。建筑立面设置阳台灰空间及可滑动百叶进行被动式节能,建筑的外围护材料参数、采用的采暖、空调系统等设计措施,都使得该项目达到绿色建筑三星等级。

▲ 3 空间剖面示意

▲ 4 周转用房室外景观

▲ 5 周转用房室外连廊
建筑全过程整合BIM设计,在设计上设置底层的管廊系统,解决各设备管线的水平输送问题,并结合居住单元间的管井将管线入户,较大程度地减少了管线交错及横穿(图6、7)。通过减少各居住层管线、精细化布置管线并节省尺寸,在层高限高3m、居室内风机盘管空调、地板复合采暖等系统占用高度的限制下,较大化地满足居室内2.7m净高,走道2.3m净高的空间。从场地设置到建筑内部,设计通过综合的策略打造宜居节能的环境,提升园区亲切宜人的居住空间。

▲ 6 暖通系统信息模型

▲ 7 给排水系统信息模型
4 人性化设计:质朴生活、诗意栖居
周转用房作为宿舍空间,设计活化了居住氛围。E字形庭院在满足面积、套数要求的同时,也使得底部区域相对封闭,设计将中间的横条底下两层架空,打通了南北两个小庭院,使得庭院底部连通,创造了宽敞通透的“自然层”。人们走出居室,就可以来到这个提供健身、休憩等生活场景的远离喧嚣的活动空间。
生活服务用房的架空木平台层设置台阶通向底部雨水花园,饭后可在台阶上坐憩,也可临时将花园做舞台、大台阶做看台举行非正式表演。建筑二层结合中信书店、健身房等设施设置二层观景平台,并设室外楼梯连接木平台。3个标高的景观层次视线互通,提供了多样化的生活场景。
建筑内部通过单廊布局引入充足阳光,保证公共区域明亮宽敞的品质;居室内可滑动百叶可遮蔽室外视线,透光且满足了居室空间的私密性,木纹的软装也增加了温暖意境(图8~11)。建筑室内外无障碍全部采用“无高差”的缓坡设计,离门厅入口较近处结合较新设计标准提供了无障碍客房,并配以整体导视系统,无障碍电梯也可以方便到达各层。

▲ 8-11 周转用房阳台、周转用房立面细部、周转用房套间室内、周转用房走廊
总而言之,周转用房及生活服务用房的设计为市民服务中心办公人员提供了宜居、舒适、便捷的生活环境,体现了“创新、协调、绿色、开放、共享”的雄安新区理念,也为探索、推动新区的新时代建设做出了贡献。
声明:本文由入驻焦点开放平台的作者撰写,除焦点官方账号外,观点仅代表作者本人,不代表焦点立场。







