网申在即!首付不到46万,官宣户型图出炉,跨区申购有望
扫描到手机,新闻随时看
扫一扫,用手机看文章
更加方便分享给朋友

昨天跟大家分享了海淀和朝阳共产房的消息,不少人都问血拼哥,别的共产房有动静不?今年还有共产房可以网申的吗?
哥想说,别着急,上半年因为疫情,好多项目都被迫推迟了入市节奏,下半年该来的总会来的,毕竟开发商也着急回款不是,再加上有的区排着队等着去化,新项目总要慢慢来的,咱且耐心等等。
这不,最近不少项目都加快了节奏,昨天有朝阳和海淀,今天还有通州和房山。
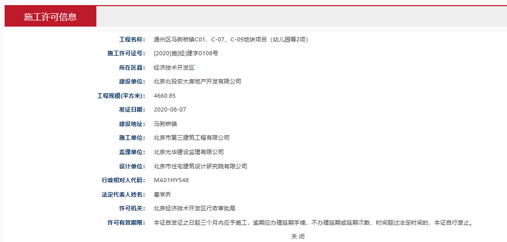
日前,位于通州马驹桥的北投和苑取得了施工许可证,按照此前的规律,施工就意味着网申不远了,中意这个项目的家庭可以期待一下了。

亦庄新城的规划想必大家都有所了解了,台马部分区域划归亦庄新城,也使得“破除双限”的消息甚嚣尘上,商品房、二手房是不是真的会如此,咱还有待官宣,但是共产房有通成家园在前,北投和苑还是很有希望跨区申购的,只是这个项目值不值得买呢?
首先,比起相去不远的通成家园,北投和苑每平的价格稍微便宜一些,通成家园25600元一平,北投和苑25500元一平。
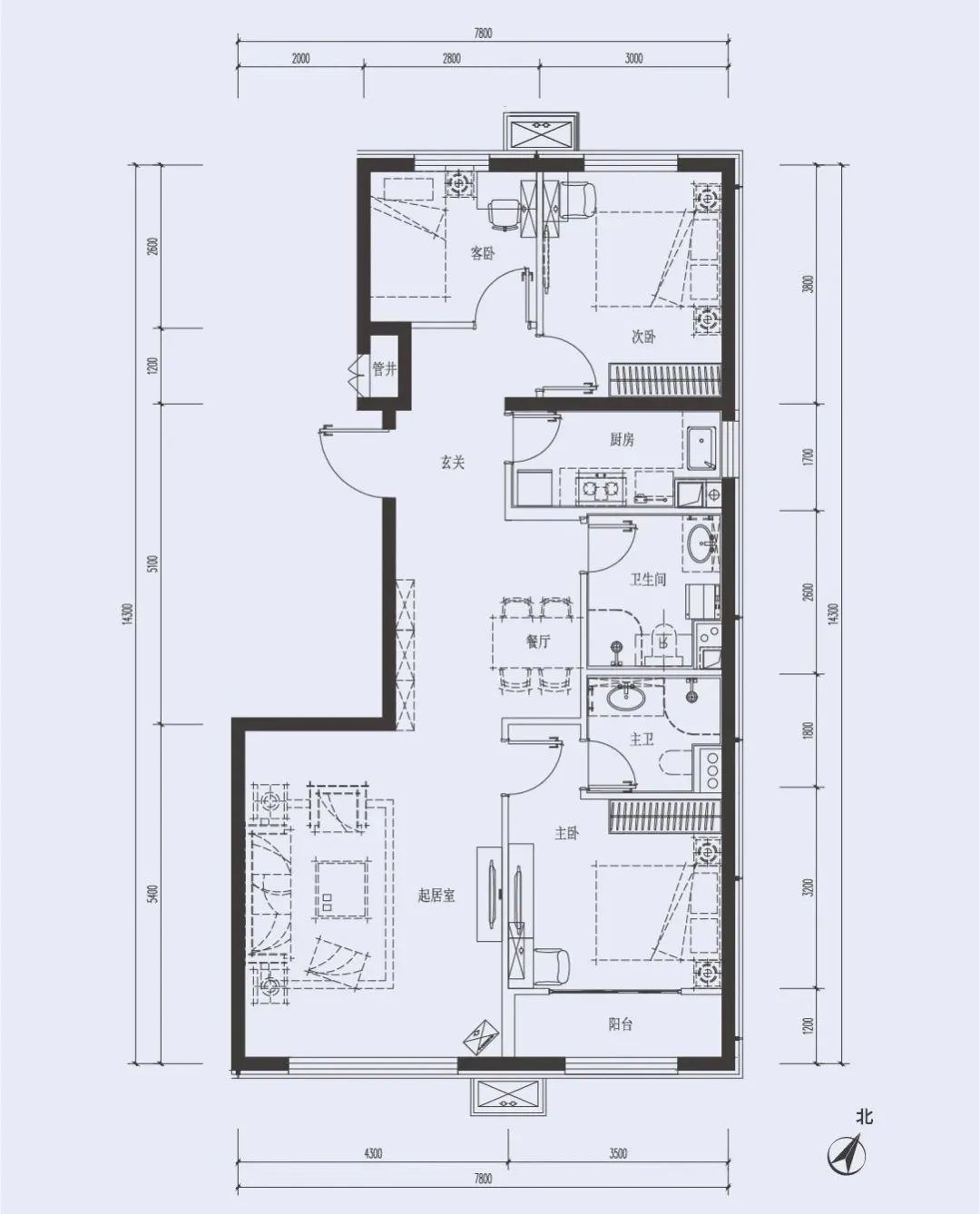
项目可提供1139套房源,户型面积段有60-120平,目前开发商官宣了65平一居、90平两居、120平三居的户型图,还是比不少共产房的户型强的。要是买65平一居,首付49万起,门槛也不算高,若是买到60平的,门槛更低,首付不到46万。
65平一居
90平两居
120平两居
另外,项目周边教育资源丰富,自身还配建商业用地和教育用地,弥补了当前配套不足的缺陷,自然环境也不错。
但是,项目的缺点也很明显。
项目周边的配套都还在完善中,刚需最关注的地铁配套尤其缺乏,3公里左右有亦庄线经海路站,但对于上班族来说就比较鸡肋了。而且,项目配建回迁房,舒适度也会受到影响。
通成家园支持跨区申购,但1850套房源还是剩了1180套房,您觉着北投和苑会怎样呢?
说完通州的,再来说说房山。
房山拱辰的共产房终于有了名字,近日市规划和自然资源委房山分局完成了该项目的建筑物名称核准工作,核准名称为“轩景家园”!名字的由来还有寓意,大家可以自行看图片了解。

项目小区规划住宅16栋,公共配套用房1栋,幼儿园1栋,其中有12栋10层住宅,1栋9层住宅,1栋8层住宅,2栋7层住宅,1栋1层公共配套用房及1栋3层幼儿园。单价29000元一平,全装修交房,人车分流,车位有932个(地上停车位87辆,地下停车位845辆),可以提供770套房源。建筑面积约108㎡四居60套,约89㎡小三居603套,约79㎡两居100套,约65㎡一居7套。
项目地处西南五环与西南六环之间,在良乡高教园区范围内,价格和产品有一定优势,周边教育和商业资源还比较丰富,但医疗资源尚不完善,距离房山线学城北站也在1.5公里左右。

区域内的次新房比较多,均价一般在4万左右,情况差不多的二手房是远洋新仕界,78平两居室303万,而轩景家园79平两居总价229万,二者相差74万。房山现在没卖完的共产房不少,您更喜欢哪一个呢?
声明:本文由入驻焦点开放平台的作者撰写,除焦点官方账号外,观点仅代表作者本人,不代表焦点立场。







