绿城三盘齐发;奥海明月、和锦诚园、明月听蘭
扫描到手机,新闻随时看
扫一扫,用手机看文章
更加方便分享给朋友
绿城在昨晚(6月10号)的案名的发布会上,绿城三盘齐发,这三个项目,处于北京热门区域(奥森北部门户东小口,通州台湖,旧宫中轴线);一个限竞房,两个商品房。
奥森东小口案名定为“奥海明月”、旧宫项目案名为“和锦诚园”、台湖案名为“明月听蘭”。
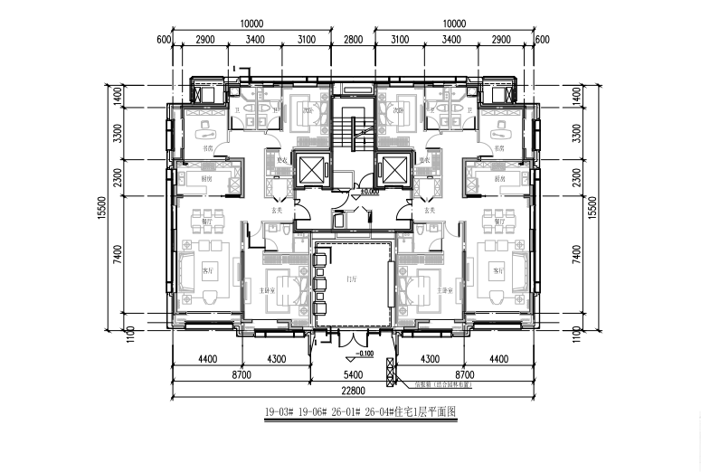
1 绿城东小口地块-奥海明月(限竞房)
奥海明月位于昌平东小口区域,项目距离规划中的地铁13号线拆分B线建材城东路站不到800米,建材城路南侧,立汤路西侧,南侧以及东侧北公园包围,分别是东小口森林公园、奥森公园、太平郊野公园..
10公里半径内可到达西三旗、中关村、上地以及望京区域,这些区域聚集着大量的互联网公司,大到百度、阿里、腾讯、美团等巨鳄,小到数不清的创业公司。
从位置来看,东小口项目就是码农的福利,从面积这块来讲的话更是,不得不怀疑,绿城在拿地之前,针对的就是码农和刚需。

绿城东小口地块是“明月系”产品。产品为洋房和18层的小高层;
项目限均价58858元/平米,较高不超过64744元/平米,受7090限制,项目户型为50-138的一居到四居;小面积会做成普宅,首套首付约130万起,二套首付约220万起,价格上这特别是刚需的优选;
从风水上讲,地处北部,项目周边公园环绕,特别的上风上水,居住环境上乘,且紧邻地铁,是机不可失,时不再来。丞粉们,可要抓住机会,感兴趣可以添加我们的微信号,由项目的销售1v1为您解答更多疑惑。
2 绿城旧宫地块-明月听蘭(商品房)
2020年2月18日,绿城67亿拿下位于五环外的大兴旧宫不限价地块,位于熙悦林语东南侧,楼面价35631元/平米。
去年1月份,出台亦庄规划中,旧宫镇定位为亦庄综合配套服务区;区域内的教育配套目前已有德茂中学(南城重点试点中学)、旧宫中学、旧宫明圆学校、旧宫排名前列小学、旧宫实验小学、北京航天中学等,北京101中学洽谈中。

旧宫和瀛海板块也是南中轴线上一个热门区域,区域的新房项目比较多,例如:瀛海府、中海寰宇时代、首开保利熙悦林语、和园、洺悦湾。。。。

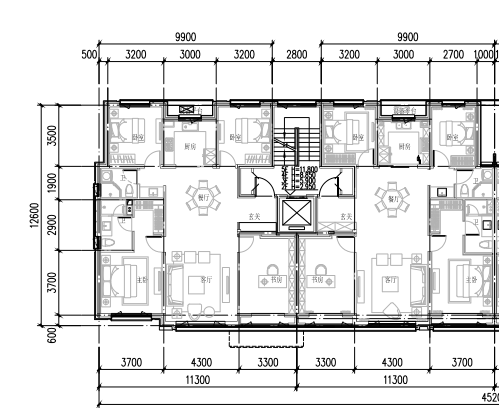
绿城在旧宫的项目是“诚园系”产品,从效果图来看,定位的是高端改善楼盘。绿城旧宫项目大部分为14-15层的小高层,部分5-6层洋房,共计24栋楼。东侧两个组团紧邻南海子公园,南侧为规划绿地公园。
项目产品面积段以中大户型为主,128平米三居以及143平米四居是主力,除此之外还有部分171平米大户型,两梯两户。预计价格在6.5万-7万/㎡。

128平米三居,户型非常方正,南北通透,三面朝南,其中主卧为套房设计。厨房设计了中西厨,符合改善客群的需求,客群覆盖率高。

143平米四居为主力户型,三面宽朝南,四个卧室互不干扰,满足私密性。主卧套房有24平米,比较奢华,其他三个次卧面积也比较适中;厨房为U形设计,增加了使用率。

171平米大四居,也是三面宽朝南,主卧与次卧之间是一个非承重墙,打通可以改造成一个大套间,满足户主的不同需求。东侧一路之隔就是南海子公园,项目很有心地设计了边南厅,观景视野超棒。刚改的客户,可以选择这个项目,特别的一步到位。
3 台湖地块-和锦诚园(商品房)
说起台湖,两年前,还是个名不见经传的地方,现如今则成了开发商口中的“第二个望京”。
台湖的发展得益于北京市副中心的发展和东迁,交通、教育、医疗等高端设施相继在通州区域落地;台湖镇作为北京市副中心的拓展区,享受到北京市副中心辐射的一些配套资源利好。
政府对台湖板块的规划定位给了开发商深耕台湖的决心。两站一街550亿的投资,将把地铁亦庄线末端的亦庄火车站和次渠站,加上沿线的商业街所构成板块打造成一个重要的新区。

两站一街的较大亮点就是职住平衡,这一点正在逐步落实,比如17号线的落定,景山学校的落定,比如台湖板块的住宅供应。
其实台湖可以和亦庄路东看成一个整体,蔡书记到城市副中心调研时强调,台马地区是城市副中心科技创新功能的重要承载地,也是北京经济技术开发区高质量发展的新空间。
并且提到,经开区要用好授权,担起台马地区规划建设发展的主体责任;也就是说,未来台湖板块的发展将受到副中心和亦庄开发区的双重利好。
台湖位置上属于朝阳、大兴、通州三区接壤的枢纽地段,集通州、亦庄等多区域利好于一身。近两年,随着八通线开通、7号线东延,区域内交通得到极大改善;未来17号线的开通和S6号线投入运营,能在区域内形成纵横相通的轨道网,对区域发展有极大价值。
台湖板块内部也在积极“修炼内功”,打造出高级环球度假村、面积相当于2.5个奥森的万亩游憩园等大型高端文娱场所,从基础设施配套到环球演艺中心到万亩公园,产业齐全、定位明晰,是台湖板块未来发展腾飞的根基。
绿城在台湖的地块属于“蘭园系”,项目离亦庄线次渠站直线距离不到1公里,不算远也不算近。项目的总户数446套,共计7栋楼,去掉自持7%,可售的仅415套,容积率2.0,限高45米;主力产品95平、120平、135平的三居四居,另外有少量的45平和70平产品。

项目主要还是针对的是改善群体;不过区域内还是有很多改善新楼盘,例如:台湖金茂悦、臻珑府、融创亦庄壹号、东望、禧瑞天著。
96平米三居,从户型上来看还是非常方正的,面宽进深近乎1:1;三面宽朝南,采光啥的肯定是没问题,且全部为飘窗设计,值得点赞;这个户型的主卧设计的是套房系,次卫干湿分离,户型上没有太多的挑剔,主要还是得看自己腰包里的钱说话。

120平米四居格局与96平米类似,不过北向多了一个卧室,厨房挪到了东北角,但依然保持着南北通透以及全明采光,进门处都有玄关设计,既能储物也可增加室内的私密性。

138平米阔绰三居,南向有一个6.9米的大横厅,而且采光面超大,通透性,采光啥的都没问题。这个户型适合家里有老人小宝贝的家庭购买,将休息区与活动区完全分割开来,此外,每户电梯出来后都有一个大大的电梯厅,平时可以放些不太贵重的东西,用以储物。

拥有通州购房指标的小伙伴们,又多了一个不错的选择。
介绍完绿城这三兄弟,想必大家多少都有些心动,心动不如行动,多看房,多对比,京丞选房也会持续报导项目的较新动作,让丞粉们足不出户便知项目的进展。
声明:本文由入驻焦点开放平台的作者撰写,除焦点官方账号外,观点仅代表作者本人,不代表焦点立场。







