东城家庭 国瑞·瑞福园下周开卖
扫描到手机,新闻随时看
扫一扫,用手机看文章
更加方便分享给朋友
盼望着,盼望着,定向配售给东城区家庭的共有产权房终于来了!同为吃瓜群众的焦点君从三月份听到一点儿消息时就开始好奇,到底是大兴的哪个项目会提供房源。
昨天,终于有了官方消息,四季盛景园、国瑞·瑞福园确定会定向分配东城,共计400套房源将于下周一5月21号开始申购,均价都是29000元/平米。其中,瑞福园还是妥妥的临铁房,今儿焦点君就给大家聊一聊这个项目的具体情况!(四季盛景园概况可点击此处了解)

【项目概况】
国瑞·瑞福园,项目为大兴区瀛海共有产权房,整体容积率为2.0,规划八栋高层共999户,主要建设89-139平2-3居,均价29000元/平方米,全装修交房,之前大部分房源已经被选走,本次推出200套,其中,二居室151套,建筑面积约89平方米;三居室49套,建筑面积约139平方米。
【区域位置】
瑞福园位于京开、京沪两大高速之间,属于大兴区瀛海镇板块,项目东至京福路,南至瀛安街,西至瀛顺路,北至瀛吉街,距南五环2公里左右,与南四环直线距离大约7.5公里,与南三环直线距离10公里。
项目周边还临近限竞房项目万和斐丽、瀛海府,未来居住氛围应该会比较浓厚。

【周边配套】
交通配套:项目距离8号线南段终点瀛海站50米左右,出地铁口就可以看到,距离非常近,乘坐地铁8号线出行可直达2环内,并可与7号线、10号线、14号线换乘,出行十分便捷;并且,未来S6号线还将贯穿瀛海站,东西线与南北线的交叉,也会方便瀛海居民的出行;除此之外,项目附近还有地铁瀛海站、瀛海镇卫生院站两个公交站点7条公交线路,乘坐公交也是个不错的选择。
教育配套:焦点君实地考察,项目周边目前大都是一些处于在建中的小区,项目南侧2.3公里处有中国教育科学研究院北京大兴实验学校、大兴区太和中学,项目西侧为瀛海排名前列幼儿园;
商业配套:项目东侧有一个华联购物中心,基本能满足日常购物需求,项目自身带商业配套,相信小区在交房后日常生活购物不成问题,只是目前缺少大型购物商业中心;
医疗配套:项目周边3公里内有5家诊所,日常小病应该很容易解决,遗憾的是大型医院距离比较远,目前暂无利好规划;
环境配套:在项目东北侧2公里处,有南海子公园,它是北京四大郊野公园之一,也是北京市较大的湿地公园,全部建成后总面积超过11平方公里,湿地面积可达2.4平方千米,属于北京落实城南行动计划的排名前列个重大生态工程。
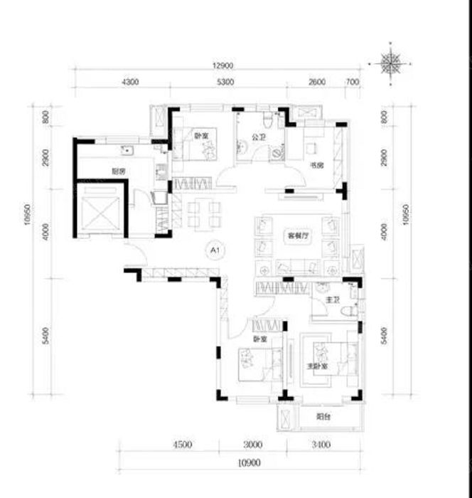
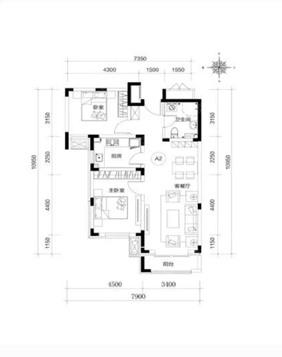
【户型产品】
瑞福园主要有两个面积段产品,88-89㎡两居,139㎡四居,焦点君个人建议如果不打算后期短时间内换房,可以考虑大面积产品,毕竟项目单价低,买的面积越大相当于享受的“福利”越多;如果手头资金有限,或者打算后期换房,那两居户型当然是个不错的选择。
139平四居当然在尺寸和功能上比较有优势,但通透性还是相对较弱,不过明厨明卫、三面采光的设计以及较低的价格会是很多人的排名前列选择;买88平两居的朋友,焦点君建议优先考虑A2户型,因为相对A1户型,A2为朝南三开间设计采光充足,也是目前市面上商品房的主流设计。具体户型可见下图↓


【总结】
总体来说,瑞福园项目亮点比较多,首先价格低,对比周边5万元/平的限竞房优势明显;其次瑞福园紧邻地铁,直线距离地铁口50米左右,非常方便;较后,项目户型面积区间大,刚需改善全满足,尤其是想改善的,如果家庭成员有购房指标,可以换套大点儿的,住着也更舒适。焦点君祝愿大家早日买到自己心仪的房源!
房产证要不要加上配偶名字?三个知识点请牢记 分清夫妻共同财产(戳左侧了解详情)
免费看房 车接车送 还报销路费 搜狐焦点看房团抢位中!(戳左侧链接报名)
声明:本文由入驻焦点开放平台的作者撰写,除焦点官方账号外,观点仅代表作者本人,不代表焦点立场。







