深度 | 北科建·领秀慧谷收官之作裂变升级
扫描到手机,新闻随时看
扫一扫,用手机看文章
更加方便分享给朋友
说起京北神盘领秀·慧谷,相信买房人尤其是北边的朋友都不陌生。房小评有多位从事IT行业的朋友都曾经看过甚至成为这个神盘的业主。
今年,领秀·慧谷即将推出收官之作——全面升级的D2区新品。借此机会,房小评综合盘点一下这座神盘的独特魅力,并详细解析其裂变升级的收官新作。

北部高知精英的优选
领秀·慧谷位于海淀与昌平的交界处,中关村北高新产业核心区,周边聚集着包括中关村软件园、永丰科技园、中关村生命科学园、航天城、未来科技城等近十个北京大型的产业园区。
众所周知,这里诞生了北部高知、高薪、高质精英人群的核心居住区——回龙观。
而领秀·慧谷在区域内拥有一个更大的位置优势——紧邻高速路口而且坐拥两站地铁,出入更加方便,因此价格也比其他楼盘更高一些,不过这依然阻挡不了其每次开盘热卖的步伐。

项目位于京藏高速与北清路交汇东北角,享三横四纵两地铁的复合交通路网,距离京藏高速仅700米,距东西主干线北清路仅500米。8号线朱辛庄站和昌平线生命科学园站就在项目1000米以内,并有十余路公共交通路过,全路网保证优越的交通条件。
对于日常通勤、时间宝贵的IT精英来说,交通便捷程度直接影响生活质量,领秀·慧谷的这一优势足以导致他们的购房意愿产生倾斜。

北科建9年匠心打造
时间,是检验一座楼盘的较好标尺。多少明星楼盘,较美的样子就定格在交房那天。领秀慧谷之所以成为北部IT白领们所热衷的定居之所,离不开国企北科建对项目持续9年的精心打造和运营。
北科建作为北京国资公司旗下优秀企业,以科技地产为龙头,商业地产、住宅地产协同发展,曾经参与建设鸟巢、水立方等重大项目,成功打造了多个高级产业园区。
在住宅开发上,领秀·慧谷作为旗下精品项目,品质可靠。据买了领秀·慧谷的朋友介绍,目前小区已经有3000多户业主入住,社区内外环境一直保持得不错,金地物业作为中国物业管理一级资质企业,服务有保障。
小区配套底商,比如超市、蔬果店等都可以步行到达,周边也有永旺购物中心、八达岭奥特莱斯、新华联超市等商业配套,生活很方便。

项目5公里范围内,分布有积水潭医院回龙观分院和北大国际医院两所三甲医院,有力保障业主健康医疗需求。同时周边学校林立,提供从幼儿园至高中的一站式教育配套。
尤其让业主满意的是,领秀·慧谷是北科建着重打造的“和文化社区”,小区的业余文化生活非常丰富,为业主家庭提供全生命周期的文化娱乐休闲场所,根据老、中、少各自的兴趣爱好构建各有所属的兴趣爱好圈,既有业主读书、聊天的共享活动空间和社群俱乐部,也有供孩子玩耍的亲子乐园,还有受年轻人青睐的健身房。
对于高知业主人群来说,买房不仅是要有瓦片遮头,更是在寻求精神栖息安放之地,“和文化社区”所追求的全家庭、全龄段、全时段360°的生活关爱,无疑正是吸引业主的魅力所在。

楼王俯瞰全景人性化生态社区
经历9年的精心锻造,近期领秀·慧谷推出了全新升级的收官之作,也是这座神盘集大成的优质产品。
领秀·慧谷项目致力于打造360°全景人性化生态社区,在D2产品中,更是设有四大功能划分,分别是全景院落私属庭院、综合性花样休闲公园、全民户外健身跑道和绿色生态体验社区。
此外,社区还打造了五大景观主题园林,包括樱芳园、紫欢园、泽兰园、海韵园、合悦园,以及八大人性化设计等,从人体的五感六觉以及全龄需求出发,给社区居民创造全方位安全宁静的生活环境。

而本次加推的16号楼,正是社区的楼王产品,地处社区中心地带,坐享视野较好的社区中央景观。
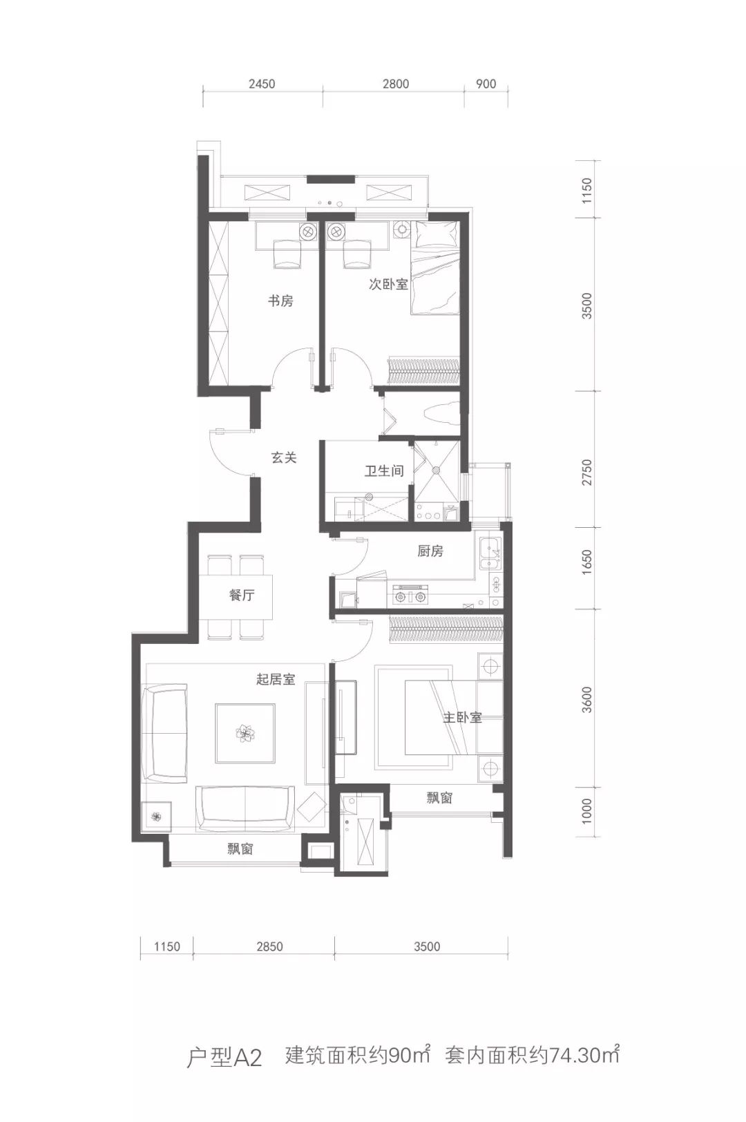
16号楼为13层一梯两户的设计, 由90平米三居室和100平米三居室组成,均属于南北通透户型,得房率较高,空间利用率高,居住舒适度全面提升。


从户型图上来看,新产品户型方正,全明南北通透。双厅一体,餐厨相连。卫生间采用三分离式设计,客厅与主卧均带有飘窗设计,供业主亲近社区美景。

可以说,这组新产品可以承载一个中产家庭,在北京三代同堂的优质生活。
在一套房动辄千万的今天,领秀·慧谷的产品尺度和精品品质所呈现的居住舒适性,是广大中产白领阶层,实现住有所居,居有所乐的一个很好的选择。
开发商:北京科技园建设(集团)股份有限公司
项目地址:京藏高速与北清路交汇处
声明:本文由入驻焦点开放平台的作者撰写,除焦点官方账号外,观点仅代表作者本人,不代表焦点立场。







