丰台新增6条地铁规划!这些地方直接受益
扫描到手机,新闻随时看
扫一扫,用手机看文章
更加方便分享给朋友
据北京发布官方微博消息,北京拟(在)建轨道交通线共计20条,在建线路工程总里程达339.1公里,其中丰台拟建1条(新机场线北延)、在建5条(地铁14号线剩余段、地铁16号线、地铁19号线一期、新机场线一期、房山线北延)。
下半年,新机场线一期、7号线东延、八通线南延都将建成通车。(了解地铁规划更多信息,可以添加小助理微信号“goufang02”。)
日前北京地铁19号线一期建设传来新进展!19号线积水潭站“八局二十号”盾构机在国内排名前列地铁明挖防尘隔离棚内如期始发,向着北太平庄站掘进!
19号线是一条穿越首都中心城的大运量南北向大站快线,线路站间距大,设计时速100km/h,连接北京规划新城区中大兴区、昌平区两区,一期工程线路南起丰台区新宫站,北至海淀区牡丹园站,区间线路全长19.785km,共设10座车站。
19号线一期工程预计于2021年开通。该项目北起牡丹园,南至新宫,线路全长22.4公里,全线共设车站10座,其中换乘站8座,除了新发地站和牛街站,其余各站均为换乘站。未来在平安里站,将可以换乘3号线、4号线、6号线、19号线这四条地铁。
19号线开通后,将支持及带动大兴新城、南苑边缘集团、新媒体产业基地、金融街、中关村广安产业园、德胜产业园及TBD地区的发展,同时服务西红门组团、右安门居住区、新外居住区、回龙观等城市重点居住区,为城市西部居民出行带来便利,实现客流的快速引导和疏散。
介绍完19号线,焦点君为大家介绍一个直接受益的现房项目,天恒金融街公园懿府。(了解项目更多信息,可以添加小助理微信号“goufang02”。)

交通:公园懿府北距四环公益西桥4.5公里,距三环7公里,距二环8.5公里,距长安街12公里;西距京开高速1.8KM,京开高速南接第二机场高速,连通西红门商圈、新发地商圈等;地铁方面,紧挨4号线新宫站,该站未来四轨(4号线、19号线、L5、L6)交汇。
学校:①北京教育科学研究院丰台学校是小、初九年一贯制;②幼儿园:首都师范大学二十一世纪幼儿园、蓝天双语艺术幼儿园;③小学:新宫小学、五爱屯小学、南苑排名前列小学、南苑第四小学、槐房小学;④中学:南苑中学。
商业:临近万达槐房店、宜家、鸿坤、荟聚购物中心等多个大型商业区域,商业氛围良好,可满足业主日常所需。
医疗:西北侧8KM的新天坛医院(目前已竣工,准备投入使用,面积原医院4倍);东北侧5KM的北京航天总医院为三级综合医院;南侧8公里的北京儿童医院大兴院区(计划于2020年初投入使用)。
休闲:南侧五环外规划为万亩南中轴森林公园;1500亩“国际足球小镇”计划在未来3年内建成;600亩北京国际汽车露营公园。
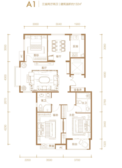
项目目前最后一期在售,户型为115、129、133平方米南北通透的三居,共50多套。在实楼样板间展示的133平方米的三室两厅两卫户型,两梯两户,独立私密;270度三面采光,通透明亮;客厅和两个卧室朝南,南向面宽有近11米,北向的厨房与餐厅连通,功能合理,格局开阔。

户型来看,各个空间方正,整个空间采光很好,主卧和客厅均能够保证很好的采光;并且能真正做到全明通透,整个空间空气好。厨卫等重要的使用较为频繁的空间布局合理,方便使用,并且能够保证整个空间的空气质量。客厅、卧室、卫生间和厨房等主要功能间尺寸以及比例合适,方便采光、通风,后期居住方便。公摊相对合理,一般房子公摊基本都在此范畴。日常使用基本满足。(了解项目更多信息,可以添加小助理微信号“goufang02”。)
延伸阅读:
声明:本文由入驻焦点开放平台的作者撰写,除焦点官方账号外,观点仅代表作者本人,不代表焦点立场。







