新房每平上涨1465元“名校执念”何时了
扫描到手机,新闻随时看
扫一扫,用手机看文章
更加方便分享给朋友
“古有孟母三迁择邻,今有家长买房择校”,为了孩子的未来,父母可是想尽一切办法去为孩子创造更好的生活条件,提高孩子的起点!
对于每位父母来说,都希望把家安在孩子就读的学校附近,因为这不仅仅只是一个受教育的便利,更是一种生活的享受。生活成本低,省时、省力、省心也是大家考虑的重要因素之一——离学校近,每天上下班不仅接送孩子方便,而且也不必担心孩子上下学的安全问题。
说的名校那就不得不提到位于亦庄的人大附中。在2017年10月30日,人大附中正式签约落户亦庄。在18年6月12日新校址的较终规划方案确定。就在今年4月12日,北京市规划和自然资源委员会也发布了对人大附开发区实验学校的规划许可证,计划将于2020年9月投入使用,也就是说不出意外的话,该校区计划将于明年正式开始招生。微信搜索“goufang02“,添加购房置业小秘书入群,房产咨询,有问必答!

该校总用地面积124622.91平方米,新建建筑面积约149250平方米。为12年建制的公立学校,规划为96班制,包括48 班小学和48 班完全中学(初中24 个班,高中24 个班)。大家较关心的入学资格问题,相信随着学校的建设,具体的招生对象以及入学方式也将明确下来。
(效果图)
有这所名校的实力加成,网友们是不是忍不住了解一下周边的新房。现在学校北边隔街相望的只有四处新房,分别是纯商品房亦庄金茂府,和两处限竞房和悦华锦、金隅金麟府预计共有产权房亦城亦景家园。焦点君统计了下,亦庄金茂府共868套房源、和悦华锦共1823套房源、亦城亦景家园共1144套房源、 金隅金麟府共562套房源,总计4397套房源。
4千多套房源代表着将会有4千多的家庭聚集此地,按50%家庭有义务教育阶段的适龄儿童来算也要有2千多,均分为小学和初中各1千,是不是很刺激,还有更刺激的事情!

此区域还有4处待入市限竞房地块,金隅X89R1地块与中国铁建·国际公馆都处于待售阶段。其中6月21日雅居乐以31.8亿元夺得经济技术开发区河西区X92R1地块,楼面价39625元/平。港中旅以30.6亿元夺得经济技术开发区河西区X92R2地块,楼面价38956元/平。值得注意的是,本次的限竞房地块限价54160元/平,较高销售单价不超过56868元/平。对比亦庄之前的限竞房地块每平涨了1465元。这四个项目入市的话,是否让你感觉这个“宝地”要装不下了,不怕!不拍!

区域教育资源还是很充沛的,北京大兴区亦庄第五幼儿园,北京亦庄实验小学是北京十一学校直属分校,学校现开设教学班59个,可容纳3000余名学生的亦庄实验中学,以及未来的人大附中学校。至于你买那个项目,上哪个学校就要看当地的教育政策,可不要听信他人的承诺哦!

一、交通
交通是项目的硬伤,未来主要依赖T1线,大约1公里左右,亦庄线与8号线都距离较远,在整体的交通轻轨的规划中可以看到,短期对于上班族来说确实交通比较困难,但从长线来看还是可能改善的。
与人大附中一街之隔的和悦华锦目前在顺销状态,项目全部规划为6-8层低密高端洋房,是区域低密度纯洋房项目,户型为89平三居和135平四居,均价 52695 元/平,小区共18栋楼。微信搜索“goufang02“,添加购房置业小秘书入群,房产咨询,有问必答!
二、户型点评
89平的三居,南北通透,南向7米面宽,全明格局,采光和通风可以得到保障。明厨明卫,卫生间干湿分离的设计很不错,北向两个卧室偏小,当然了总面积摆在这里。
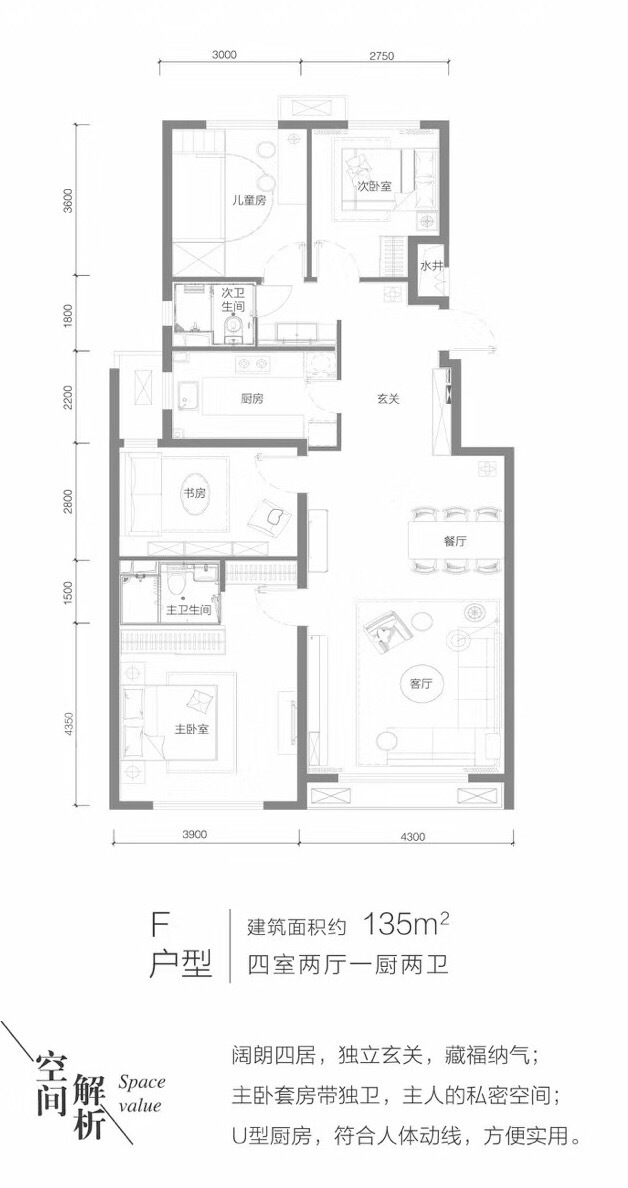
135平的四室两卫,这个户型可以看成89平户型中部位置插入了书房空间,并延长了客厅长度,客厅4.3米的面宽,主卧套间设计。客卫也做成干湿分离设计,增加其使用能力。
文末总结
和悦华锦项目均为6-8层的低密度洋房设计,居住舒适度高,很有竞争力的,目前项目轨道出行方面不足,生活配套待完善,众多开放商扎堆建设,证明未来此地的潜力巨大,毕竟开发商巨资拍地肯定是做好调查、分析的。 至于人大附中带来的区域加成,大家也要冷静分析对待,买房就能上名校这样的“大饼”,可不要当真!微信搜索“goufang02“,添加购房置业小秘书入群,房产咨询,有问必答!
延伸阅读!
声明:本文由入驻焦点开放平台的作者撰写,除焦点官方账号外,观点仅代表作者本人,不代表焦点立场。







