5月开盘新房都在这!长安云尚开盘在即
扫描到手机,新闻随时看
扫一扫,用手机看文章
更加方便分享给朋友
五一小长假已过,随着疫情控制趋于稳定,北京新房市场也迸发出更多的生机与活力,4月份北京新房与二手房成交量明显上升。
根据搜狐焦点北京新房监测,2020年北京楼市由于受到疫情影响,小阳春向后推迟,其中2-4月份的楼市成交量均低于去年同期水平,尤其是3月的新房二手房成交量还不足去年的一半。4月份成交二手房有明显上涨,但新房走势依然不是十分乐观。

按照往年的成交规律,预计5月后将迎来一波开盘小高潮,新房由于疫情工期的延误,需要经过预售证审批才能开盘,这也是此前成交量走缓一大原因。
(咨询购房专家买房问题请添加小助理微信号:goufang02 有问必答。)
初步统计,5月份北京新房市场预计有11个项目开盘, 3个是二次加推,8个为新盘首开。其中城六区新房有3个,大兴昌平近郊区占6个,远郊区怀柔、密云有2个。

值得关注的是,此次开盘项目中,纯商品房占了7个,限竞房仅有4个,看来在未来入市开盘项目中,随着纯商品房用地的供应增多,该类型开盘比例也会提升。想买纯商品房的网友们,可以再等等看。
(咨询购房专家买房问题请添加小助理微信号:goufang02 有问必答。)
在这些开盘项目中,热度较高的要属石景山的两个纯新房长安九里和中海首钢长安云尚了,其次是大兴的京能电建洺悦湾和中海寰宇时代。
中海首钢长安云尚、中海寰宇时代均由中海打造,产品户型上也更有新意。此前,中海设计的89平米三面宽网红三居,受到大多数购房者的青睐,这次的两个户型在78平米和83平米上依然保留有三居设计,具体怎么样,我们来看一下。
(中海首钢长安云尚78平米三居)
78平米为三室两厅一卫设计,东西朝向,明厨明卫,U型厨房设计,客厅面宽达到3.75米,不得不多说这款真的是没得挑,对于看好石景山板块的刚需族,又想上车三居的人群,可以称的上量身定制。
(咨询购房专家买房问题请添加小助理微信号:goufang02 有问必答。)
中海首钢长安云尚目前单价尚未透漏,感兴趣的可以去售楼处实地参观一下。

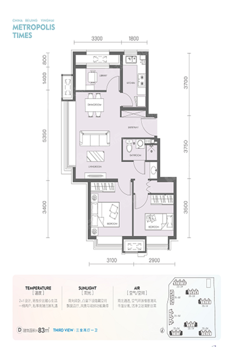
(中海寰宇时代83平三居设计)
83平米为三室两厅一卫设计,南北朝向,客厅东或西采光,面宽达到5.35米,该户型在收纳空间上做了精心设计,飘窗设计上也做了升级,窗台离地面高度从60cm降到了45cm,采光面更大。而且主卧和南向次卧之间也保留了一定的对流空间,可见开发商的用心程度。
(咨询购房专家买房问题请添加小助理微信号:goufang02 有问必答。)
中海寰宇时代加推的二期地块还处在意向登记阶段,预计不久开盘,其中还有小户型一居设计,首付100万上车。有意向的真得抓紧去售楼处了解一下。
写在最后
从网签情况以及5月预计开盘的项目中,我们可以推算出,本月新房销售量一定不会太差,而且这其中不缺乏有品质的热门新房,如今大多数售楼处已经开放,抓紧预约参观吧。
延伸阅读
声明:本文由入驻焦点开放平台的作者撰写,除焦点官方账号外,观点仅代表作者本人,不代表焦点立场。







