好文艺的小复式,简约空间+顶楼自然光,真漂亮!
扫描到手机,新闻随时看
扫一扫,用手机看文章
更加方便分享给朋友
这套复式的案例,大面积的留白并没有显得枯燥乏味,源于文化砖墙含蓄的质感和遍地绿植的写意清新,所有的装饰性都隐藏于变化的层次感。
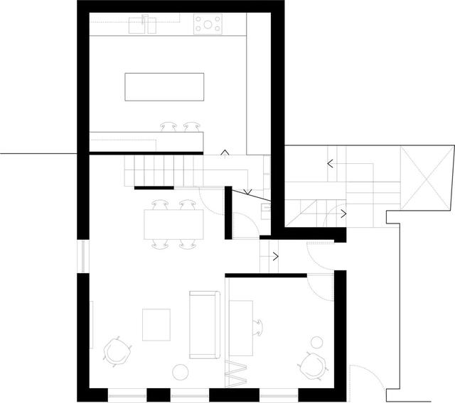
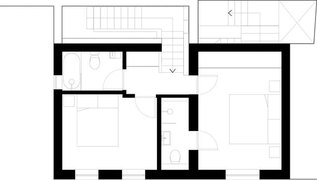
平面布置图
▼一&二层平面图

▼三层平面图

客厅

▲客厅以浅蓝色沙发作为主坐具,两张靠背椅作为辅坐具,搭配矮茶几和矮边几,旁边还有一盏木质的三脚落地灯,给人以简单轻松的氛围感。

▲沙发墙上部做了一道白色折叠窗,打通空间之余也给日常生活带来更多变的趣味。

▲右侧文化砖墙延伸到了办公区的空间,让大白墙也能不单调。

▲彩色几何图案的地毯,摆上一套双拼的不规则椭圆木质茶几,显得充满优雅自然的气息。
办公区

▲办公区没有过多的装饰感,除了书桌、书桌椅便是绿植,营造特别随心的感觉。

▲跟随心情,也可以把书桌椅搬到角落阅读,在绿植、文化砖与阳光的衬托下,显得充满清新惬意的气息。

▲办公区墙面做有挂钩方便各式物品的收纳。

▲挂点衣物也很方便。
餐厅+楼梯间

▲餐厅简单摆了一张原木餐桌,而白色、灰色的餐椅可随时作为客厅坐具的补充。楼梯底部的空间则被利用起来作为收纳。

▲大白墙氛围与木质和绿意特别的般配,将恰到好处的清新舒适放大了不少,视觉上特别的舒服。


厨房

▲从左及右,厨房依次是吧台+中岛台+料理台的布置,水泥质感-木质-水泥质感的台面过渡与操作的动线相符,带来满满的层次感。

▲料理区墙面以网红小白砖打造,配合两层木质搁板创造有序的收纳,视觉上特别的清爽大方。

▲搁板上的瓶瓶罐罐,装着各式各样的配料,显得满是烹饪的情趣。

▲小白砖上方是镜面墙,反射了格栅吊顶营造出延伸的视觉。同时以右侧入墙顶柜取代了吊柜橱柜,打造更轻松自在的烹调氛围。

楼梯

▲木踏步的楼梯,左侧通往二楼厨房,右侧通往三楼休息区。

▲楼梯分岔口做了壁龛的收纳用以展示小盆栽和书籍,配合自然光的衬托,狭窄的空间也有了更多的活力趣味。

三层卫生间

▲以镜面和木饰板划分出了洗漱区,以搁板作为简单的收纳,洗手盆管道也没有做浴室柜进行隐藏,呈现一个简洁明了的格局。

▲虎皮兰耐阴也比较容易养殖,放在卫生间也是不错的选择。
一层客卫

▲一楼书房外的客卫,同样张贴小白砖营造明净清新的视觉。
设计:HUTCH —— Mews ,点评:设计馆
买了房找装修灵感,欢迎加微信公众号:shejiguan_cn
声明:本文由入驻焦点开放平台的作者撰写,除焦点官方账号外,观点仅代表作者本人,不代表焦点立场。
