45㎡装完135㎡,买房改变命运,装修改变面积
扫描到手机,新闻随时看
扫一扫,用手机看文章
更加方便分享给朋友
↑关注我们 发现美好生活
买房45㎡,居住使用135㎡,
看完她的家只想问:
同小区还有没有相同户型了?!
靠装修,竟让房子凭空多出90㎡的空间,屋主究竟如何做到?先让我们替你问几个问题吧!
Q & A
Q:求问求问!房子的坐标在哪儿?
A:哈哈..帝都朝阳。
Q:当初是怎么发现这块“宝藏”的?
A:其实房子改造前是个很不起眼的毛坯,很多人看完都不买,被我捡漏了。
Q:买得太值了,是怎么做到凭空多出90㎡的?
A:多亏8米层高的优势。
Q: 改造后,户型发生了哪些变化?
A:从内部盖了三层空间,做了4个房间和3个卫生间。
认识她

在家屋主:小米
北漂6年,这套算是小米与先生的婚房。因为预算有限,地段、户型、面积都要妥协。5个月的奔波,总算找到了这间相对合适的。
改造前↓

层高8米、使用面积45㎡的长条型毛坯房层高8米、使用面积45㎡的长条型毛坯房
平面设计出身的小米,在预算不够的情况下亲自上手改造,装修过程亲力亲为,实力证明毛坯变豪宅,不用金钱堆砌也能实现。
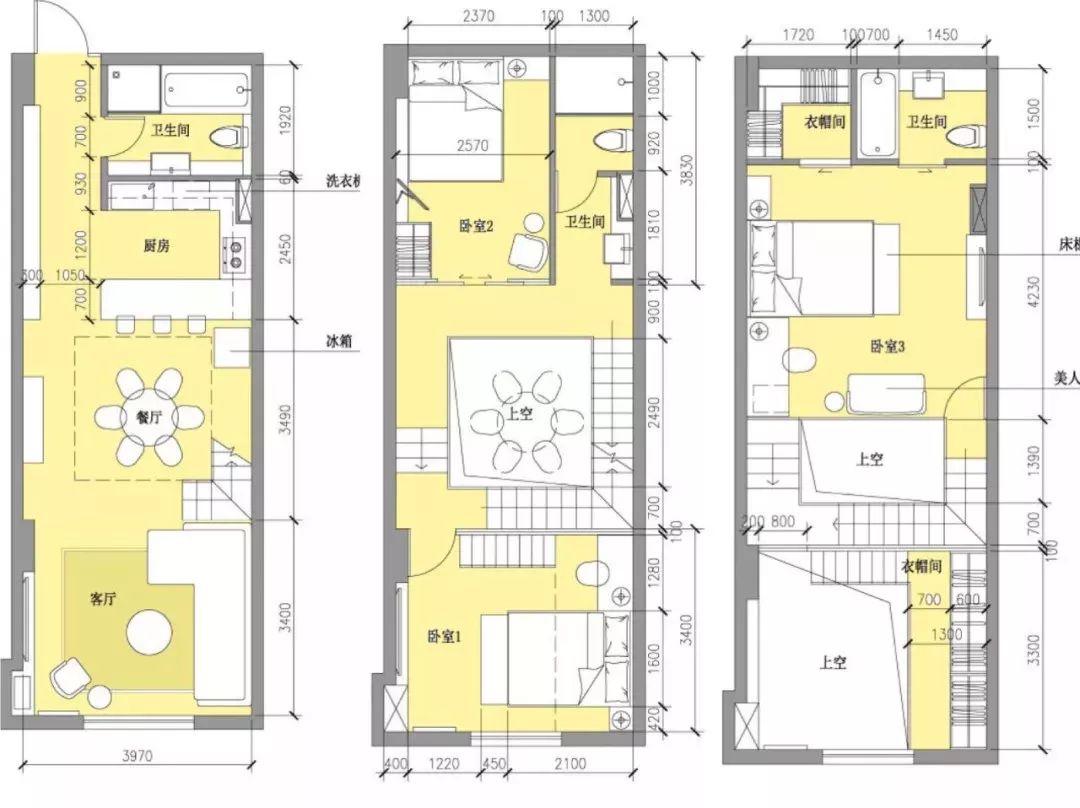
房屋信息(改造后)

1-3层平面图(从左到右)1-3层平面图(从左到右)
使用面积:135㎡
户型:4室1厅3卫1厨
改造花费:46W
(包含水电、楼梯钢结构、暖气改造、中央空调、新风系统等硬装及软装)
改造难点:长条户型、单面有窗,空气难流通且采光不理想。
解决方案:焊5道梯架,形成旋转楼梯,长条户型变大;留出8米挑空,并在顶层开天窗,保证每个空间的通透采光。
迷你玄关
超薄鞋柜保证空间通透感

进门区的面积不算大, 为了保证玄关过道的空间,这里仅放置了一个超薄的鞋柜进行收纳。当然,如果家里空间足够,还是希望可以做一个大的收纳柜,留出外套、包包的收纳空间的。

鞋柜对面,放置了从高碑店淘来的超大编织筐,与木质温莎椅的搭配格外好看。椅子虽不是什么大品牌,但小巧的尺寸刚好合适自己的玄关,做换鞋凳再好不过了。
客厅
胡桃木+皮质家具,打造随性复古风

二层看向客厅,能看全整个空间。
因为客厅靠近窗采光好,这个空间我们选了相对深色的复古胡桃木色。我和我先生一直希望家里能有一个皮沙发,为了满足他的要求特意选了这款做旧的油醋皮沙发,与家里的胡桃木色家具搭,简直绝配。

客厅区早上的阳光,和家里的小姑娘。

淘来的波斯地毯,一定程度上也能中和家具色调的沉重感。
因为喜欢逛旧货市场,家里的不少东西都是从那里淘来的。装修时我们几乎每周末都去逛,也因此逛遍了整个北京城。真正的老物件价格往往很高,但像一些做旧的工艺品也不错,价格低廉性价比较高。

沙发对面的电视墙,因为承重柱的缘故导致整面电视墙凹凸不平,装修时特意让木工师傅做了个书柜墙,根据电视墙的尺寸定制,现在反倒成了电视墙的装饰。

一层与客厅相连的,还有家里的开放式厨房和餐厅,三个功能区同处于一个空间。
开放式厨房
餐厨一体的小空间

客厅看向餐厨区。厨房位于入户区,因为面积有限,装修时便毫不犹豫的选择了开放式厨房。整体使用下来发现比想象中更便利,尤其是对于有孩子的家庭,做饭时也能随时看到小朋友的情况。

用餐区原本安排在楼梯中空处,入住后使用下来发现还是餐厨一体会更加好打理一些,而且中空的区域可以给小朋友更多的玩耍空间。

厨房布局图

因为空间小,整个空间以白色为主调,能有效提亮空间。不少人会担心做开放式厨房又是纯白色,油烟问题该怎么办。
像我家是用的电磁炉,本身就会减少油烟量。而家人的饮食习惯也是常吃蒸熟类食物,健康、油烟也少。使用的老板吸油烟机吸力足够大,就算是每天三顿的开火,也不会有烟外溢的情况。


收纳隔板:宜家密封罐:振欣旗舰店壁挂杆:雪雨卫浴旗舰店壁挂垃圾桶:川上良品日本进口家居
关于小面积厨房的收纳问题,个人觉得纵向空间一定要利用好,壁挂收纳系统全部用起来,让台面保持“空无一物”,也是让小空间看起来整洁的小妙招。

除此之外,也可以利用餐厅区域。对于餐具器皿收纳爱好者来说,一个大的餐边柜就显得尤为重要,较好能是玻璃门的,陈列收纳一举两得。

餐边柜细节。


二层看向用餐区。较近开始学花艺,偶尔邀请三五好友,将家里的小餐桌简单布置一番,生活有时就需要那么点儿仪式感。



餐厅日常。
楼梯间
8米中空变书柜墙贯穿三层

复式房楼梯的走向很重要,像家里只有单面采光窗的情况,如果不留中空,家里的采光和空气流通都是大问题。
而留中空后,不仅能解决采光,还能利用楼梯边凹进去的墙体,将二层延伸至三层的墙面改成了整面书架墙。

特意装了新风系统,保持室内的空气流通。
中空处一组高低错落的吊灯,解决了这个区域的采光问题。吊灯从三层一直贯穿到一层,每个空间都能照顾到。

书架上也有辅助照明的壁灯,打开灯时整个空间通体明亮,不存在采光暗角。

二层的书籍是可以随时取阅的,席地而坐,楼梯的台阶与书架墙组成了家里的小小阅读角。
二层划分出2间卧房
面积虽小,但功能不少

2-3层主要是家里的四个卧室空间,爸妈或朋友偶尔来北京玩时,也可以有地方住。卧室与走廊中间的隔断,选了玻璃推拉门,透光性会更好。

二层为两间次卧客房,书架旁的这间因为层高仅有2.2米,做成了榻榻米卧室,低矮的榻榻米床板,能减少层高带来的空间压迫感,居住上也会更加舒适。

二层的另一间次卧层高2.6米,且有一扇小小的采光窗,整个空间看起来会相对宽敞。喜欢自然原木色的通透感,整个空间都以素色+原木为主调,其间点缀来布置,看起来舒服清爽。

利用楼梯空间,在床头边做了一个小衣柜。别看小小一个,但里面却很能装,放下两个28寸的行李箱一点问题都没有。

主卧
拥有衣帽间和浴缸

主卧位于三层,是四个卧室里面积较大的空间,有独立的衣帽间和卫浴间。
因为层高有2.9米到1.7米的跨度,同样是选择了榻榻米床板,2.2米的尺寸就算带孩子睡也完全足够了。

窗边放置了一张手作台,方便平时工作时使用。

主卧内的独立卫浴间。

卫浴间与衣帽间是一体的空间,中间用玻璃推拉门分隔。
因为将洗衣机设置在了一层厨房,卫浴间内有了放浴缸的空间。平时换衣-泡澡-休息的动线设计,可以说是相当方便了。

浴室内布局细节。

梦想中的步入式衣帽间,总算挤进了主卧。利用宜家的转角衣柜打造,用来收平时常穿的衣物。
儿童房
与小朋友共同打造


第四间卧室在三层靠窗的位置,改成了儿童房。
改造前特意征求了女儿一一的想法,她喜欢粉色,所以整个房间以粉、灰、白三色搭配,儿童床床头增加了床幔,满足小姑娘的公主梦。

除了休息区,儿童房内还留出了一块供她玩耍的地方。
小朋友的喜好会随着年纪的变化而变化,儿童房装饰时,为了照顾到她的喜好,仅是在软装部分增加了粉色调而不是墙色,方便之后她长大不喜欢了可以随时换掉。

除了儿童房,作为自己装修踩过坑的过来人,小米也有一些自己的经验分享:
像装修公司的报价清单,较好要在开工前校对好,如果后期再加,价格会开很高;
装修环节尽量盯一下,像小米家上下三层的电路开关就装的很不合理,算是一点小遗憾。
以上两个小心得,希望能给即将装修的朋友一些参考。
内容来源|网络
版权归原作者所有,侵权联删,谢谢!
小房子也要生活的精致
把房子住成家 把日子过成诗
商务合作微信|momo_xiao

点击“阅读原文”,可申请免费设计和报价单哦~
声明:本文由入驻焦点开放平台的作者撰写,除焦点官方账号外,观点仅代表作者本人,不代表焦点立场。
