养老院改装焕新,设计师可以给老人带来怎样的惊喜!
扫描到手机,新闻随时看
扫一扫,用手机看文章
更加方便分享给朋友
随着城市人口老龄化不断增多,当代人对于品质生活的要求逐渐提高,养老公寓的需求逐年上升。而现有大量老年公寓仅仅提供有限的单一空间,满足普通居住需求,忽略了老年人的生活体验和精神需求。该项目旨在为了当下老年人的居住生活注入活力和提供便利。
公寓入口

公寓中心休闲区



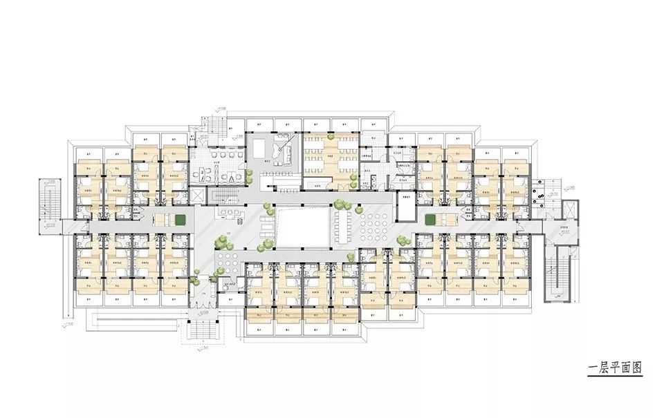
北京邻里家老年公寓原有空间老旧,旨在重新定义养老公寓的概念,面积4500平米。设计希望满足“鲜活、当下、共享、舒适”的需求,让老人能在公寓内找到家的舒适,感受到朋友的陪伴,拥有悉心的照顾和体验当下年轻人的活动。通过对内外空间、声光效果和需求的综合控制,使整体空间得到较佳和较大化的运用,成为老年人第二生活空间的较佳选择。整个设计大面积使用绿色元素,在中心区域上做了挑空,使空间感达到较佳。
一楼水吧休闲区



在三楼空间上,我们把原有室外空间和室内空间融合,加大公共区域,使得空间感受更开阔。同时,把景观引入室内,使得整个空间更雅致。
三楼平面图

三楼新建区域



公寓设有规范化前台,更好地照料老人起居。考虑到老年人的各种身体情况,根据不同需要配备不同的设备。



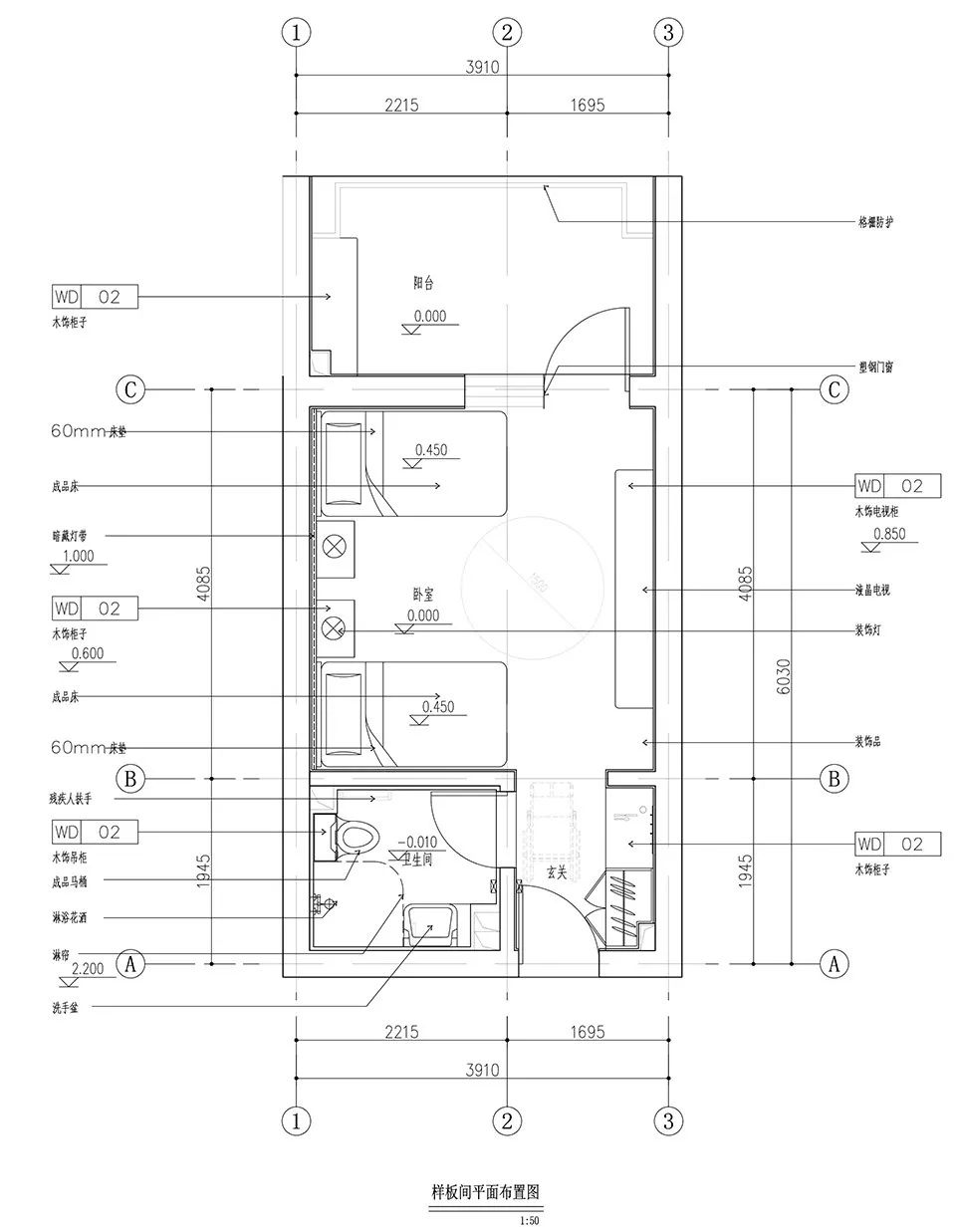
适老策略

1.房间入口设置储物空间,并且设置随手零碎物件的储物台,设置开放式挂衣间,方便老年人入门口放置衣物。
2.设置方便老年人入门打开卧室灯和储物台顶侧灯带的开关,它的位置根据老年人实际情况设置,比正常人高度较低,距地面距离在90CM 处,洗手间门把同理。
3.在入口处下侧储物柜底部设置放置拖鞋处,方便老年人进屋后换鞋。其高度根据老年人站立能看到拖鞋为依据,距离地面30CM 高。
4.在拖鞋放置处的内侧设置灯带,提供照明作用,更加方便和醒目。
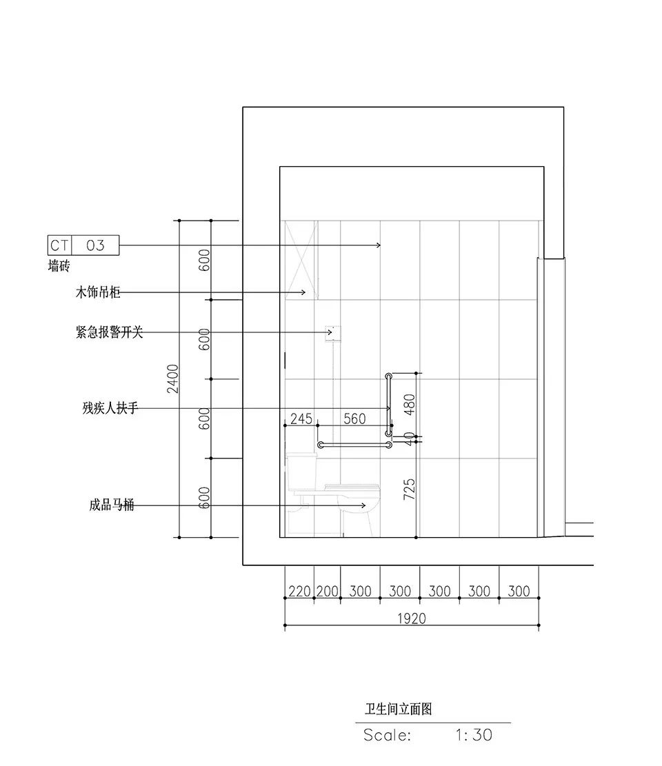
5.卫生间门上在距离地面1.75M的地方设置圆形观察窗保证老年人使用卫生间的隐私。如果老年人在卫生间反锁的情况下发生意外,也方便护工在踮脚的情况下查看情况。
6.卫生间淋浴部分,考虑到老年体力较弱,故设置了可以收起和放下的活动式座椅和辅助扶手,方便老年人在淋浴时坐下使用并安全地站立起来。
7.可折叠式座椅在平时不使用时可以贴墙树立,保证洗手间的空间足够轮椅在内部自行转动,方便乘坐轮椅的老年人。
8.电视柜搞定设置85CM,方便老人扶住站立和行走,并且在边角处都做了圆角处理,防止磕碰老人。
细节设计


其他空间





其他平面方案

声明:本文由入驻焦点开放平台的作者撰写,除焦点官方账号外,观点仅代表作者本人,不代表焦点立场。
