正商明苑开启摇号 手枪户型你还爱得起吗?
扫描到手机,新闻随时看
扫一扫,用手机看文章
更加方便分享给朋友
年末几个月,大批共有产权项目房源争先入市。申购比57:1、17:1、13:1的消息更是不断在小狐焦的置业群里传开。我想大部分有意买房却没怎么关注共产项目的朋友看到,脑海里可能会出现一个巨大的问号,共有产权房不是没法投资吗?不是不被看好吗?为什么还有这么多人挤破头去申购?

小狐焦看来,主要原因还是共有产权房价格确实便宜,拿正商明苑举例,均价35000元/㎡。考虑到项目个人产权比例60%,折算过来单价也只要58300,这样的价格在四环边同样很有竞争力。论价格,不多能够相提并论的怕是只有西四环青塔的限竞房世茂国风长安。要想新宫板块多为改善项目,对比动不动就千万起的新房价格不能再美丽。哪怕产权不完整,也足以让很多人心动。

但是,关于共有产权房该吐槽的还是得说。虽然同为保障性住房,但自住房与共有产权房有着本质的区别。自住房5年之后可以上市交易,除了收益的30%上交,没有其他任何限制,当初买自住房的都是赚到了~但共有产权房的买卖只能在政府或者其他有共有产权购房资格的人之间进行,还需要接受指导价格。单说这个指导价格,一般都低于市场价很多,可以说政策套利的空间几乎没有!只有居住属性,还占了你的房票,浪费你的处女贷,当你真正想买普通商品房的时候,等着高额的首付吧!
况且落到项目本身,也不见得品质咋滴。正商明苑甚至出现东西朝向的5号楼。3号楼顶层设有水箱设施,楼体东侧设有采暖锅炉烟道,楼体西侧还有地下化粪池,相邻住宅多少会有噪音或是气味的影响啊。

户型方面,A/AG户型,典型的“手枪”户型,乍一看就不舒服。A户型是南北朝向,AG户型东西向,明厨明卫,但通风和采光有待考究。A户型南向的采光面只有一个,还位于主卧,阴天或是下午晚些时候主卧与客厅拐角处基本就暗了,通风肯定也是比不过方正户型。AG甚至没有南向采光面,主卧还面临西晒的问题,通风小狐焦就不评价了!

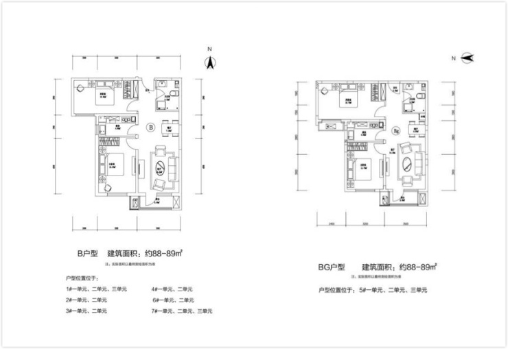
B/BG户型暗卫设计且干湿不分离,卫生间会潮湿!功能间布局上甚至不如A的两个户型,没有做到动静分区,卫生间离主卧的距离也太远。但这两个户型较方正, BG户型全朝西,B户型全朝南,两个户型除了朝向没有太大区别。

不说别的,正商明苑的开发商连开样板间的勇气都没有,也不知道能做成什么样子。周边除了有个刚开的万达,还能有啥真正落到实处的配套呢。
所以,共有产权房价格看起来虽然便宜,但是你不仅无法享受当年自住房带来的红利,之后换房还可能因为共有产权房的政策出现超多麻烦。小狐焦不建议有购买商品房打算的人入手共有产权房!当然并不是所有人都不能购买共有产权房,如果您满足了北京市户籍落户条件,孩子上学着急落户,刚需自住暂时又负担不起普通商品房,共产房是一个选择。
声明:本文由入驻焦点开放平台的作者撰写,除焦点官方账号外,观点仅代表作者本人,不代表焦点立场。







